Niezawodny - M236
 murowany
 murowany                                         bez garażu
 bez garażu                                         parterowy
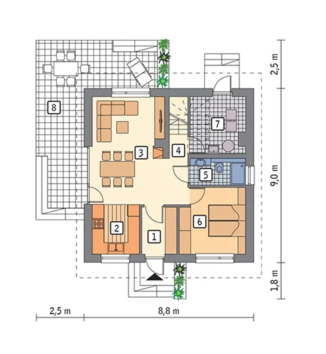
 parterowy                                        | 1. Przedsionek | 4,20 (4,20) m² | 
| 2. Kuchnia | 6,20 (6,20) m² | 
| 3. Pokój dzienny | 23,40 (23,40) m² | 
| 4. Korytarz | 1,20 (1,20) m² | 
| 5. łazienka | 3,90 (3,90) m² | 
| 6. Sypialnia | 11,20 (11,20) m² | 
| 7. Kotłownia | 6,60 (8,00) m² | 
| 8. Taras | 28,00 m² | 
| 1. Schody | 4,30 (4,30) m² | 
| 2. Korytarz | 4,00 (4,00) m² | 
| 3. łazienka | 4,70 (7,70) m² | 
| 4. Sypialnia | 8,40 (14,60) m² | 
| 5. Sypialnia | 8,50 (14,70) m² | 
| 6. Sypialnia | 8,50 (14,70) m² | 
Wypełnij formularz i otrzymaj rysunki w pdf z dokładnymi wymiarami budynku i pomieszczeń (długość, szerokość, wysokość) dla projektu Niezawodny - wariant II - M236b
 
                                | Pow. użytkowa 88.5 m² | 
| Ilość pokoi 5 | 
| Powierzchnia zabudowy 79.2 m² | 
| Kondygnacje parterowy+poddasze | 
| Garaż bez garażu | 
| Technologia murowany | 
| Szerokość działki 16.8 m | 
| Obiekt dom | 
| Typ domu jednorodzinny całoroczny | 
| Kubatura 471 m³ | 
| Bryła budynku prosta bryła | 
| Wysokość budynku 7.95 m | 
| Strop gęstożebrowy | 
| Długość działki 17 m | 
| Styl budynku nowoczesny | 
| Liczba łazieniek 2 | 
| Kalenica równoległa do drogi | 
| Kominek kominek w projekcie | 
| Kąt nachylenia dachu 40 ° | 
| Funkcje dodatkowe z dwoma wejściami | 
| Kotłownia duża kotłownia | 
| Szerokość budynku 8.8 m | 
| Rodzaj dachu dwuspadowy | 
| Taras z tarasem | 
| Długość budynku 9 m | 
| Piwnica bez podpiwniczenia | 
| Koszty budowy tylko z kosztorysem, 150-200 tys. | 
| Pow. użytkowa 88.5 m² | 
| Powierzchnia zabudowy 79.2 m² | 
| Garaż bez garażu | 
| Szerokość działki 16.8 m | 
| Typ domu jednorodzinny całoroczny | 
| Bryła budynku prosta bryła | 
| Strop gęstożebrowy | 
| Styl budynku nowoczesny | 
| Kalenica równoległa do drogi | 
| Kąt nachylenia dachu 40 ° | 
| Kotłownia duża kotłownia | 
| Rodzaj dachu dwuspadowy | 
| Długość budynku 9 m | 
| Koszty budowy tylko z kosztorysem, 150-200 tys. | 
| Ilość pokoi 5 | 
| Kondygnacje parterowy+poddasze | 
| Technologia murowany | 
| Obiekt dom | 
| Kubatura 471 m³ | 
| Wysokość budynku 7.95 m | 
| Długość działki 17 m | 
| Liczba łazieniek 2 | 
| Kominek kominek w projekcie | 
| Funkcje dodatkowe z dwoma wejściami | 
| Szerokość budynku 8.8 m | 
| Taras z tarasem | 
| Piwnica bez podpiwniczenia | 
Tak. Projekty dostępne na Planz.pl zawierają pełną dokumentację potrzebną do uzyskania pozwolenia na budowę i stanowią gwarancję sprawnej realizacji budowy.
Jesteśmy oficjalnym partnerem ponad 50 pracowni architektonicznych z całej Polski - dlatego każdy projekt pochodzi wyłącznie od autorów zrzeszonych w Izbie Architektów RP.
Planz.pl to polska firma działającą na rynku od 12 lat. Mamy tysiące zadowolonych klientów, doskonałe opinie i oferujemy wsparcie również po zakupie, doradzamy, pomagamy w adaptacji i pozostajemy w kontakcie na każdym etapie inwestycji.
Dodatkowo do każdego projektu dodajemy tablicę informacyjną, dziennik budowy oraz 16 projektów elektronicznych drewnianej architektury ogrodowej. A dzięki naszej współpracy z markami Blaupunkt i PRIME3 oferujemy możliwość otrzymania sprzętu elektrycznego w formie atrakcyjnego gratisu.
Wybierając Planz.pl, otrzymujesz ten sam oryginalny projekt od autora, wzbogacony o realne dodatki, które ułatwiają rozpoczęcie budowy.
Zwężenie/poszerzenie budynku* to nic innego jak zmiana w projekcie. Istnieje możliwość wprowadzenia takich zmian, we własnym zakresie (podczas adaptacji). *zwężenie/poszerzenie budynku nie powinno stanowić problemu w przypadku domów o dachu dwuspadowym jeśli wiąże się to z wydłużeniem/skróceniem kalenicy dachu.
Poznaj praktyczne porady ekspertów, które ułatwią Ci każdy etap budowy i od wyboru wymarzonego domu po jego wykończenie. Zyskaj pewność, że podejmujesz najlepsze decyzje dzięki sprawdzonym wskazówkom od specjalistów z planz.pl
Dodatki możesz kupić razem z projektem lub dokupić po czasie
 [Planz] Tablica budowlana (0 zł)
            
            [Planz] Tablica budowlana (0 zł)           [Planz] Dziennik budowy (0 zł)
            
            [Planz] Dziennik budowy (0 zł)           [Planz] Wiertarka udarowa (0 zł)
            
            [Planz] Wiertarka udarowa (0 zł)           [Planz] Zgoda na zmiany w projekcie (0 zł)
            
            [Planz] Zgoda na zmiany w projekcie (0 zł)           [Planz] Projekty architektury ogrodowej (0 zł)
            
            [Planz] Projekty architektury ogrodowej (0 zł)           [Planz] Charakterystyka energetyczna, tylko dla domów całorocznych (0 zł)
            
            [Planz] Charakterystyka energetyczna, tylko dla domów całorocznych (0 zł)           
		bezpłatnie (0zł)
 
		
			przelew zwykły / PayNow
			przy odbiorze
 
		3-5 dni roboczych (jeśli projekt nie wymaga aktualizacji)
 murowany
 murowany                                         bez garażu
 bez garażu                                         parterowy
 parterowy                                         murowany
 murowany                                         bez garażu
 bez garażu                                         parterowy
 parterowy                                         
                                   
                                  Wycena szacunkowa, w kwotach netto, nie zawiera instalacji.
Wybierz wygodny dla Ciebie czas kontaktu z naszym Doradcą Technicznym.