Abra 2



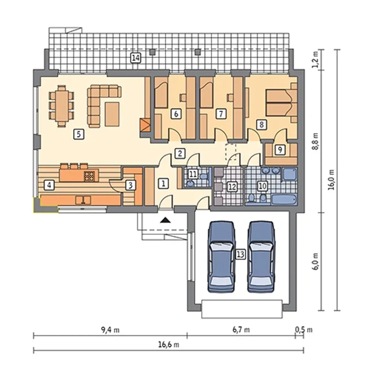
1. Przedsionek | 7,00 m² |
2. Korytarz | 11,40 m² |
3. Spiżarnia | 2,70 m² |
4. Kuchnia | 12,00 m² |
5. Pokój dzienny + jadalnia | 33,30 m² |
6. Sypialnia | 9,40 m² |
7. Sypialnia | 9,90 m² |
8. Sypialnia | 12,00 m² |
9. Garderoba | 2,60 m² |
10. łazienka | 7,30 m² |
11. Wc | 1,90 m² |
12. Kotłownia | 3,90 m² |
13. Garaż | 32,30 m² |
14. Taras | 32,70 m² |
Wypełnij formularz i otrzymaj rysunki w pdf z dokładnymi wymiarami budynku i pomieszczeń (długość, szerokość, wysokość) dla projektu Nieschematyczny (z wentylacją mechaniczną i rekuperacją) - EC406
Pow. użytkowa 109.5 m² |
Ilość pokoi 4 |
Powierzchnia zabudowy 185.4 m² |
Kondygnacje parterowy |
Garaż 2 stanowiska |
Technologia murowany |
Szerokość działki 23.6 m |
Obiekt dom |
Typ domu jednorodzinny całoroczny |
Wysokość budynku 6.39 m |
Długość działki 23 m |
Styl budynku nowoczesny |
Liczba łazieniek 1 |
Kąt nachylenia dachu 35 ° |
Kominek kominek opcjonalnie |
Kalenica bez znaczenia |
Szerokość budynku 16.6 m |
Rodzaj garażu z przodu |
Taras z tarasem |
Długość budynku 16 m |
Rodzaj dachu dwuspadowy |
Piwnica bez podpiwniczenia |
Kubatura 778 m³ |
Przechowywanie w kuchni spiżarnia |
Bryła budynku plan litery L |
Koszty budowy tylko z kosztorysem, 250-300 tys. |
Pow. użytkowa 109.5 m² |
Powierzchnia zabudowy 185.4 m² |
Garaż 2 stanowiska |
Szerokość działki 23.6 m |
Typ domu jednorodzinny całoroczny |
Długość działki 23 m |
Liczba łazieniek 1 |
Kominek kominek opcjonalnie |
Szerokość budynku 16.6 m |
Taras z tarasem |
Rodzaj dachu dwuspadowy |
Kubatura 778 m³ |
Bryła budynku plan litery L |
Ilość pokoi 4 |
Kondygnacje parterowy |
Technologia murowany |
Obiekt dom |
Wysokość budynku 6.39 m |
Styl budynku nowoczesny |
Kąt nachylenia dachu 35 ° |
Kalenica bez znaczenia |
Rodzaj garażu z przodu |
Długość budynku 16 m |
Piwnica bez podpiwniczenia |
Przechowywanie w kuchni spiżarnia |
Koszty budowy tylko z kosztorysem, 250-300 tys. |
Kupując projekt w technologii murowanej powinieneś budować dom murowany. Zupełna zmiana technologii na szkieletową wymaga przeprojektowania całego budynku ( zmieniają się obciążenia, fundamenty, konstrukcja dachu). Wydamy zgodę na takie przeprojektowanie jednak wiążę się to z dużymi kosztami. Istnieją firmy wykonawcze, które podejmują się zmiany technologii budowy bezpłatnie przy skorzystaniu z ich usług wykonawczych. Zdarza się, że pracownia architektoniczna przygotowuje warianty konkretnego projektu przewidując także inne technologie. Prosimy o sprawdzenie czy istnieje poszukiwana wersja projektu, w zakładce - warianty projektu.
Zwężenie/poszerzenie budynku* to nic innego jak zmiana w projekcie. Istnieje możliwość wprowadzenia takich zmian, we własnym zakresie (podczas adaptacji). *zwężenie/poszerzenie budynku nie powinno stanowić problemu w przypadku domów o dachu dwuspadowym jeśli wiąże się to z wydłużeniem/skróceniem kalenicy dachu.
Poznaj praktyczne porady ekspertów, które ułatwią Ci każdy etap budowy i od wyboru wymarzonego domu po jego wykończenie. Zyskaj pewność, że podejmujesz najlepsze decyzje dzięki sprawdzonym wskazówkom od specjalistów z planz.pl
Wycena szacunkowa, w kwotach netto, nie zawiera instalacji.
bezpłatnie (0zł)
przelew zwykły / PayNow
przy odbiorze
3-5 dni roboczych (jeśli projekt nie wymaga aktualizacji)
Ten projekt domu z wentylacją mechaniczną i rekuperacją od Muratora prezentuje się bardzo zachęcająco. Nowoczesna, kompaktowa bryła budynku powinna świetnie wkomponować się w otoczenie, a przemyślany układ pomieszczeń zapewni komfort i funkcjonalność na co dzień. Dodatkowo, chętnie zainwestuję w technologie ekologiczne, takie jak rekuperacja, które pozwolą na oszczędność w utrzymaniu domu.
Wybierz wygodny dla Ciebie czas kontaktu z naszym Doradcą Technicznym.