22 299 20 00 (pn-nd 9.30 do 19.30)

Gotowy projekt domu Nieodzowny - wariant II - C304b (ID: 19794)

4825 2025-11-21
Nieodzowny - wariant II - C304b - 102.6m²
Projekt dostępny od ręki
Gwarantujemy najniższą cenę
4825 zł
W cenie projektu:
📣 GRATIS: WIERTARKA UDAROWA
  • Tablica + dziennik budowy
  • 16 projektów ogrodowych
  • Darmowa wysyłka (kurier, paczkomat, pobranie)
  • 30 dni na zwrot
  • Pozwolenie na zmiany z podpisem i pieczęcią autora
  • GRATIS: Wiertarka Udarowa
22 299 20 00 (pn-nd 9.30 do 19.30)

Rzuty gotowego projektu domu Nieodzowny - wariant II - C304b

1. Przedsionek 2,80 (2,80) m²
2. łazienka 3,50 (3,50) m²
3. Sypialnia 9,30 (9,30) m²
4. Sypialnia 12,50 (12,50) m²
5. Korytarz 1,40 (1,40) m²
6. Pokój dzienny 33,80 (33,80) m²
7. łazienka 6,20 (6,20) m²
8. Sypialnia 12,00 (12,00) m²
9. Sypialnia 12,00 (12,00) m²
10. Korytarz 2,70 (2,70) m²
11. Kuchnia 6,40 (6,40) m²
12. Kotłownia 5,40 (5,40) m²
13. Taras 12,30 m²
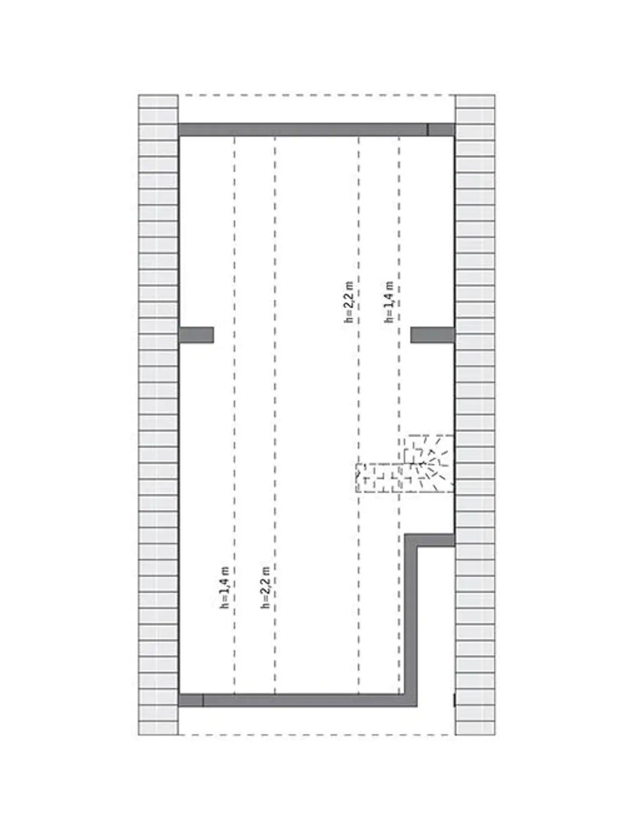
1. Poddasze do adaptacji 55,30 m²

Zapoznaj się ze szczegółami projektu - pobierz bezpłatne rysunki do: Nieodzowny - wariant II - C304b

Wypełnij formularz i otrzymaj rysunki w pdf z dokładnymi wymiarami budynku i pomieszczeń (długość, szerokość, wysokość) dla projektu Nieodzowny - wariant II - C304b

Parametry Techniczne gotowego projektu domu Nieodzowny - wariant II - C304b

Pow. użytkowa 102.6 m²
Ilość pokoi 5
Powierzchnia zabudowy 143.7 m²
Kondygnacje parterowy
Garaż bez garażu
Technologia murowany
Szerokość działki 16.5 m
Obiekt dom
Typ domu jednorodzinny całoroczny
Kubatura 753.6 m³
Strop żelbetowy
Bryła budynku prosta bryła
Wysokość budynku 6.8 m
Kalenica prostopadła do drogi
Długość działki 23.5 m
Styl budynku nowoczesny
Liczba łazieniek 2
Kąt nachylenia dachu 35 °
Funkcje dodatkowe z dwoma wejściami
Kominek kominek w projekcie
Szerokość budynku 8.5 m
Rodzaj dachu dwuspadowy
Taras z tarasem
Długość budynku 16.5 m
Piwnica bez podpiwniczenia

Nasze prawdziwe opinie z Google

Opis projektu domu Nieodzowny - wariant II - C304b

Gotowy projekt Nieodzowny - wariant II - C304b autorstwa pracowni Murator, jest to murowany dom jednorodzinny całoroczny.Projekt bez podpiwniczenia.Ogrzewanie na węgiel.Dodatkowo kominek w projekcie. To projekt domu parterowego z dwuspadowym dachem i bez garażu.

Częste pytania

Czy projekty z Planz.pl są kompletne?

Tak. Projekty dostępne na Planz.pl zawierają pełną dokumentację potrzebną do uzyskania pozwolenia na budowę i stanowią gwarancję sprawnej realizacji budowy.

Jesteśmy oficjalnym partnerem ponad 50 pracowni architektonicznych z całej Polski - dlatego każdy projekt pochodzi wyłącznie od autorów zrzeszonych w Izbie Architektów RP. 

Planz.pl to polska firma działającą na rynku od 12 lat. Mamy tysiące zadowolonych klientów, doskonałe opinie i oferujemy wsparcie również po zakupie, doradzamy, pomagamy w adaptacji i pozostajemy w kontakcie na każdym etapie inwestycji.

Dodatkowo do każdego projektu dodajemy tablicę informacyjną, dziennik budowy oraz 16 projektów elektronicznych drewnianej architektury ogrodowej. A dzięki naszej współpracy z markami Blaupunkt i PRIME3 oferujemy możliwość otrzymania sprzętu elektrycznego w formie atrakcyjnego gratisu.

Wybierając Planz.pl, otrzymujesz ten sam oryginalny projekt od autora, wzbogacony o realne dodatki, które ułatwiają rozpoczęcie budowy.

Czy mogę wprowadzić zmiany w projekcie?

Co zrobić gdy wybrany dom nie mieści się na działce?

Jakie zmiany można wprowadzić w projekcie?

Porady ekspertów

Poznaj praktyczne porady ekspertów, które ułatwią Ci każdy etap budowy i od wyboru wymarzonego domu po jego wykończenie. Zyskaj pewność, że podejmujesz najlepsze decyzje dzięki sprawdzonym wskazówkom od specjalistów z planz.pl

Co zawiera projekt

  • ✓ 3 x projekt architektoniczno-budowlany ➞ szczegóły
  • ✓ Projekty techniczne ➞ szczegóły
  • ✓ charakterystyka energetyczna (do projektów domów)
  • ✓ zgoda na zmiany w projekcie ➞ szczegóły
  • ✓ GRATIS: Wiertarka (do projektów w cenie od 3000 zł)
  • ✓ GRATIS: 16 projektów (drewutni, altany i wiaty)
  • ✓ GRATIS: tablica i dziennik budowy
  • ✓ GRATIS: przesyłka kurierska

Dodatki do projektu Nieodzowny - wariant II - C304b

Dodatki możesz kupić razem z projektem lub dokupić po czasie

[Planz] Tablica budowlana (0 zł)

[Planz] Dziennik budowy (0 zł)

[Planz] Wiertarka udarowa (0 zł)

[Planz] Zgoda na zmiany w projekcie (0 zł)

[Planz] Projekty architektury ogrodowej (0 zł)

[Planz] Charakterystyka energetyczna, tylko dla domów całorocznych (0 zł)

Wysyłka i płatność za projekt Nieodzowny - wariant II - C304b

Koszty wysyłki

bezpłatnie (0zł)

Formy płatności

przelew zwykły / PayNow
przy odbiorze

Czas oczekiwania

3-5 dni roboczych (jeśli projekt nie wymaga aktualizacji)

Wersje gotowego projektu domu Nieodzowny - wariant II - C304b

Podobne projekty do domu Nieodzowny - wariant II - C304b

PRACOWNIA: Kolekcja Murator arch. Przemysław Biryło, arch. Maciej Biryło