Monte



1. Wiatrołap | 3,14 m² |
2. Hol | 3,80 m² |
3. Salon | 23,43 m² |
4. Kuchnia | 6,68 m² |
5. Pokój | 8,55 m² |
6. łazienka | 3,41 m² |
7. Pom. gospodarcze | 5,25 m² |
8. Kotłownia | 6,76 m² |
9. Garaż | 18,80 m² |
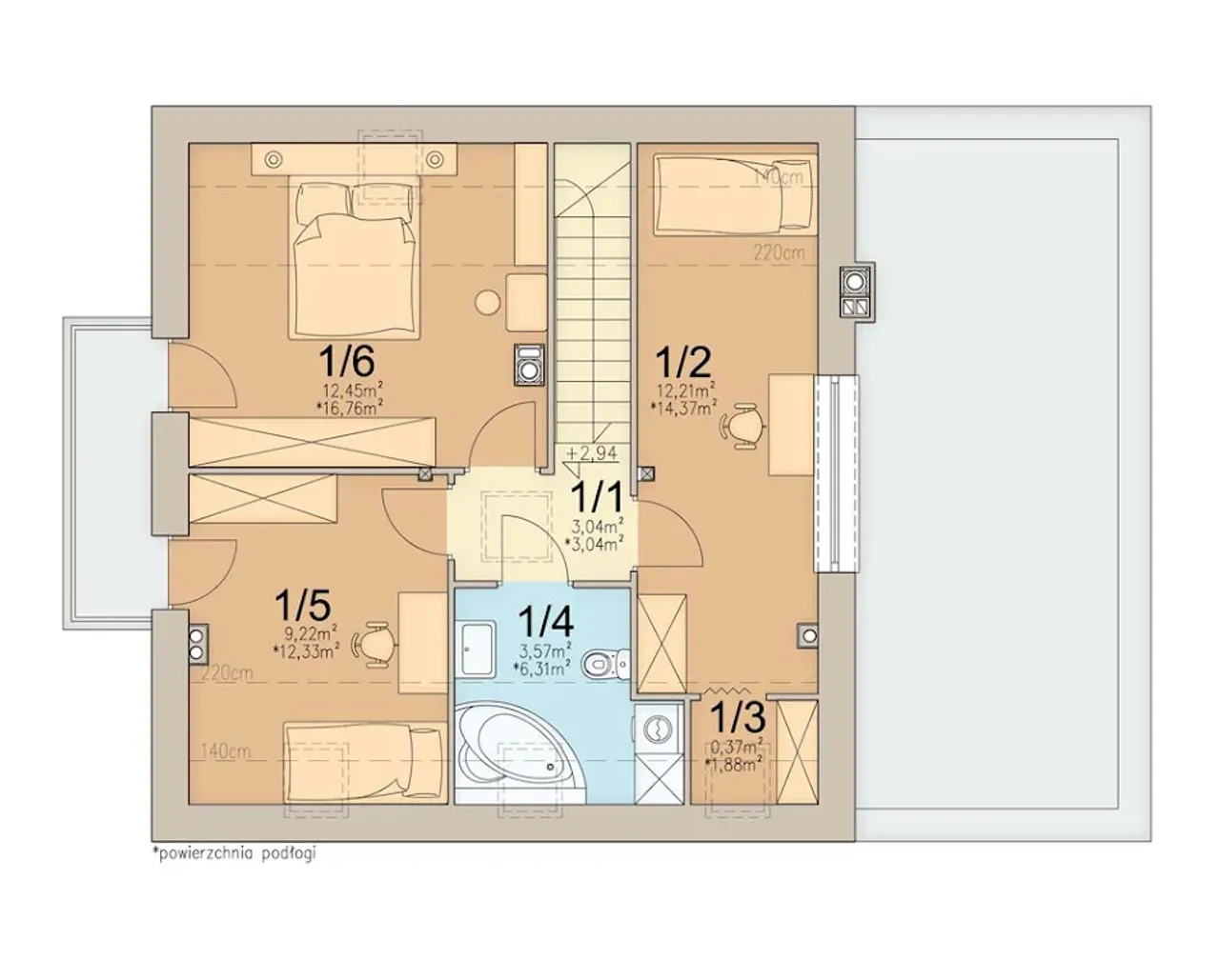
1. Komunikacja | 3,04 (3,04) m² |
2. Pokój | 12,21 (14,37) m² |
3. Garderoba | 0,37 (1,88) m² |
4. łazienka | 3,57 (6,31) m² |
5. Pokój | 9,22 (12,33) m² |
6. Pokój | 12,45 (16,76) m² |
Wypełnij formularz i otrzymaj rysunki w pdf z dokładnymi wymiarami budynku i pomieszczeń (długość, szerokość, wysokość) dla projektu Monte 5
Pow. użytkowa 89.87 m² |
Ilość pokoi 5 |
Powierzchnia zabudowy 108.74 m² |
Kondygnacje parterowy+poddasze |
Garaż 1 stanowisko |
Technologia murowany |
Szerokość działki 20.15 m |
Obiekt dom |
Typ domu jednorodzinny całoroczny |
Powierzchnia dachu 134 m² |
Długość działki 17.55 m |
Ogrzewanie gaz, paliwo stałe |
Wysokość budynku 8.34 m |
Liczba łazieniek 2 |
Styl budynku nowoczesny |
Kominek kominek w projekcie |
Kalenica równoległa do drogi |
Szerokość budynku 8.55 m |
Taras z tarasem |
Kąt nachylenia dachu 40 ° |
Długość budynku 8.95 m |
Piwnica bez podpiwniczenia |
Kubatura 609.22 m³ |
Rodzaj dachu dwuspadowy |
Koszty budowy tylko z kosztorysem, 200-250 tys. |
Pow. użytkowa 89.87 m² |
Powierzchnia zabudowy 108.74 m² |
Garaż 1 stanowisko |
Szerokość działki 20.15 m |
Typ domu jednorodzinny całoroczny |
Długość działki 17.55 m |
Wysokość budynku 8.34 m |
Styl budynku nowoczesny |
Kalenica równoległa do drogi |
Taras z tarasem |
Długość budynku 8.95 m |
Kubatura 609.22 m³ |
Koszty budowy tylko z kosztorysem, 200-250 tys. |
Ilość pokoi 5 |
Kondygnacje parterowy+poddasze |
Technologia murowany |
Obiekt dom |
Powierzchnia dachu 134 m² |
Ogrzewanie gaz, paliwo stałe |
Liczba łazieniek 2 |
Kominek kominek w projekcie |
Szerokość budynku 8.55 m |
Kąt nachylenia dachu 40 ° |
Piwnica bez podpiwniczenia |
Rodzaj dachu dwuspadowy |
Przyszłość Twojej rodziny może rozpocząć się w domu zaprojektowanym z myślą o wygodzie, stylu i funkcjonalności. Projekt Monte 5 to propozycja dedykowana osobom, które cenią nowoczesną architekturę, praktyczne rozwiązania oraz zrównoważone użytkowanie własnej przestrzeni życiowej przez cały rok. To dom parterowy z użytkowym poddaszem i przestronnym tarasem, idealny dla rodzin poszukujących komfortu zarówno w codziennym życiu, jak i podczas spotkań z najbliższymi.
Stwórz miejsce, które będzie odpowiadać na wszystkie potrzeby domowników - od odpoczynku przy kominku, przez wygodne przechowywanie auta w garażu, po rodzinne posiłki na świeżym powietrzu. Ta murowana konstrukcja powstała w oparciu o solidne fundamenty żelbetowe i nowoczesne technologie budowlane. Poznaj atuty projektu Monte 5!
Projekt Monte 5 to dom, który wyróżnia się energooszczędnym, nowoczesnym podejściem do organizacji przestrzeni. Parterowa konstrukcja z funkcjonalnym poddaszem doskonale sprawdza się na działkach z wjazdem od południa lub wschodu, podkreślając równoległe ustawienie kalenicy względem drogi. Dach dwuspadowy o znacznym kącie nachylenia (40°) nadaje budynkowi atrakcyjny wygląd, a drewniana więźba dachowa wraz z trwałym pokryciem z dachówki ceramicznej lub betonowej sprawiają, że budynek służy przez długie lata.
Wnętrze domu idealnie nadaje się dla rodzin z dziećmi - znajdziemy tu aż 5 pokoi do dowolnej aranżacji. Każdy domownik znajdzie swoją przestrzeń do pracy i wypoczynku. Kominek w salonie daje możliwość stworzenia nastrojowej, rodzinnej atmosfery, a przylegający taras zaprasza na posiłki i odpoczynek na świeżym powietrzu. Ogrzewanie gazowe i na paliwo stałe pozwala dopasować system grzewczy do bieżących możliwości i upodobań, co przekłada się na niższe rachunki eksploatacyjne.
Nie wahaj się - wybierz projekt Monte 5 i zacznij budować dom dostosowany do potrzeb Twojej rodziny. Skorzystaj z opcji zamówienia już teraz i przyspiesz realizację swoich planów!
Kupując projekt w technologii murowanej powinieneś budować dom murowany. Zupełna zmiana technologii na szkieletową wymaga przeprojektowania całego budynku ( zmieniają się obciążenia, fundamenty, konstrukcja dachu). Wydamy zgodę na takie przeprojektowanie jednak wiążę się to z dużymi kosztami. Istnieją firmy wykonawcze, które podejmują się zmiany technologii budowy bezpłatnie przy skorzystaniu z ich usług wykonawczych. Zdarza się, że pracownia architektoniczna przygotowuje warianty konkretnego projektu przewidując także inne technologie. Prosimy o sprawdzenie czy istnieje poszukiwana wersja projektu, w zakładce - warianty projektu.
Zwężenie/poszerzenie budynku* to nic innego jak zmiana w projekcie. Istnieje możliwość wprowadzenia takich zmian, we własnym zakresie (podczas adaptacji). *zwężenie/poszerzenie budynku nie powinno stanowić problemu w przypadku domów o dachu dwuspadowym jeśli wiąże się to z wydłużeniem/skróceniem kalenicy dachu.
Poznaj praktyczne porady ekspertów, które ułatwią Ci każdy etap budowy i od wyboru wymarzonego domu po jego wykończenie. Zyskaj pewność, że podejmujesz najlepsze decyzje dzięki sprawdzonym wskazówkom od specjalistów z planz.pl
Wycena szacunkowa, w kwotach netto, nie zawiera instalacji.
bezpłatnie (0zł)
przelew zwykły / PayNow
przy odbiorze
3-5 dni roboczych (jeśli projekt nie wymaga aktualizacji)
Wybierz wygodny dla Ciebie czas kontaktu z naszym Doradcą Technicznym.