Miejski



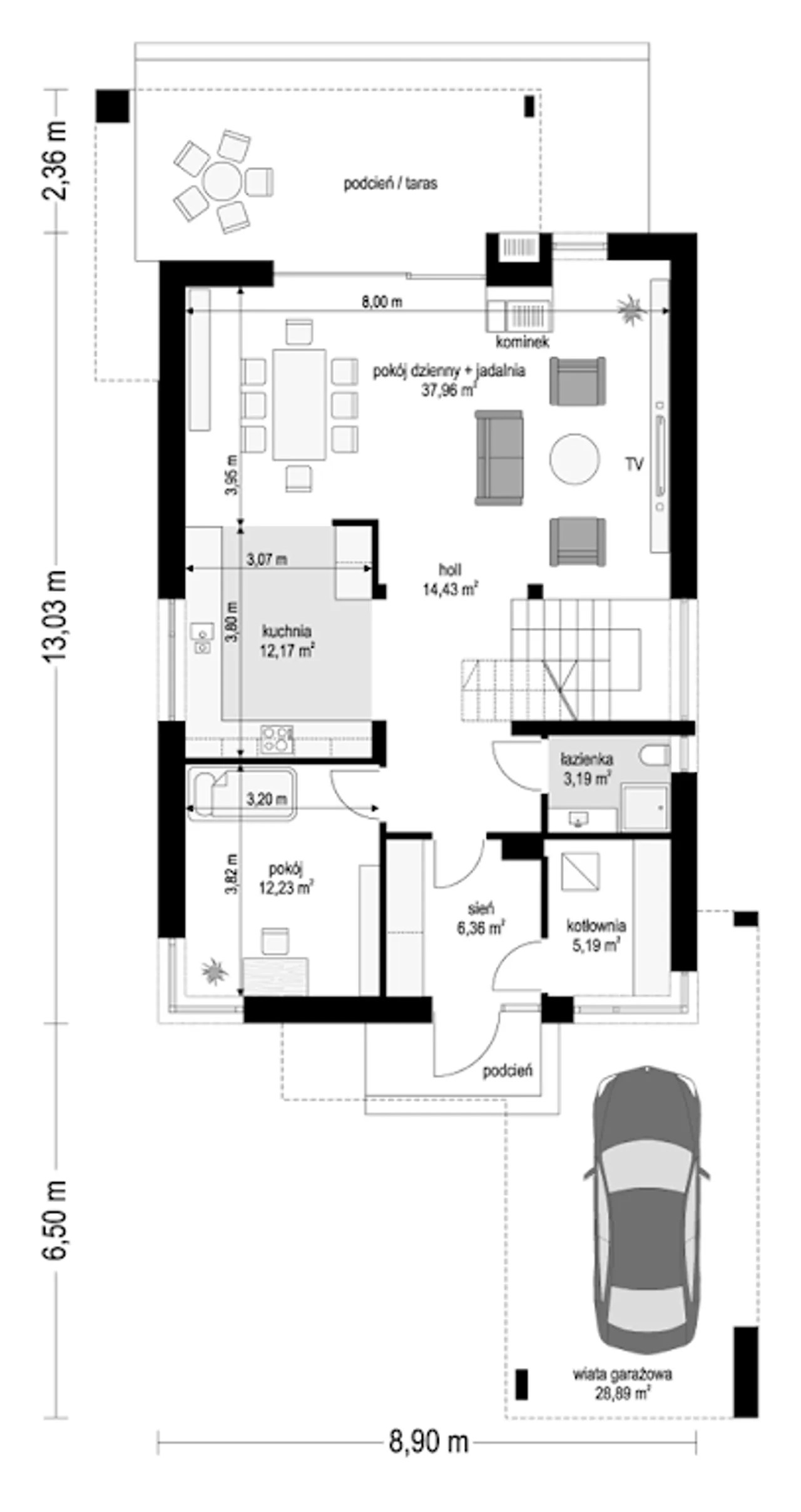
1. Sień | 6,36 m² |
2. Kotłownia | 5,19 m² |
3. łazienka | 3,19 m² |
4. Korytarz | 14,43 m² |
5. Pokój dzienny + jadalnia | 37,96 m² |
6. Kuchnia | 12,17 m² |
7. Pokój | 12,23 m² |
8. Wiata garażowa | 28,89 m² |
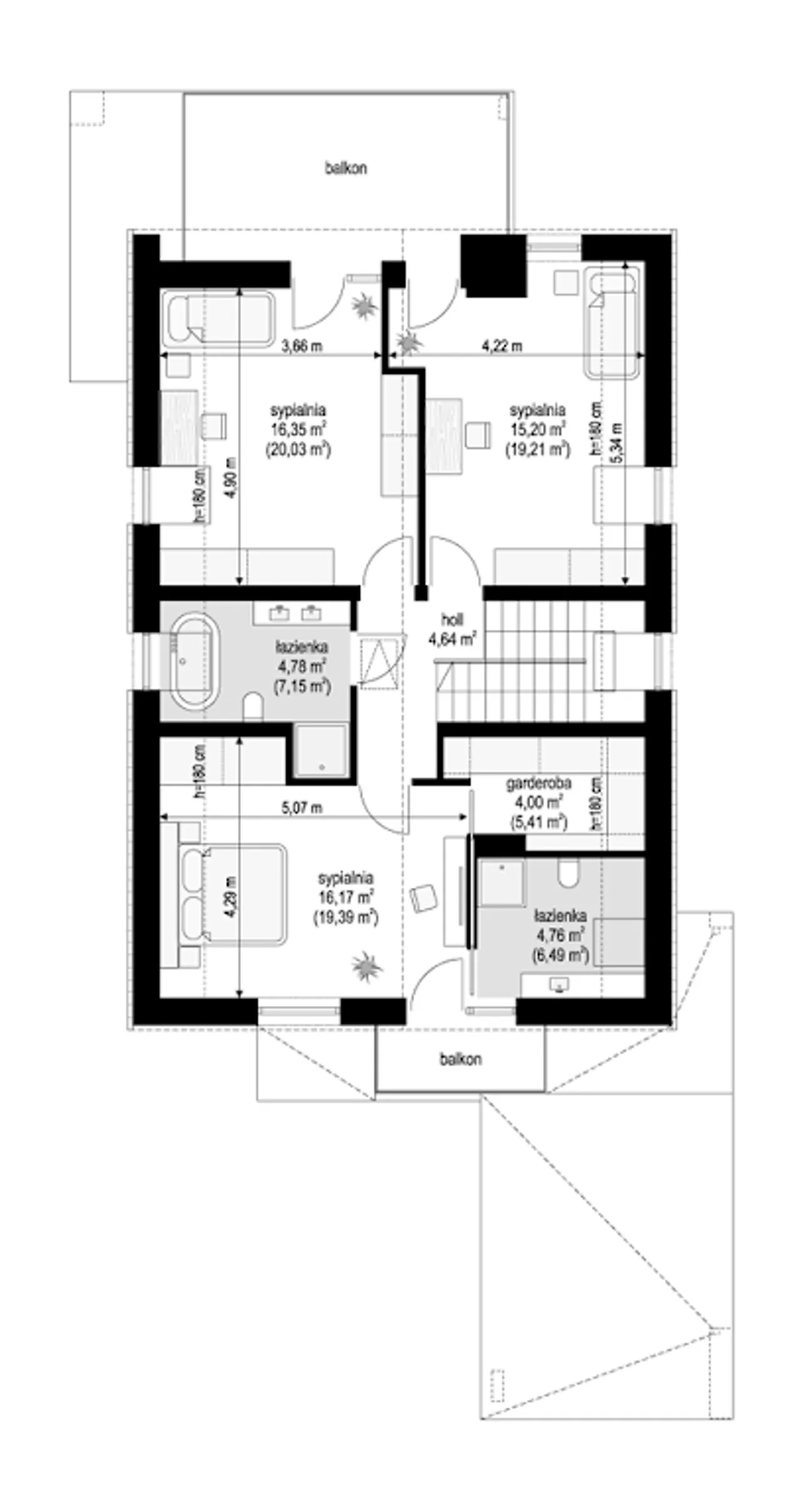
1. Holl | 4,64 m² |
2. Sypialnia | 15,20 (19,21) m² |
3. Sypialnia | 16,35 (20,03) m² |
4. łazienka | 4,78 (7,15) m² |
5. Sypialnia | 16,17 (19,39) m² |
6. łazienka | 4,76 (6,49) m² |
7. Garderoba | 4,00 (5,41) m² |
Wypełnij formularz i otrzymaj rysunki w pdf z dokładnymi wymiarami budynku i pomieszczeń (długość, szerokość, wysokość) dla projektu Miejski 4
Pow. użytkowa 148.08 m² |
Ilość pokoi 5 |
Kondygnacje parterowy+poddasze |
Garaż bez garażu |
Technologia murowany |
Szerokość działki 16.9 m |
Obiekt dom |
Typ domu jednorodzinny całoroczny |
Powierzchnia dachu 168.73 m² |
Wysokość budynku 9 m |
Długość działki 27.89 m |
Styl budynku nowoczesny |
Kalenica prostopadła do drogi |
Liczba łazieniek 3 |
Szerokość budynku 8.9 m |
Kominek kominek w projekcie |
Kąt nachylenia dachu 45 ° |
Długość budynku 13.03 m |
Rodzaj garażu wiata |
Taras z tarasem |
Kubatura 581 m³ |
Rodzaj dachu dwuspadowy |
Piwnica bez podpiwniczenia |
Koszty budowy 450-500 tys., tylko z kosztorysem |
Pow. użytkowa 148.08 m² |
Kondygnacje parterowy+poddasze |
Technologia murowany |
Obiekt dom |
Powierzchnia dachu 168.73 m² |
Długość działki 27.89 m |
Kalenica prostopadła do drogi |
Szerokość budynku 8.9 m |
Kąt nachylenia dachu 45 ° |
Rodzaj garażu wiata |
Kubatura 581 m³ |
Piwnica bez podpiwniczenia |
Ilość pokoi 5 |
Garaż bez garażu |
Szerokość działki 16.9 m |
Typ domu jednorodzinny całoroczny |
Wysokość budynku 9 m |
Styl budynku nowoczesny |
Liczba łazieniek 3 |
Kominek kominek w projekcie |
Długość budynku 13.03 m |
Taras z tarasem |
Rodzaj dachu dwuspadowy |
Koszty budowy 450-500 tys., tylko z kosztorysem |
Odkryj nowoczesny dom całoroczny dla 5-osobowej rodziny - projekt Miejski 4 to propozycja łącząca funkcjonalność z nowoczesnym stylem. Prosty dwuspadowy dach 45°, starannie dobrane materiały i atrakcyjny taras sprawią, że poczujesz się tu naprawdę swobodnie. Dom bez garażu, z komfortową wiatą, spodoba się osobom szukającym przestrzeni do życia i odpoczynku w miejskich warunkach.
Projekt domu jednorodzinnego Miejski 4 sprawdzi się zarówno na wąskiej działce, jak i w podmiejskim krajobrazie. Starannie rozplanowane wnętrza i przemyślana konstrukcja tworzą wygodną przestrzeń dla rodzin z dziećmi lub osób ceniących nowoczesne rozwiązania architektoniczne.
Miejski 4 to doskonały wybór dla każdego, kto szuka domu parterowego z poddaszem użytkowym, przeznaczonego dla 5 osób. Bryła budynku opiera się na solidnych ławach i ścianach fundamentowych z betonu. Zastosowanie ścian murowanych z pustaków Porotherm oraz izolacja styropianem wpływają na trwałość i energooszczędność, co przekłada się na niższe rachunki eksploatacyjne. Dach dwuspadowy z modnym pokryciem z blachy na rąbek świetnie wpisuje się w nowoczesne trendy, a jednocześnie ułatwia odpływ wody i śniegu nawet przy dużych opadach.
Projekt wpisuje się w oczekiwania rodzin z dziećmi - pięć pokoi daje swobodę aranżacji prywatnych przestrzeni do pracy czy nauki. Brak piwnicy to krok ku szybciej postępującej budowie i niższym kosztom inwestycji. Parterowy charakter w połączeniu z poddaszem użytkowym oraz wiata zamiast garażu pozwalają optymalnie zagospodarować działkę, zostawiając więcej miejsca na rekreację lub ogród.
Projekt domu Miejski 4 stawia także na funkcjonalne dodatki, takie jak taras, który płynnie łączy przestrzeń domu z ogrodem czy kominek, dzięki któremu wieczory nabiorą wyjątkowego charakteru. Całoroczny, murowany dom przetrwa każdą pogodę, a przemyślana wentylacja i nowoczesny kocioł gazowy zadbają o odpowiedni mikroklimat przez cały rok.
Przekonaj się, jak dużo możesz zyskać wybierając projekt domu Miejski 4 - zamów projekt i rozpocznij swoją przygodę z budową własnego, nowoczesnego domu już dziś!
Kupując projekt w technologii murowanej powinieneś budować dom murowany. Zupełna zmiana technologii na szkieletową wymaga przeprojektowania całego budynku ( zmieniają się obciążenia, fundamenty, konstrukcja dachu). Wydamy zgodę na takie przeprojektowanie jednak wiążę się to z dużymi kosztami. Istnieją firmy wykonawcze, które podejmują się zmiany technologii budowy bezpłatnie przy skorzystaniu z ich usług wykonawczych. Zdarza się, że pracownia architektoniczna przygotowuje warianty konkretnego projektu przewidując także inne technologie. Prosimy o sprawdzenie czy istnieje poszukiwana wersja projektu, w zakładce - warianty projektu.
Zwężenie/poszerzenie budynku* to nic innego jak zmiana w projekcie. Istnieje możliwość wprowadzenia takich zmian, we własnym zakresie (podczas adaptacji). *zwężenie/poszerzenie budynku nie powinno stanowić problemu w przypadku domów o dachu dwuspadowym jeśli wiąże się to z wydłużeniem/skróceniem kalenicy dachu.
Poznaj praktyczne porady ekspertów, które ułatwią Ci każdy etap budowy i od wyboru wymarzonego domu po jego wykończenie. Zyskaj pewność, że podejmujesz najlepsze decyzje dzięki sprawdzonym wskazówkom od specjalistów z planz.pl
Wycena szacunkowa, w kwotach netto, nie zawiera instalacji.
bezpłatnie (0zł)
przelew zwykły / PayNow
przy odbiorze
3-10 dni roboczych
Poszukując idealnego miejsca dla rodziny, projekt domu "Miejski 4" przyciąga uwagę swoim harmonijnym połączeniem nowoczesności i komfortu. Wyjątkowo przemyślany układ pomieszczeń zachwyca funkcjonalnością, a zarazem tworzy przestrzeń, która inspiruje do tworzenia wspólnych wspomnień. Przestronny salon z dużymi przeszkleniami pozwala cieszyć się naturalnym światłem o każdej porze dnia, nadając wnętrzu przytulny i jednocześnie elegancki charakter. Do tego urzekający taras jawi się jako idealne miejsce na poranne kawy czy wieczorne relaksacje. Subtelne detale architektoniczne tego projektu świadczą o dbałości o każdy aspekt komfortu, tworząc harmonijną całość, w której każdy członek rodziny znajdzie swój azyl. To dom, gdzie codzienność nabiera blasku, a każde wnętrze zaprasza do życie w pełni.
Wybierz wygodny dla Ciebie czas kontaktu z naszym Doradcą Technicznym.