Miejski



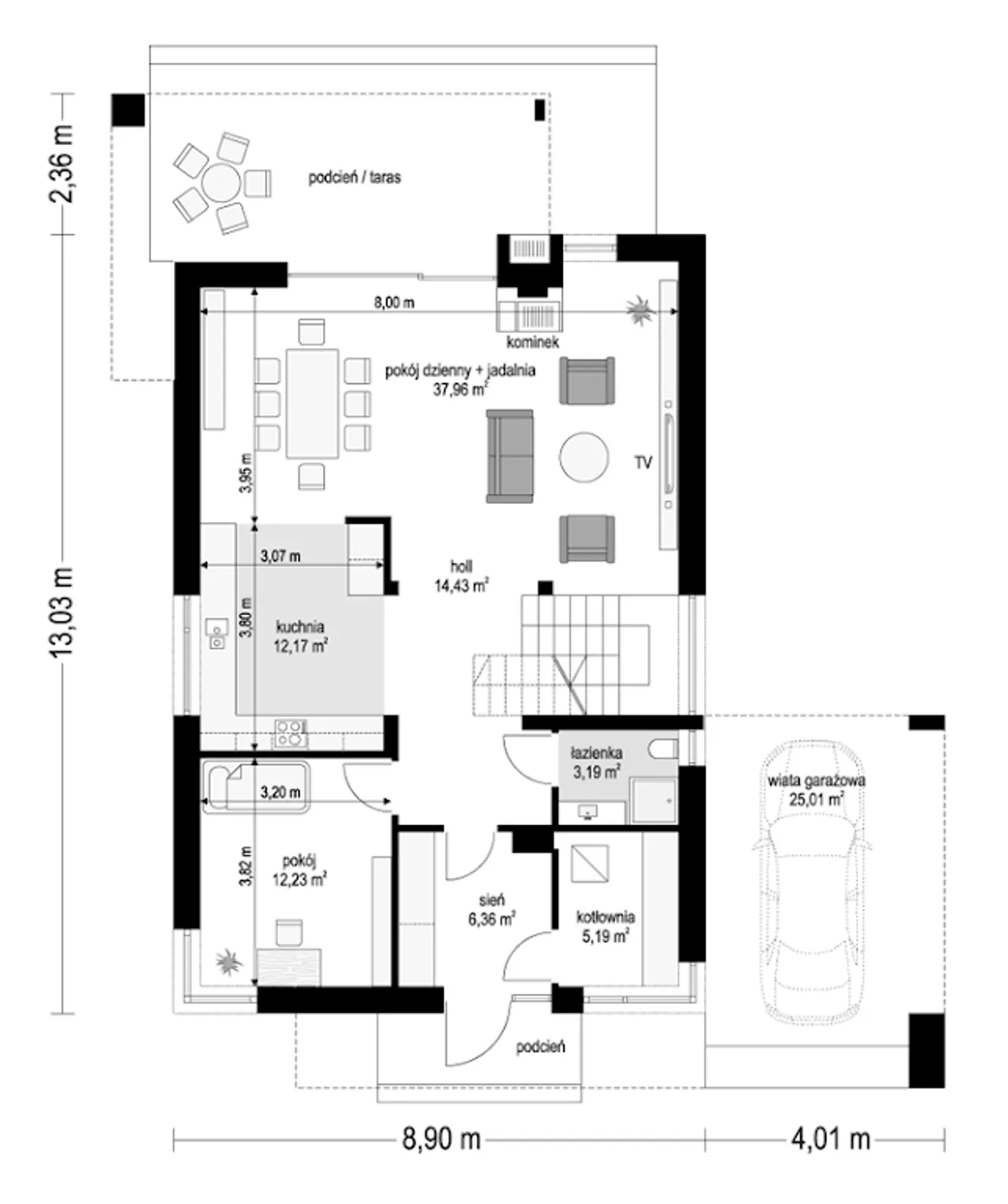
1. Sień | 6,36 m² |
2. Kotłownia | 5,19 m² |
3. łazienka | 3,19 m² |
4. Korytarz | 14,43 m² |
5. Pokój dzienny + jadalnia | 37,96 m² |
6. Kuchnia | 12,17 m² |
7. Pokój | 12,23 m² |
8. Wiata garażowa | 25,01 m² |
1. Holl | 4,64 m² |
2. Sypialnia | 15,20 (19,21) m² |
3. Sypialnia | 16,35 (20,03) m² |
4. łazienka | 4,78 (7,15) m² |
5. Sypialnia | 16,17 (19,39) m² |
6. łazienka | 4,76 (6,49) m² |
7. Garderoba | 4,00 (5,41) m² |
Wypełnij formularz i otrzymaj rysunki w pdf z dokładnymi wymiarami budynku i pomieszczeń (długość, szerokość, wysokość) dla projektu Miejski 3
Pow. użytkowa 148.08 m² |
Ilość pokoi 5 |
Kondygnacje parterowy+poddasze |
Garaż bez garażu |
Technologia murowany |
Szerokość działki 19.91 m |
Obiekt dom |
Typ domu jednorodzinny całoroczny |
Powierzchnia dachu 168.73 m² |
Wysokość budynku 9 m |
Długość działki 22.64 m |
Styl budynku nowoczesny |
Kalenica prostopadła do drogi |
Liczba łazieniek 3 |
Szerokość budynku 8.9 m |
Kominek kominek w projekcie |
Kąt nachylenia dachu 45 ° |
Długość budynku 13.03 m |
Rodzaj garażu wiata |
Taras z tarasem |
Kubatura 581 m³ |
Rodzaj dachu dwuspadowy |
Piwnica bez podpiwniczenia |
Koszty budowy 450-500 tys., tylko z kosztorysem |
Pow. użytkowa 148.08 m² |
Kondygnacje parterowy+poddasze |
Technologia murowany |
Obiekt dom |
Powierzchnia dachu 168.73 m² |
Długość działki 22.64 m |
Kalenica prostopadła do drogi |
Szerokość budynku 8.9 m |
Kąt nachylenia dachu 45 ° |
Rodzaj garażu wiata |
Kubatura 581 m³ |
Piwnica bez podpiwniczenia |
Ilość pokoi 5 |
Garaż bez garażu |
Szerokość działki 19.91 m |
Typ domu jednorodzinny całoroczny |
Wysokość budynku 9 m |
Styl budynku nowoczesny |
Liczba łazieniek 3 |
Kominek kominek w projekcie |
Długość budynku 13.03 m |
Taras z tarasem |
Rodzaj dachu dwuspadowy |
Koszty budowy 450-500 tys., tylko z kosztorysem |
Chcesz mieszkać w wygodnym i stylowym domu, który łączy nowoczesną funkcjonalność z klasycznym urokiem? Projekt jednorodzinnego domu Miejski 3 to propozycja dla rodzin poszukujących przestrzeni do życia i odpoczynku bez kompromisów. Idealny dla 4-6 osób, dom ten przyciąga uwagę przemyślaną formą, atrakcyjnym tarasem i rozwiązaniami sprzyjającymi codziennemu komfortowi.
Wybierz projekt, który pozwoli Ci zorganizować życie rodzinne na nowym poziomie. Solidna konstrukcja i modne wykończenia przekładają się na estetykę oraz łatwość budowy i użytkowania.
Dom wybudowany na podstawie projektu Miejski 3 zachwyca nowoczesną bryłą, która znakomicie prezentuje się zarówno na miejskiej parceli, jak i na podmiejskiej działce. Prostopadła kalenica względem drogi oraz murowana technologia bazująca na pustakach porotherm i solidnych fundamentach przekładają się na trwałość i bezpieczeństwo inwestycji.
Dwukondygnacyjna konstrukcja - parter z poddaszem - umożliwia wygodny podział na aktywną strefę dzienną i kameralne przestrzenie prywatne. Blacha na rąbek, użyta jako pokrycie dachu, podkreśla designerski sznyt, a jednocześnie gwarantuje szczelność oraz łatwość konserwacji.
Taras staje się naturalnym przedłużeniem salonu - idealnym miejscem na spotkania z rodziną, letnie przyjęcia lub spokojny relaks z książką. Kominek w projekcie nada wnętrzom przytulności, szczególnie podczas jesiennych lub zimowych wieczorów.
Nie zwlekaj - zamów projekt Miejski 3 już teraz i rozpocznij budowę swojego nowego domu! Przekonaj się, jak funkcjonalna może być współczesna architektura jednorodzinna.
Kupując projekt w technologii murowanej powinieneś budować dom murowany. Zupełna zmiana technologii na szkieletową wymaga przeprojektowania całego budynku ( zmieniają się obciążenia, fundamenty, konstrukcja dachu). Wydamy zgodę na takie przeprojektowanie jednak wiążę się to z dużymi kosztami. Istnieją firmy wykonawcze, które podejmują się zmiany technologii budowy bezpłatnie przy skorzystaniu z ich usług wykonawczych. Zdarza się, że pracownia architektoniczna przygotowuje warianty konkretnego projektu przewidując także inne technologie. Prosimy o sprawdzenie czy istnieje poszukiwana wersja projektu, w zakładce - warianty projektu.
Zwężenie/poszerzenie budynku* to nic innego jak zmiana w projekcie. Istnieje możliwość wprowadzenia takich zmian, we własnym zakresie (podczas adaptacji). *zwężenie/poszerzenie budynku nie powinno stanowić problemu w przypadku domów o dachu dwuspadowym jeśli wiąże się to z wydłużeniem/skróceniem kalenicy dachu.
Poznaj praktyczne porady ekspertów, które ułatwią Ci każdy etap budowy i od wyboru wymarzonego domu po jego wykończenie. Zyskaj pewność, że podejmujesz najlepsze decyzje dzięki sprawdzonym wskazówkom od specjalistów z planz.pl
Wycena szacunkowa, w kwotach netto, nie zawiera instalacji.
bezpłatnie (0zł)
przelew zwykły / PayNow
przy odbiorze
3-10 dni roboczych
Projekt domu "Miejski 3" prezentuje się jak współczesna oaza, idealnie dostosowana do potrzeb dynamicznie żyjącej rodziny. Stylowa fasada z subtelnymi elementami drewna świetnie kontrastuje z nowoczesnymi, dużymi przeszkleniami, co sprawia, że budynek przyciąga wzrok, jednocześnie zachowując ciepły, rodzinny charakter. Duży taras staje się naturalnym przedłużeniem przestrzeni życiowej, oferując doskonałe miejsce do rodzinnego relaksu i spotkań w gronie przyjaciół. Wewnątrz, funkcjonalny układ pomieszczeń zapewnia intymność oraz komfortowe warunki dla każdego z domowników, co czyni ten projekt nie tylko estetycznie zachwycającym, ale również niezwykle praktycznym. Cena, jaką płaci się za harmonijne połączenie funkcjonalności i designu, wydaje się inwestycją w wysoki standard życia rodzinnego.
Wybierz wygodny dla Ciebie czas kontaktu z naszym Doradcą Technicznym.