Miarodajny - C333



Wypełnij formularz i otrzymaj rysunki w pdf z dokładnymi wymiarami budynku i pomieszczeń (długość, szerokość, wysokość) dla projektu Miarodajny - wariant V - C333e
Pow. użytkowa 63.1 m² |
Ilość pokoi 2 |
Powierzchnia zabudowy 110.6 m² |
Kondygnacje parterowy |
Garaż 1 stanowisko |
Technologia murowany |
Szerokość działki 19.3 m |
Obiekt dom |
Typ domu jednorodzinny całoroczny |
Kubatura 614.2 m³ |
Bryła budynku prosta bryła |
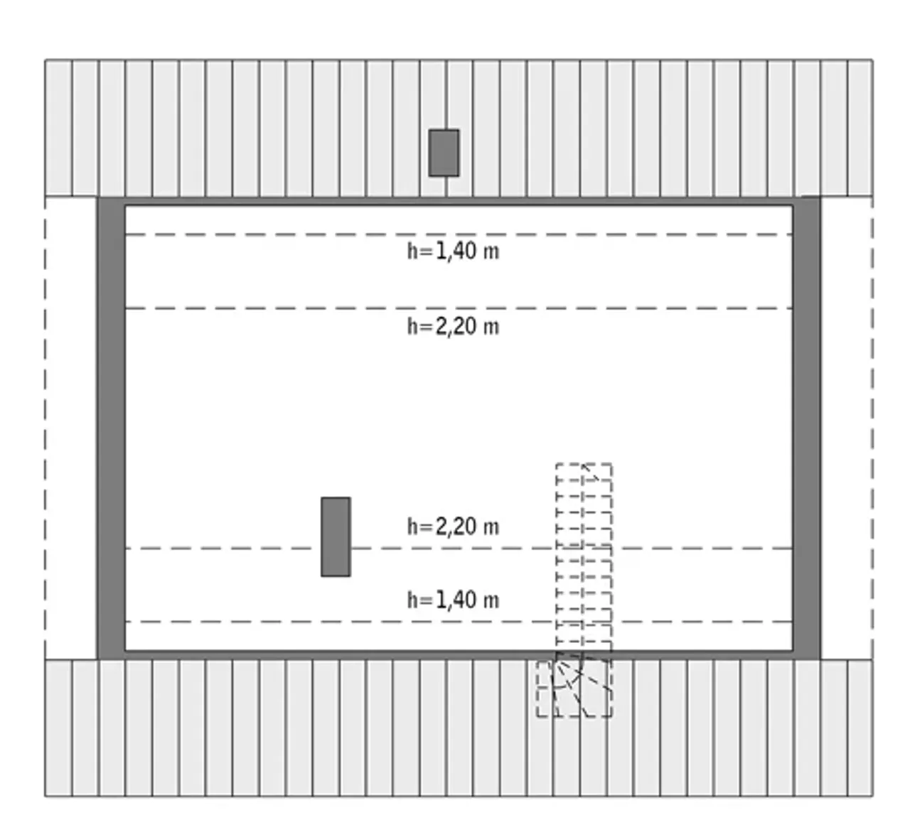
Wysokość budynku 7.27 m |
Strop żelbetowy |
Długość działki 17.9 m |
Styl budynku nowoczesny |
Liczba łazieniek 1 |
Kalenica równoległa do drogi |
Kominek kominek w projekcie |
Kąt nachylenia dachu 35 ° |
Kotłownia duża kotłownia |
Szerokość budynku 11.3 m |
Rodzaj garażu w bryle |
Taras z tarasem |
Długość budynku 9.9 m |
Rodzaj dachu dwuspadowy |
Piwnica bez podpiwniczenia |
Pow. użytkowa 63.1 m² |
Powierzchnia zabudowy 110.6 m² |
Garaż 1 stanowisko |
Szerokość działki 19.3 m |
Typ domu jednorodzinny całoroczny |
Bryła budynku prosta bryła |
Strop żelbetowy |
Styl budynku nowoczesny |
Kalenica równoległa do drogi |
Kąt nachylenia dachu 35 ° |
Szerokość budynku 11.3 m |
Taras z tarasem |
Rodzaj dachu dwuspadowy |
Ilość pokoi 2 |
Kondygnacje parterowy |
Technologia murowany |
Obiekt dom |
Kubatura 614.2 m³ |
Wysokość budynku 7.27 m |
Długość działki 17.9 m |
Liczba łazieniek 1 |
Kominek kominek w projekcie |
Kotłownia duża kotłownia |
Rodzaj garażu w bryle |
Długość budynku 9.9 m |
Piwnica bez podpiwniczenia |
Kupując projekt w technologii murowanej powinieneś budować dom murowany. Zupełna zmiana technologii na szkieletową wymaga przeprojektowania całego budynku ( zmieniają się obciążenia, fundamenty, konstrukcja dachu). Wydamy zgodę na takie przeprojektowanie jednak wiążę się to z dużymi kosztami. Istnieją firmy wykonawcze, które podejmują się zmiany technologii budowy bezpłatnie przy skorzystaniu z ich usług wykonawczych. Zdarza się, że pracownia architektoniczna przygotowuje warianty konkretnego projektu przewidując także inne technologie. Prosimy o sprawdzenie czy istnieje poszukiwana wersja projektu, w zakładce - warianty projektu.
Zwężenie/poszerzenie budynku* to nic innego jak zmiana w projekcie. Istnieje możliwość wprowadzenia takich zmian, we własnym zakresie (podczas adaptacji). *zwężenie/poszerzenie budynku nie powinno stanowić problemu w przypadku domów o dachu dwuspadowym jeśli wiąże się to z wydłużeniem/skróceniem kalenicy dachu.
Poznaj praktyczne porady ekspertów, które ułatwią Ci każdy etap budowy i od wyboru wymarzonego domu po jego wykończenie. Zyskaj pewność, że podejmujesz najlepsze decyzje dzięki sprawdzonym wskazówkom od specjalistów z planz.pl
bezpłatnie (0zł)
przelew zwykły / PayNow
przy odbiorze
3-5 dni roboczych (jeśli projekt nie wymaga aktualizacji)
Wybierz wygodny dla Ciebie czas kontaktu z naszym Doradcą Technicznym.