22 299 20 00 (pn-nd 9.30 do 19.30)

Gotowy projekt domu Marcel II G2 (ID: 15316)

4400 2025-12-23
Marcel II G2 - 128.96m²
Projekt dostępny od ręki
Gwarantujemy najniższą cenę
4400 zł
(5500 zł brutto)
TANIEJ 1100 zł
Najniższa cena z 30 dni przed obniżką: 4400 zł
4400 2025-12-23
W cenie projektu:
📣 GRATIS: WIERTARKA UDAROWA
  • Tablica + dziennik budowy
  • 16 projektów ogrodowych
  • Darmowa wysyłka (kurier, paczkomat, pobranie)
  • 30 dni na zwrot
  • Pozwolenie na zmiany z podpisem i pieczęcią autora
  • GRATIS: Wiertarka Udarowa
22 299 20 00 (pn-nd 9.30 do 19.30)

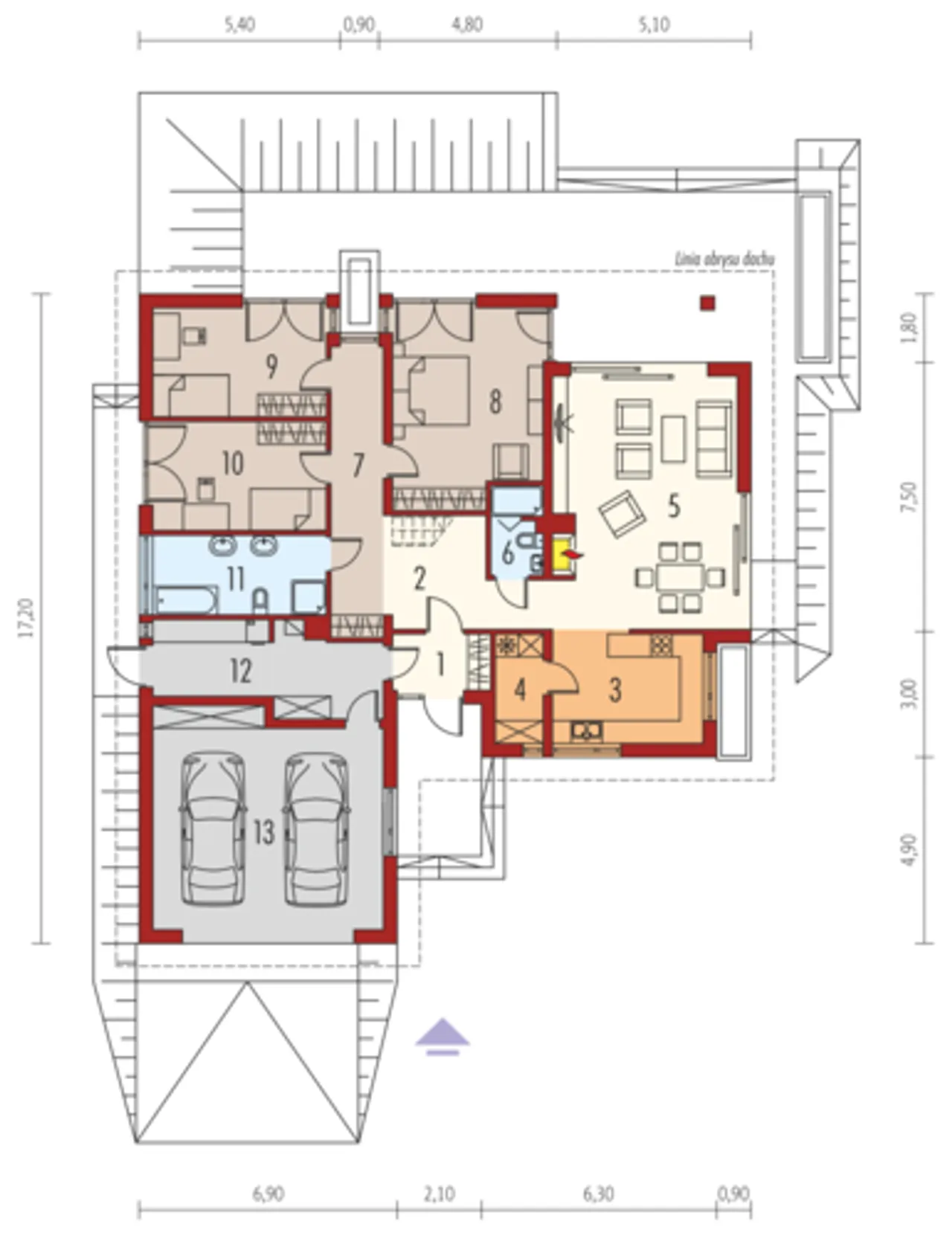
Rzuty gotowego projektu domu Marcel II G2

1. Wiatrołap 3,72 m²
2. Hol 10,09 m²
3. Kuchnia 11,48 m²
4. Spiżarnia 3,53 m²
5. Pokój dzienny, jadalnia 31,69 m²
6. łazienka 3,08 m²
7. Korytarz 10,38 m²
8. Sypialnia 19,75 m²
9. Sypialnia 12,91 m²
10. Sypialnia 12,91 m²
11. łazienka 9,42 m²
12. Kotłownia 12,63 m²
13. Garaż 34,39 m²
1. Poddasze do adaptacji 68,64 m²

Zapoznaj się ze szczegółami projektu - pobierz bezpłatne rysunki do: Marcel II G2

Wypełnij formularz i otrzymaj rysunki w pdf z dokładnymi wymiarami budynku i pomieszczeń (długość, szerokość, wysokość) dla projektu Marcel II G2

Parametry Techniczne gotowego projektu domu Marcel II G2

Ilość pokoi 3
Pow. użytkowa 128.96 m²
Powierzchnia zabudowy 231.88 m²
Kondygnacje parterowy
Garaż 2 stanowiska
Technologia murowany
Szerokość działki 24.2 m
Obiekt dom
Typ domu jednorodzinny całoroczny
Kubatura 498.33 m³
Rodzaj dachu wielospadowy
Ogrzewanie paliwo stałe, pompa ciepła
Funkcje dodatkowe z dwoma wejściami
Powierzchnia dachu 308.1 m²
Przechowywanie w kuchni spiżarnia
Długość działki 25.2 m
Liczba łazieniek 2
Wysokość budynku 7.59 m
Styl budynku nowoczesny
Kominek kominek w projekcie
Kotłownia duża kotłownia
Kąt nachylenia dachu 30 °
Strop gęstożebrowy
Szerokość budynku 16.2 m
Taras z tarasem
Kalenica równoległa do drogi
Długość budynku 17.2 m
Rodzaj garażu z przodu
Piwnica bez podpiwniczenia
Koszty budowy 350-400 tys., tylko z kosztorysem

Energia i ogrzewanie gotowego projektu domu Marcel II G2

Źródło ogrzewania:
paliwo stałe
pompa ciepła

Nasze prawdziwe opinie z Google

Opis projektu domu Marcel II G2

Gotowy projekt domu Marcel II G2 to murowany dom z przynależnym garażem dwustanowiskowym. Decydując się na projekt Marcel II G2, przyszli inwestorzy zamieszkają w budynku parterowym. Konstrukcję dachu wieńczy dach dwuspadowy, a całość utrzymana jest w tradycyjnej stylistyce. Gotowy projekt domu Marcel II G2 będzie domem w zabudowie całorocznej, bez podpiwniczenia, w którym przewidziano instalację kominkową. Projekt charakteryzuje połaczenie tradycyjności z nowoczesnością dzięki prostej bryle i wspólczesnym rozwiązaniom wykorzystanym przy projektowaniu rozkładu pomieszczeń wewnątrz budynku. Ważnymi elementami wykorzystanymi w projekcie jest elegancki wygląd zewnętrzny, proporcjonalna bryła, funkcjonalne rozmieszczenie pomieszczeń wewnątrz budynku oraz dbałość o odpowiednie doświetlenie pomieszczeń. Projekt charakteryzuje elegancka forma i tradycyjna estetyka.

Częste pytania

Czy projekty z Planz.pl są kompletne?

Tak. Projekty dostępne na Planz.pl zawierają pełną dokumentację potrzebną do uzyskania pozwolenia na budowę i stanowią gwarancję sprawnej realizacji budowy.

Jesteśmy oficjalnym partnerem ponad 50 pracowni architektonicznych z całej Polski - dlatego każdy projekt pochodzi wyłącznie od autorów zrzeszonych w Izbie Architektów RP. 

Planz.pl to polska firma działającą na rynku od 15 lat. Mamy tysiące zadowolonych klientów, doskonałe opinie i oferujemy wsparcie również po zakupie, doradzamy, pomagamy w adaptacji i pozostajemy w kontakcie na każdym etapie inwestycji.

Dodatkowo do każdego projektu dodajemy tablicę informacyjną, dziennik budowy oraz 16 projektów elektronicznych drewnianej architektury ogrodowej. A dzięki naszej współpracy z producentami sprzętu elektrycznego, oferujemy możliwość otrzymania np. Wiertarki udarowej w formie atrakcyjnego gratisu.

Wybierając Planz.pl, otrzymujesz ten sam oryginalny projekt od autora, wzbogacony o realne dodatki, które ułatwiają rozpoczęcie budowy.

Czy mogę wprowadzić zmiany w projekcie?

Co zrobić gdy wybrany dom nie mieści się na działce?

Jakie zmiany można wprowadzić w projekcie?

Porady ekspertów

Poznaj praktyczne porady ekspertów, które ułatwią Ci każdy etap budowy i od wyboru wymarzonego domu po jego wykończenie. Zyskaj pewność, że podejmujesz najlepsze decyzje dzięki sprawdzonym wskazówkom od specjalistów z planz.pl

Co zawiera projekt

  • ✓ 3 x projekt architektoniczno-budowlany ➞ szczegóły
  • ✓ Projekty techniczne ➞ szczegóły
  • ✓ charakterystyka energetyczna (do projektów domów)
  • ✓ zgoda na zmiany w projekcie ➞ szczegóły
  • ✓ GRATIS: Wiertarka (do projektów w cenie od 3000 zł)
  • ✓ GRATIS: 16 projektów (drewutni, altany i wiaty)
  • ✓ GRATIS: tablica i dziennik budowy
  • ✓ GRATIS: przesyłka kurierska

Dodatki do projektu Marcel II G2

Dodatki możesz kupić razem z projektem lub dokupić po czasie

[Archiportal] Dodatkowy egzemplarz projektu (700 zł)

[Archipelag] Projekt wentylacji mechanicznej (1500 zł)

[Archipelag] Projekt instalacji węzła grzewczego z pompą ciepła (1500 zł)

[Archipelag] Projekt ogrzewania podłogowego (1000 zł)

[Archipelag] Projekt paneli fotowoltaicznych (1000 zł)

[Planz] Tablica budowlana (0 zł)

[Planz] Dziennik budowy (0 zł)

[Planz] Wiertarka udarowa (0 zł)

[Planz] Zgoda na zmiany w projekcie (0 zł)

[Planz] Projekty architektury ogrodowej (0 zł)

[Planz] Charakterystyka energetyczna, tylko dla domów całorocznych (0 zł)

Wysyłka i płatność za projekt Marcel II G2

Koszty wysyłki

bezpłatnie (0zł)

Formy płatności

przelew zwykły / PayNow
przy odbiorze

Czas oczekiwania

3-5 dni roboczych (jeśli projekt nie wymaga aktualizacji)

Wersje gotowego projektu domu Marcel II G2

Podobne projekty do domu Marcel II G2

Szacunkowy kosztorys dla projektu Marcel II G2

Stan surowy zamknięty 284000 zł
Stan surowy zamknięty
Stan deweloperski 372500 zł
Stan deweloperski

Wycena szacunkowa, w kwotach netto, nie zawiera instalacji.

PRACOWNIA: Archipelag Artur Wójciak