Maleństwo C
 murowany
 murowany                                         bez garażu
 bez garażu                                         parterowy+poddasze
 parterowy+poddasze                                         
 
	
	Zawartość projektu
3 egzemplarze projektu archtektoniczno budowlanego + 3 egzemplarze projektu technicznego.
		- Opis architektoniczno - budowlany
		- Część rysunkowa (elewacje, rzuty, przekroje, zestawienie stolarki)
Projekt techniczny zawiera:
		- Projekt konstrukcji
		- Instalacje sanitarne + gazowe/ sanitarne + paliwo stałe
		- instalacje elektryczne
Wypełnij formularz i otrzymaj rysunki w pdf z dokładnymi wymiarami budynku i pomieszczeń (długość, szerokość, wysokość) dla projektu Maleństwo B
 
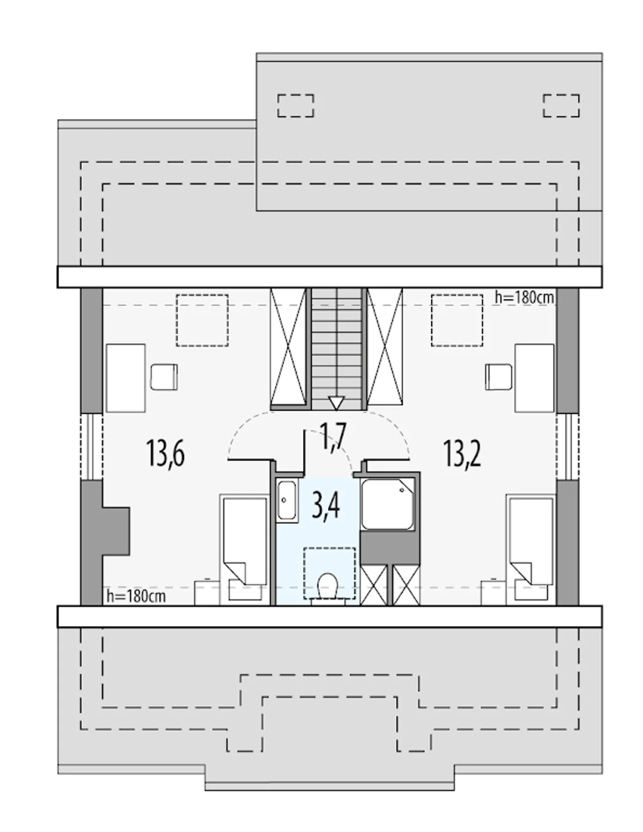
                                | Pow. użytkowa 95.9 m² | 
| Ilość pokoi 4 | 
| Powierzchnia zabudowy 98.1 m² | 
| Kondygnacje parterowy+poddasze | 
| Garaż bez garażu | 
| Technologia murowany | 
| Szerokość działki 16 m | 
| Obiekt dom | 
| Typ domu jednorodzinny całoroczny | 
| Długość działki 19.34 m | 
| Bryła budynku prosta bryła | 
| Styl budynku tradycyjny | 
| Liczba łazieniek 2 | 
| Kąt nachylenia dachu 35 ° | 
| Strop gęstożebrowy | 
| Kominek kominek w projekcie | 
| Kalenica równoległa do drogi | 
| Szerokość budynku 9 m | 
| Kotłownia duża kotłownia | 
| Długość budynku 11.34 m | 
| Rodzaj dachu dwuspadowy | 
| Piwnica bez podpiwniczenia | 
| Ogrzewanie gaz, paliwo stałe | 
| Wysokość budynku 7.15 m | 
| Przechowywanie w kuchni spiżarnia | 
| Koszty budowy tylko z kosztorysem, 200-250 tys. | 
| Pow. użytkowa 95.9 m² | 
| Powierzchnia zabudowy 98.1 m² | 
| Garaż bez garażu | 
| Szerokość działki 16 m | 
| Typ domu jednorodzinny całoroczny | 
| Bryła budynku prosta bryła | 
| Liczba łazieniek 2 | 
| Strop gęstożebrowy | 
| Kalenica równoległa do drogi | 
| Kotłownia duża kotłownia | 
| Rodzaj dachu dwuspadowy | 
| Ogrzewanie gaz, paliwo stałe | 
| Przechowywanie w kuchni spiżarnia | 
| Ilość pokoi 4 | 
| Kondygnacje parterowy+poddasze | 
| Technologia murowany | 
| Obiekt dom | 
| Długość działki 19.34 m | 
| Styl budynku tradycyjny | 
| Kąt nachylenia dachu 35 ° | 
| Kominek kominek w projekcie | 
| Szerokość budynku 9 m | 
| Długość budynku 11.34 m | 
| Piwnica bez podpiwniczenia | 
| Wysokość budynku 7.15 m | 
| Koszty budowy tylko z kosztorysem, 200-250 tys. | 
 
                                                       
                                                   
                        
                                                   
                      Tak. Projekty dostępne na Planz.pl zawierają pełną dokumentację potrzebną do uzyskania pozwolenia na budowę i stanowią gwarancję sprawnej realizacji budowy.
Jesteśmy oficjalnym partnerem ponad 50 pracowni architektonicznych z całej Polski - dlatego każdy projekt pochodzi wyłącznie od autorów zrzeszonych w Izbie Architektów RP.
Planz.pl to polska firma działającą na rynku od 12 lat. Mamy tysiące zadowolonych klientów, doskonałe opinie i oferujemy wsparcie również po zakupie, doradzamy, pomagamy w adaptacji i pozostajemy w kontakcie na każdym etapie inwestycji.
Dodatkowo do każdego projektu dodajemy tablicę informacyjną, dziennik budowy oraz 16 projektów elektronicznych drewnianej architektury ogrodowej. A dzięki naszej współpracy z markami Blaupunkt i PRIME3 oferujemy możliwość otrzymania sprzętu elektrycznego w formie atrakcyjnego gratisu.
Wybierając Planz.pl, otrzymujesz ten sam oryginalny projekt od autora, wzbogacony o realne dodatki, które ułatwiają rozpoczęcie budowy.
Zwężenie/poszerzenie budynku* to nic innego jak zmiana w projekcie. Istnieje możliwość wprowadzenia takich zmian, we własnym zakresie (podczas adaptacji). *zwężenie/poszerzenie budynku nie powinno stanowić problemu w przypadku domów o dachu dwuspadowym jeśli wiąże się to z wydłużeniem/skróceniem kalenicy dachu.
Poznaj praktyczne porady ekspertów, które ułatwią Ci każdy etap budowy i od wyboru wymarzonego domu po jego wykończenie. Zyskaj pewność, że podejmujesz najlepsze decyzje dzięki sprawdzonym wskazówkom od specjalistów z planz.pl
Dodatki możesz kupić razem z projektem lub dokupić po czasie
 [Hor] Wentylacja mechaniczna z rekuperacją (750 zł)
            
            [Hor] Wentylacja mechaniczna z rekuperacją (750 zł)           [Hor] Projekt instalacji pompy ciepła (1000 zł)
            
            [Hor] Projekt instalacji pompy ciepła (1000 zł)           [Hor] Płyta fundamentowa (1800 zł)
            
            [Hor] Płyta fundamentowa (1800 zł)           [Hor] Ogrzewanie podłogowe (800 zł)
            
            [Hor] Ogrzewanie podłogowe (800 zł)           [Hor] Egzemplarz archiwalny projektu (300 zł)
            
            [Hor] Egzemplarz archiwalny projektu (300 zł)           [Hor] Strop monolityczny (1900 zł)
            
            [Hor] Strop monolityczny (1900 zł)           [Planz] Tablica budowlana (0 zł)
            
            [Planz] Tablica budowlana (0 zł)           [Planz] Dziennik budowy (0 zł)
            
            [Planz] Dziennik budowy (0 zł)           [Planz] Wiertarka udarowa (0 zł)
            
            [Planz] Wiertarka udarowa (0 zł)           [Planz] Zgoda na zmiany w projekcie (0 zł)
            
            [Planz] Zgoda na zmiany w projekcie (0 zł)           [Planz] Projekty architektury ogrodowej (0 zł)
            
            [Planz] Projekty architektury ogrodowej (0 zł)           [Planz] Charakterystyka energetyczna, tylko dla domów całorocznych (0 zł)
            
            [Planz] Charakterystyka energetyczna, tylko dla domów całorocznych (0 zł)           
		bezpłatnie (0zł)
 
		
			przelew zwykły / PayNow
			przy odbiorze
 
		4-8 dni roboczych (jeśli projekt nie wymaga aktualizacji)
 murowany
 murowany                                         bez garażu
 bez garażu                                         parterowy+poddasze
 parterowy+poddasze                                         murowany
 murowany                                         bez garażu
 bez garażu                                         parterowy
 parterowy                                         
                                   
                                  Wycena szacunkowa, w kwotach netto, nie zawiera instalacji.
Wybierz wygodny dla Ciebie czas kontaktu z naszym Doradcą Technicznym.