Elegant



Wypełnij formularz i otrzymaj rysunki w pdf z dokładnymi wymiarami budynku i pomieszczeń (długość, szerokość, wysokość) dla projektu Madras 2G
Pow. użytkowa 116.5 m² |
Ilość pokoi 5 |
Powierzchnia zabudowy 128.3 m² |
Kondygnacje parterowy+poddasze |
Garaż 2 stanowiska |
Technologia murowany |
Szerokość działki 24.1 m |
Obiekt dom |
Typ domu jednorodzinny całoroczny |
Styl budynku nowoczesny |
Długość działki 16.6 m |
Kąt nachylenia dachu 40 ° |
Strop gęstożebrowy |
Kalenica równoległa do drogi |
Rodzaj garażu przyklejony |
Liczba łazieniek 2 |
Funkcje dodatkowe ze strychem |
Szerokość budynku 16.1 m |
Rodzaj dachu dwuspadowy |
Kominek kominek w projekcie |
Długość budynku 8.6 m |
Przechowywanie w kuchni spiżarnia |
Piwnica bez podpiwniczenia |
Bryła budynku prosta bryła |
Wysokość budynku 8.06 m |
Koszty budowy tylko z kosztorysem, 250-300 tys. |
Pow. użytkowa 116.5 m² |
Powierzchnia zabudowy 128.3 m² |
Garaż 2 stanowiska |
Szerokość działki 24.1 m |
Typ domu jednorodzinny całoroczny |
Długość działki 16.6 m |
Strop gęstożebrowy |
Rodzaj garażu przyklejony |
Funkcje dodatkowe ze strychem |
Rodzaj dachu dwuspadowy |
Długość budynku 8.6 m |
Piwnica bez podpiwniczenia |
Wysokość budynku 8.06 m |
Ilość pokoi 5 |
Kondygnacje parterowy+poddasze |
Technologia murowany |
Obiekt dom |
Styl budynku nowoczesny |
Kąt nachylenia dachu 40 ° |
Kalenica równoległa do drogi |
Liczba łazieniek 2 |
Szerokość budynku 16.1 m |
Kominek kominek w projekcie |
Przechowywanie w kuchni spiżarnia |
Bryła budynku prosta bryła |
Koszty budowy tylko z kosztorysem, 250-300 tys. |
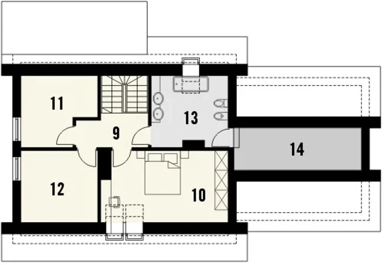
Gotowy projekt MADRAS_2G to budynek piętrowy o prostej bryle w technologii murowanej. Budynek zaprojektowany został w stylu tradycyjnym z dachem dwuspadowym. W projekcie nie przewidziano podpiwniczenia. Do budynku przynależy garaż 2 stanowiskowy. W projekcie nie przewidziano pomieszczenia na garderobę. W pobliżu pomieszczenia kuchennego znajduje się spiżarnia. W przestronnym salonie znajduje się kominek.
Kupując projekt w technologii murowanej powinieneś budować dom murowany. Zupełna zmiana technologii na szkieletową wymaga przeprojektowania całego budynku ( zmieniają się obciążenia, fundamenty, konstrukcja dachu). Wydamy zgodę na takie przeprojektowanie jednak wiążę się to z dużymi kosztami. Istnieją firmy wykonawcze, które podejmują się zmiany technologii budowy bezpłatnie przy skorzystaniu z ich usług wykonawczych. Zdarza się, że pracownia architektoniczna przygotowuje warianty konkretnego projektu przewidując także inne technologie. Prosimy o sprawdzenie czy istnieje poszukiwana wersja projektu, w zakładce - warianty projektu.
Zwężenie/poszerzenie budynku* to nic innego jak zmiana w projekcie. Istnieje możliwość wprowadzenia takich zmian, we własnym zakresie (podczas adaptacji). *zwężenie/poszerzenie budynku nie powinno stanowić problemu w przypadku domów o dachu dwuspadowym jeśli wiąże się to z wydłużeniem/skróceniem kalenicy dachu.
Poznaj praktyczne porady ekspertów, które ułatwią Ci każdy etap budowy i od wyboru wymarzonego domu po jego wykończenie. Zyskaj pewność, że podejmujesz najlepsze decyzje dzięki sprawdzonym wskazówkom od specjalistów z planz.pl
Wycena szacunkowa, w kwotach netto, nie zawiera instalacji.
bezpłatnie (0zł)
przelew zwykły / PayNow
przy odbiorze
3-5 dni roboczych (jeśli projekt nie wymaga aktualizacji)
Wybierz wygodny dla Ciebie czas kontaktu z naszym Doradcą Technicznym.