Lungo



1. Korytarz | 3,73 (3,73) m² |
2. Pokój | 10,57 (14,10) m² |
3. Pokój | 12,91 (16,38) m² |
4. Garderoba | 2,20 (3,51) m² |
5. Pokój | 11,89 (15,56) m² |
6. łazienka | 7,13 (9,69) m² |
Wypełnij formularz i otrzymaj rysunki w pdf z dokładnymi wymiarami budynku i pomieszczeń (długość, szerokość, wysokość) dla projektu Lungo 4 modern s2
Pow. użytkowa 110.33 m² |
Ilość pokoi 5 |
Powierzchnia zabudowy 179 m² |
Kondygnacje parterowy+poddasze |
Garaż 2 stanowiska |
Technologia murowany |
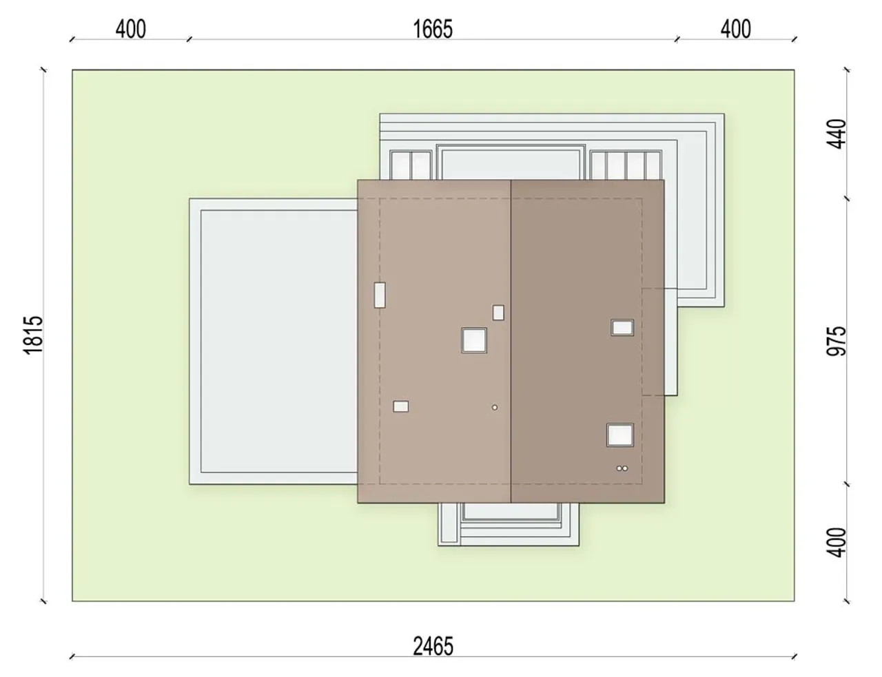
Szerokość działki 24.65 m |
Obiekt dom |
Typ domu jednorodzinny całoroczny |
Kubatura 893.89 m³ |
Rodzaj dachu dwuspadowy |
Powierzchnia dachu 150.89 m² |
Długość działki 18.15 m |
Ogrzewanie gaz, paliwo stałe |
Wysokość budynku 8.34 m |
Liczba łazieniek 2 |
Kalenica prostopadła do drogi |
Styl budynku nowoczesny |
Kominek kominek w projekcie |
Szerokość budynku 16.65 m |
Taras z tarasem |
Kąt nachylenia dachu 40 ° |
Długość budynku 9.75 m |
Piwnica bez podpiwniczenia |
Pow. użytkowa 110.33 m² |
Powierzchnia zabudowy 179 m² |
Garaż 2 stanowiska |
Szerokość działki 24.65 m |
Typ domu jednorodzinny całoroczny |
Rodzaj dachu dwuspadowy |
Długość działki 18.15 m |
Wysokość budynku 8.34 m |
Kalenica prostopadła do drogi |
Kominek kominek w projekcie |
Taras z tarasem |
Długość budynku 9.75 m |
Ilość pokoi 5 |
Kondygnacje parterowy+poddasze |
Technologia murowany |
Obiekt dom |
Kubatura 893.89 m³ |
Powierzchnia dachu 150.89 m² |
Ogrzewanie gaz, paliwo stałe |
Liczba łazieniek 2 |
Styl budynku nowoczesny |
Szerokość budynku 16.65 m |
Kąt nachylenia dachu 40 ° |
Piwnica bez podpiwniczenia |
Odkryj projekt domu Lungo 4 modern s2 i postaw na sprawdzone połączenie nowoczesnej formy, funkcjonalności oraz najnowszych technologii budowlanych. Wybierając tę propozycję, zyskujesz przestrzeń dostosowaną do potrzeb pięcioosobowej rodziny, z wyraźnym rozdziałem na strefę dzienną i prywatną oraz praktycznym garażem na dwa samochody. Elegancki dwuspadowy dach, prosta bryła oraz duży taras tworzą przestrzeń, która podnosi komfort codziennego życia.
Dom wybudowany na podstawie projektu Lungo 4 modern s2 sprawdzi się na każdej nowoczesnej działce. To wyjątkowe rozwiązanie, które podąża za najnowszymi trendami architektonicznymi, gwarantując zarazem trwałość i niskie koszty eksploatacji. Jeśli zależy Ci na ekonomicznych materiałach oraz praktycznych rozwiązaniach grzewczych, ten dom będzie odpowiedzią na Twoje potrzeby.
Lungo 4 modern s2 to przykład domu parterowego z poddaszem, doskonałego dla rodzin ceniących wygodę użytkowania przez cały rok. Dwuspadowy dach o kącie 40° ułatwia skuteczne odprowadzanie wody i śniegu, a prostopadła kalenica usprawnia rozmieszczenie konstrukcji na działce, pozwalając zaaranżować ogród według własnych upodobań.
W standardzie znajdziesz kominek w salonie, który zwiększa walory wnętrza i tworzy przyjemny mikroklimat w chłodniejsze dni. Praktyczny taras przylegający do części dziennej stanie się miejscem wypoczynku, ciesząc domowników przez wiosnę, lato i jesień.
Projekt przewiduje technologię murowaną - ściany nośne i działowe wznosisz na sprawdzonych pustakach ceramicznych. Fundamenty żelbetowe zapewnią stabilność nawet w wymagających warunkach gruntowych. Monolityczny strop i drewniana konstrukcja dachu, z pokryciem z blachy, dachówki ceramicznej lub betonowej, pozwalają uzyskać trwały i wyciszony dom o minimalistycznej sylwetce.
Oszczędność osiągniesz dzięki nowoczesnym rozwiązaniom - wybierz ogrzewanie gazowe lub na paliwo stałe, jak najlepiej dopasowane do Twoich oczekiwań względem rachunków i komfortu cieplnego. Brak podpiwniczenia upraszcza i przyspiesza realizację inwestycji.
Nie zwlekaj - zamów projekt Lungo 4 modern s2 i zyskaj przewagę już na starcie budowy! Sprawdź, jak prosty i szybki może być proces tworzenia własnego, nowoczesnego domu całorocznego.
Kupując projekt w technologii murowanej powinieneś budować dom murowany. Zupełna zmiana technologii na szkieletową wymaga przeprojektowania całego budynku ( zmieniają się obciążenia, fundamenty, konstrukcja dachu). Wydamy zgodę na takie przeprojektowanie jednak wiążę się to z dużymi kosztami. Istnieją firmy wykonawcze, które podejmują się zmiany technologii budowy bezpłatnie przy skorzystaniu z ich usług wykonawczych. Zdarza się, że pracownia architektoniczna przygotowuje warianty konkretnego projektu przewidując także inne technologie. Prosimy o sprawdzenie czy istnieje poszukiwana wersja projektu, w zakładce - warianty projektu.
Zwężenie/poszerzenie budynku* to nic innego jak zmiana w projekcie. Istnieje możliwość wprowadzenia takich zmian, we własnym zakresie (podczas adaptacji). *zwężenie/poszerzenie budynku nie powinno stanowić problemu w przypadku domów o dachu dwuspadowym jeśli wiąże się to z wydłużeniem/skróceniem kalenicy dachu.
Poznaj praktyczne porady ekspertów, które ułatwią Ci każdy etap budowy i od wyboru wymarzonego domu po jego wykończenie. Zyskaj pewność, że podejmujesz najlepsze decyzje dzięki sprawdzonym wskazówkom od specjalistów z planz.pl
bezpłatnie (0zł)
przelew zwykły / PayNow
przy odbiorze
3-5 dni roboczych (jeśli projekt nie wymaga aktualizacji)
Wybierz wygodny dla Ciebie czas kontaktu z naszym Doradcą Technicznym.