TK33



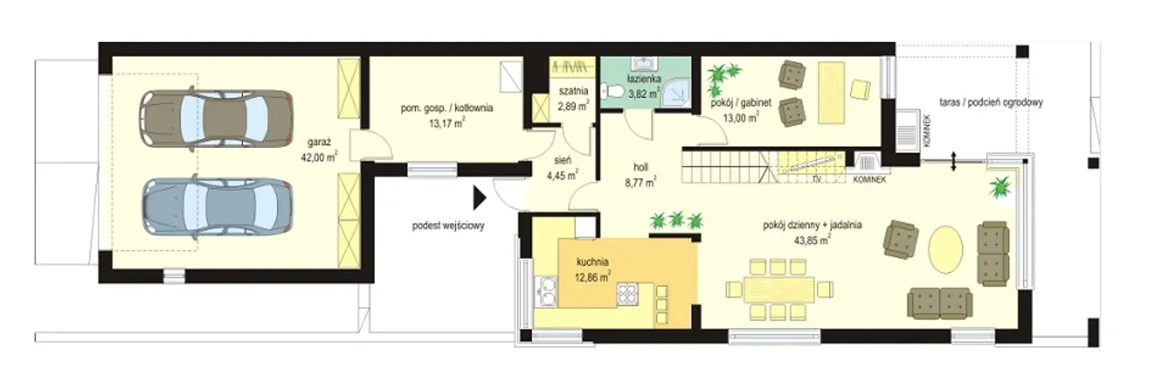
1. Sień | 4,45 m² |
2. Szatnia | 2,89 m² |
3. Holl | 8,77 m² |
4. łazienka | 3,82 m² |
5. Pokój/gabinet | 13,00 m² |
6. Kuchnia | 12,86 m² |
7. Pokój dzienny+jadalnia | 43,85 m² |
8. Pom.gosp./kotłownia | 13,17 m² |
9. Garaż | 42,00 m² |
1. Sypialnia | 15,07 m² |
2. Sypialnia | 17,55 m² |
3. łazienka | 10,21 m² |
4. Holl | 13,17 m² |
5. Garderoba | 8,12 m² |
6. Sypialnia | 16,54 m² |
7. Sypialnia | 12,11 m² |
8. Pralnia/suszarnia | 4,22 m² |
Wypełnij formularz i otrzymaj rysunki w pdf z dokładnymi wymiarami budynku i pomieszczeń (długość, szerokość, wysokość) dla projektu Lugano
Ilość pokoi 6 |
Pow. użytkowa 166.95 m² |
Powierzchnia zabudowy 179.67 m² |
Kondygnacje piętrowy |
Garaż 2 stanowiska |
Technologia murowany |
Szerokość działki 15.8 m |
Obiekt dom |
Typ domu jednorodzinny całoroczny |
Długość działki 35.23 m |
Liczba łazieniek 2 |
Kąt nachylenia dachu 20 ° |
Rodzaj garażu duży garaż |
Kominek kominek w projekcie |
Rodzaj dachu dwuspadowy |
Kotłownia duża kotłownia |
Kubatura 961 m³ |
Taras z tarasem |
Powierzchnia dachu 242.4 m² |
Piwnica bez podpiwniczenia |
Styl budynku tradycyjny |
Wysokość budynku 8.2 m |
Funkcje dodatkowe z pralnią |
Koszty budowy 450-500 tys., tylko z kosztorysem |
Ilość pokoi 6 |
Powierzchnia zabudowy 179.67 m² |
Garaż 2 stanowiska |
Szerokość działki 15.8 m |
Typ domu jednorodzinny całoroczny |
Liczba łazieniek 2 |
Rodzaj garażu duży garaż |
Rodzaj dachu dwuspadowy |
Kubatura 961 m³ |
Powierzchnia dachu 242.4 m² |
Styl budynku tradycyjny |
Funkcje dodatkowe z pralnią |
Pow. użytkowa 166.95 m² |
Kondygnacje piętrowy |
Technologia murowany |
Obiekt dom |
Długość działki 35.23 m |
Kąt nachylenia dachu 20 ° |
Kominek kominek w projekcie |
Kotłownia duża kotłownia |
Taras z tarasem |
Piwnica bez podpiwniczenia |
Wysokość budynku 8.2 m |
Koszty budowy 450-500 tys., tylko z kosztorysem |
Kupując projekt w technologii murowanej powinieneś budować dom murowany. Zupełna zmiana technologii na szkieletową wymaga przeprojektowania całego budynku ( zmieniają się obciążenia, fundamenty, konstrukcja dachu). Wydamy zgodę na takie przeprojektowanie jednak wiążę się to z dużymi kosztami. Istnieją firmy wykonawcze, które podejmują się zmiany technologii budowy bezpłatnie przy skorzystaniu z ich usług wykonawczych. Zdarza się, że pracownia architektoniczna przygotowuje warianty konkretnego projektu przewidując także inne technologie. Prosimy o sprawdzenie czy istnieje poszukiwana wersja projektu, w zakładce - warianty projektu.
Zwężenie/poszerzenie budynku* to nic innego jak zmiana w projekcie. Istnieje możliwość wprowadzenia takich zmian, we własnym zakresie (podczas adaptacji). *zwężenie/poszerzenie budynku nie powinno stanowić problemu w przypadku domów o dachu dwuspadowym jeśli wiąże się to z wydłużeniem/skróceniem kalenicy dachu.
Poznaj praktyczne porady ekspertów, które ułatwią Ci każdy etap budowy i od wyboru wymarzonego domu po jego wykończenie. Zyskaj pewność, że podejmujesz najlepsze decyzje dzięki sprawdzonym wskazówkom od specjalistów z planz.pl
Wycena szacunkowa, w kwotach netto, nie zawiera instalacji.
bezpłatnie (0zł)
przelew zwykły / PayNow
przy odbiorze
3-10 dni roboczych
Wybierz wygodny dla Ciebie czas kontaktu z naszym Doradcą Technicznym.