Logan II



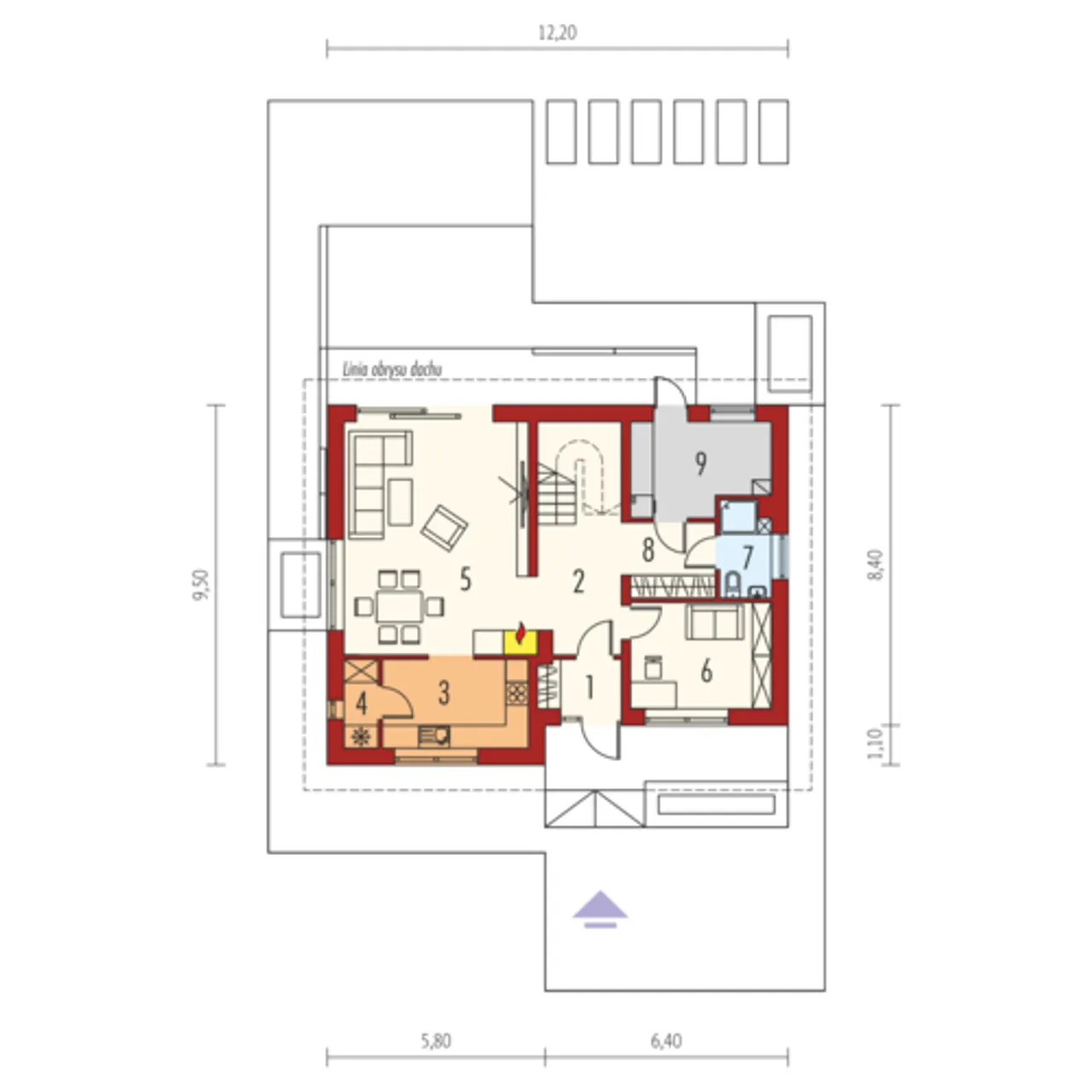
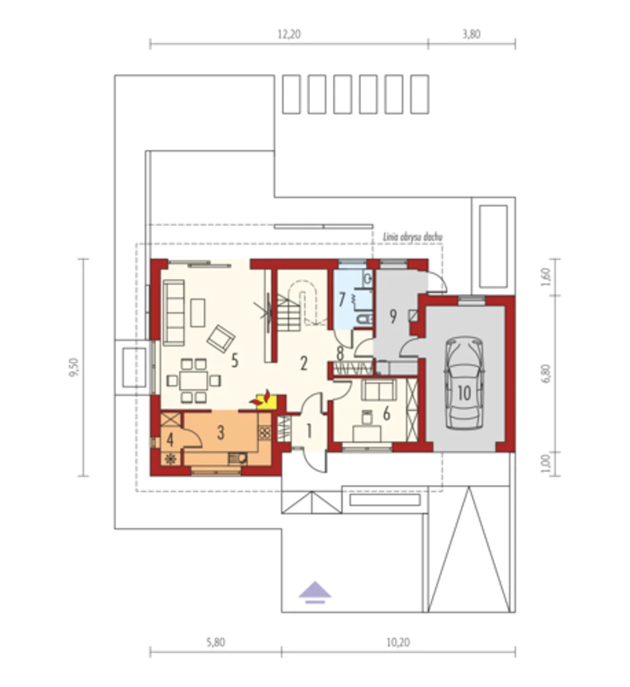
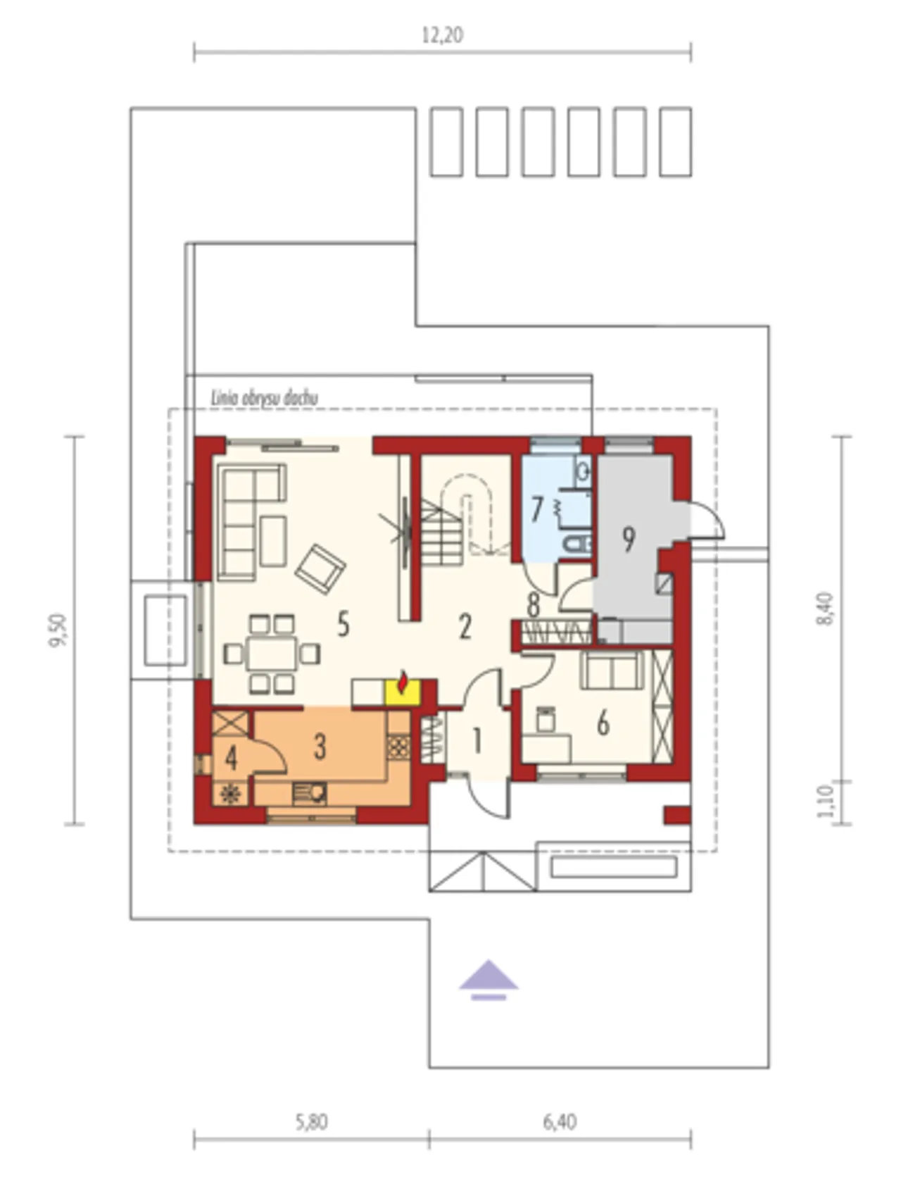
1. Wiatrołap | 2,49 m² |
2. Hol + schody | 13,38 m² |
3. Kuchnia | 9,04 m² |
4. Spiżarnia | 2,04 m² |
5. Pokój dzienny | 30,11 m² |
6. Gabinet | 10,23 m² |
7. łazienka | 4,31 m² |
8. Garderoba | 3,73 m² |
9. Kotłownia | 8,24 m² |
10. Garaż | 20,51 m² |
1. Korytarz | 8,98 m² |
2. Sypialnia | 16,44 m² |
3. Garderoba | 5,67 m² |
4. Sypialnia | 13,67 m² |
5. Sypialnia | 13,82 m² |
6. łazienka | 5,92 m² |
Wypełnij formularz i otrzymaj rysunki w pdf z dokładnymi wymiarami budynku i pomieszczeń (długość, szerokość, wysokość) dla projektu Logan G1
Ilość pokoi 4 |
Pow. użytkowa 139.83 m² |
Powierzchnia zabudowy 135.25 m² |
Kondygnacje parterowy+poddasze |
Garaż 1 stanowisko |
Technologia murowany |
Szerokość działki 23 m |
Obiekt dom |
Typ domu jednorodzinny całoroczny |
Kotłownia duża kotłownia |
Kąt nachylenia dachu 40 ° |
Strop gęstożebrowy |
Szerokość budynku 16 m |
Rodzaj garażu przyklejony |
Taras z tarasem |
Kalenica równoległa do drogi |
Długość budynku 9.5 m |
Rodzaj dachu dwuspadowy |
Piwnica bez podpiwniczenia |
Funkcje dodatkowe z dwoma wejściami |
Kubatura 530.25 m³ |
Przechowywanie w kuchni spiżarnia |
Powierzchnia dachu 178 m² |
Długość działki 17.5 m |
Styl budynku nowoczesny |
Liczba łazieniek 2 |
Wysokość budynku 8.53 m |
Kominek kominek w projekcie |
Koszty budowy 400-450 tys., tylko z kosztorysem |
Ilość pokoi 4 |
Powierzchnia zabudowy 135.25 m² |
Garaż 1 stanowisko |
Szerokość działki 23 m |
Typ domu jednorodzinny całoroczny |
Kąt nachylenia dachu 40 ° |
Szerokość budynku 16 m |
Taras z tarasem |
Długość budynku 9.5 m |
Piwnica bez podpiwniczenia |
Kubatura 530.25 m³ |
Powierzchnia dachu 178 m² |
Styl budynku nowoczesny |
Wysokość budynku 8.53 m |
Koszty budowy 400-450 tys., tylko z kosztorysem |
Pow. użytkowa 139.83 m² |
Kondygnacje parterowy+poddasze |
Technologia murowany |
Obiekt dom |
Kotłownia duża kotłownia |
Strop gęstożebrowy |
Rodzaj garażu przyklejony |
Kalenica równoległa do drogi |
Rodzaj dachu dwuspadowy |
Funkcje dodatkowe z dwoma wejściami |
Przechowywanie w kuchni spiżarnia |
Długość działki 17.5 m |
Liczba łazieniek 2 |
Kominek kominek w projekcie |
Kupując projekt w technologii murowanej powinieneś budować dom murowany. Zupełna zmiana technologii na szkieletową wymaga przeprojektowania całego budynku ( zmieniają się obciążenia, fundamenty, konstrukcja dachu). Wydamy zgodę na takie przeprojektowanie jednak wiążę się to z dużymi kosztami. Istnieją firmy wykonawcze, które podejmują się zmiany technologii budowy bezpłatnie przy skorzystaniu z ich usług wykonawczych. Zdarza się, że pracownia architektoniczna przygotowuje warianty konkretnego projektu przewidując także inne technologie. Prosimy o sprawdzenie czy istnieje poszukiwana wersja projektu, w zakładce - warianty projektu.
Zwężenie/poszerzenie budynku* to nic innego jak zmiana w projekcie. Istnieje możliwość wprowadzenia takich zmian, we własnym zakresie (podczas adaptacji). *zwężenie/poszerzenie budynku nie powinno stanowić problemu w przypadku domów o dachu dwuspadowym jeśli wiąże się to z wydłużeniem/skróceniem kalenicy dachu.
Poznaj praktyczne porady ekspertów, które ułatwią Ci każdy etap budowy i od wyboru wymarzonego domu po jego wykończenie. Zyskaj pewność, że podejmujesz najlepsze decyzje dzięki sprawdzonym wskazówkom od specjalistów z planz.pl
Wycena szacunkowa, w kwotach netto, nie zawiera instalacji.
bezpłatnie (0zł)
przelew zwykły / PayNow
przy odbiorze
3-5 dni roboczych (jeśli projekt nie wymaga aktualizacji)
Wybierz wygodny dla Ciebie czas kontaktu z naszym Doradcą Technicznym.