L-14 z bali



Wypełnij formularz i otrzymaj rysunki w pdf z dokładnymi wymiarami budynku i pomieszczeń (długość, szerokość, wysokość) dla projektu L-309
Pow. użytkowa 112.17 m² |
Ilość pokoi 4 |
Powierzchnia zabudowy 78.57 m² |
Kondygnacje parterowy+poddasze |
Garaż bez garażu |
Technologia z bali |
Szerokość działki 16.1 m |
Obiekt dom |
Typ domu jednorodzinny całoroczny |
Szerokość budynku 8.1 m |
Kominek kominek w projekcie |
Długość budynku 9.7 m |
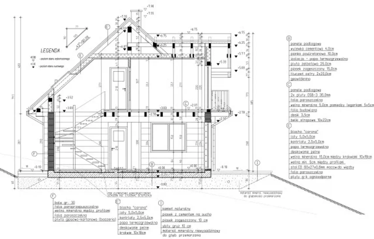
Rodzaj dachu dwuspadowy |
Piwnica bez podpiwniczenia |
Kubatura 413 m³ |
Powierzchnia dachu 173 m² |
Długość działki 17.7 m |
Bryła budynku prosta bryła |
Wysokość budynku 7.91 m |
Kalenica równoległa do drogi |
Styl budynku tradycyjny |
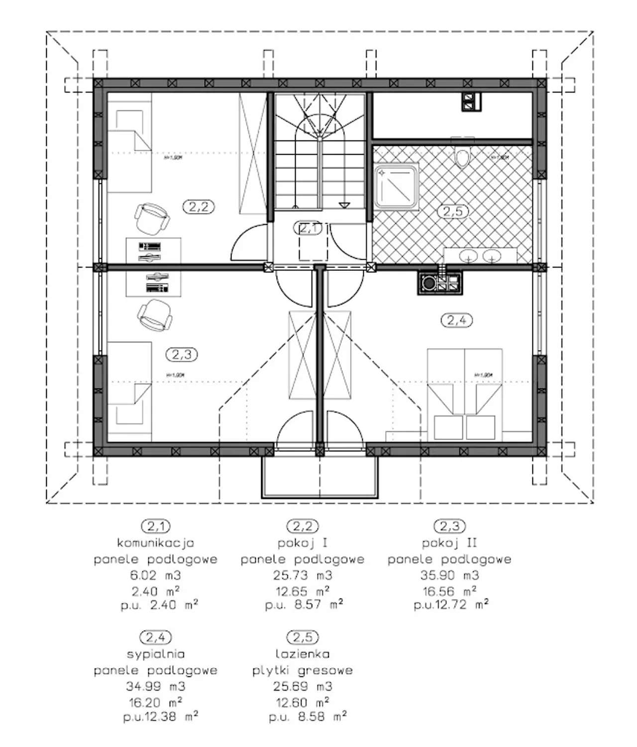
Funkcje dodatkowe z lukarnami |
Liczba łazieniek 1 |
Kąt nachylenia dachu 42 ° |
Koszty budowy tylko z kosztorysem, 250-300 tys. |
Pow. użytkowa 112.17 m² |
Powierzchnia zabudowy 78.57 m² |
Garaż bez garażu |
Szerokość działki 16.1 m |
Typ domu jednorodzinny całoroczny |
Kominek kominek w projekcie |
Rodzaj dachu dwuspadowy |
Kubatura 413 m³ |
Długość działki 17.7 m |
Wysokość budynku 7.91 m |
Styl budynku tradycyjny |
Liczba łazieniek 1 |
Koszty budowy tylko z kosztorysem, 250-300 tys. |
Ilość pokoi 4 |
Kondygnacje parterowy+poddasze |
Technologia z bali |
Obiekt dom |
Szerokość budynku 8.1 m |
Długość budynku 9.7 m |
Piwnica bez podpiwniczenia |
Powierzchnia dachu 173 m² |
Bryła budynku prosta bryła |
Kalenica równoległa do drogi |
Funkcje dodatkowe z lukarnami |
Kąt nachylenia dachu 42 ° |
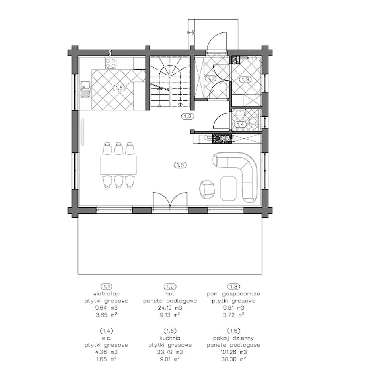
Odkryj projekt domu, który łączy prostą, czytelną formę z funkcjonalnością skrojoną pod codzienne potrzeby rodziny. Ten tradycyjny, całoroczny dom jednorodzinny z bali, z poddaszem użytkowym i bez garażu, przekonuje przemyślanym układem, klasyczną bryłą oraz klimatycznym kominkiem w sercu salonu.
Naturalny charakter drewna, efektowne lukarny oraz szlachetny dwuspadowy dach o kącie 42 stopni tworzą wyjątkową przestrzeń do życia, która inspiruje do spędzania czasu razem i cieszenia się domowym ciepłem przez cały rok.
Projekt domu jednorodzinnego z bali to synonim zdrowego mikroklimatu, ponadczasowego stylu i oszczędności energii. Tradycyjny charakter bryły podkreślają starannie wykonane detale, a zastosowanie naturalnych materiałów gwarantuje wyjątkowe walory estetyczne oraz trwałość na lata.
Dom posiada wygodny rozkład pomieszczeń z czterema jasno wydzielonymi pokojami, które można dowolnie zaadaptować - sypialnia, pokój dla dziecka, gabinet lub przestrzeń do hobby. Dwuspadowy dach o właściwej proporcji pozwala na bezproblemową aranżację poddasza, a praktyczne lukarny doświetlają wnętrza. Kominek w salonie pozwala stworzyć przytulną atmosferę, która sprzyja rodzinnym spotkaniom i odpoczynkowi.
Nie zwlekaj - sięgnij po sprawdzony projekt domu jednorodzinnego z bali i stwórz przestrzeń, do której z przyjemnością będziesz wracać każdego dnia! Zamów projekt już teraz i rozpocznij realizację wymarzonego domu w tradycyjnym stylu z nowoczesną funkcjonalnością.
Kupując projekt w technologii murowanej powinieneś budować dom murowany. Zupełna zmiana technologii na szkieletową wymaga przeprojektowania całego budynku ( zmieniają się obciążenia, fundamenty, konstrukcja dachu). Wydamy zgodę na takie przeprojektowanie jednak wiążę się to z dużymi kosztami. Istnieją firmy wykonawcze, które podejmują się zmiany technologii budowy bezpłatnie przy skorzystaniu z ich usług wykonawczych. Zdarza się, że pracownia architektoniczna przygotowuje warianty konkretnego projektu przewidując także inne technologie. Prosimy o sprawdzenie czy istnieje poszukiwana wersja projektu, w zakładce - warianty projektu.
Zwężenie/poszerzenie budynku* to nic innego jak zmiana w projekcie. Istnieje możliwość wprowadzenia takich zmian, we własnym zakresie (podczas adaptacji). *zwężenie/poszerzenie budynku nie powinno stanowić problemu w przypadku domów o dachu dwuspadowym jeśli wiąże się to z wydłużeniem/skróceniem kalenicy dachu.
Poznaj praktyczne porady ekspertów, które ułatwią Ci każdy etap budowy i od wyboru wymarzonego domu po jego wykończenie. Zyskaj pewność, że podejmujesz najlepsze decyzje dzięki sprawdzonym wskazówkom od specjalistów z planz.pl
Wycena szacunkowa, w kwotach netto, nie zawiera instalacji.
bezpłatnie (0zł)
przelew zwykły / PayNow
przy odbiorze
3-5 dni roboczych (jeśli projekt nie jest koncepcją)
Wybierz wygodny dla Ciebie czas kontaktu z naszym Doradcą Technicznym.