L-209



Wypełnij formularz i otrzymaj rysunki w pdf z dokładnymi wymiarami budynku i pomieszczeń (długość, szerokość, wysokość) dla projektu L-240
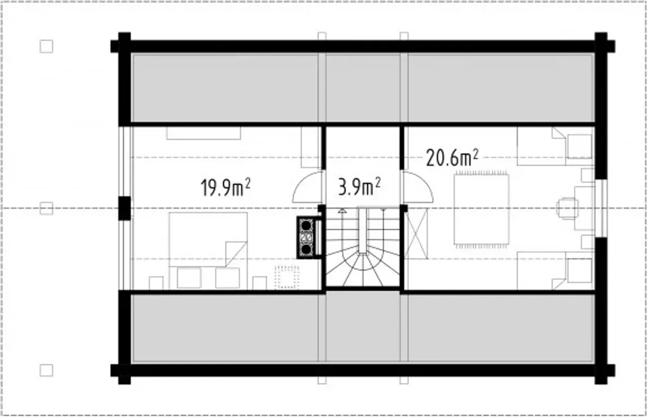
Pow. użytkowa 115.68 m² |
Kondygnacje parterowy+poddasze |
Garaż bez garażu |
Technologia z bali |
Obiekt dom |
Typ domu jednorodzinny całoroczny |
Kubatura 630 m³ |
Kąt nachylenia dachu 30 ° |
Piwnica bez podpiwniczenia |
Pow. użytkowa 115.68 m² |
Garaż bez garażu |
Obiekt dom |
Kubatura 630 m³ |
Piwnica bez podpiwniczenia |
Kondygnacje parterowy+poddasze |
Technologia z bali |
Typ domu jednorodzinny całoroczny |
Kąt nachylenia dachu 30 ° |
Wybierz projekt domu jednorodzinnego z bali i zamieszkaj w miejscu, które łączy tradycję z nowoczesnością. Ten przemyślany dom parterowy z użytkowym poddaszem bez garażu to propozycja dla rodzin i osób, dla których kluczowa jest trwałość, ciepło drewna i możliwość adaptacji przestrzeni do własnych potrzeb. Zaprojektowany w technologii z bali, projekt ten to doskonały wybór dla miłośników zdrowego trybu życia i niepowtarzalnej atmosfery wnętrz.
Dom postawiony według tego projektu wprowadzi do Twojego życia harmonię, spokój oraz kontakt z naturą. Funkcjonalny układ kondygnacji i minimalistyczna bryła sprawiają, że dom świetnie wpasuje się zarówno w krajobraz wiejski, jak i podmiejski.
Projekt domu jednorodzinnego z bali parterowego z użytkowym poddaszem jest przykładem funkcjonalnej architektury powstałej z naturalnych materiałów. Drewno wpływa na wyjątkowy klimat wnętrz oraz korzystnie oddziałuje na samopoczucie domowników. Brak garażu pozwala zaaranżować działkę według własnych upodobań - możesz stworzyć przydomowy warzywnik, strefę zabaw dla dzieci lub miejsce na letnią altanę. Dom jest łatwy w utrzymaniu czystości i bezpieczny zarówno latem, jak i zimą - sprawdzi się w każdych warunkach, nawet podczas srogiej zimy.
Nachylenie dachu wynoszące 30 stopni nie tylko zwiększa walory estetyczne budynku, ale też pozwala efektywnie wykorzystać poddasze - zarówno jako dodatkową przestrzeń mieszkalną, jak i praktyczny strych. Brak podpiwniczenia skraca okres budowy i ogranicza konieczność wykonywania kosztownych, głębokich wykopów, co idealnie sprawdzi się na działkach o niejednorodnej strukturze gruntu.
Zamów projekt domu jednorodzinnego z bali i stwórz miejsce, do którego chce się wracać - postaw na trwałość, design i codzienny kontakt z naturą!
Kupując projekt w technologii murowanej powinieneś budować dom murowany. Zupełna zmiana technologii na szkieletową wymaga przeprojektowania całego budynku ( zmieniają się obciążenia, fundamenty, konstrukcja dachu). Wydamy zgodę na takie przeprojektowanie jednak wiążę się to z dużymi kosztami. Istnieją firmy wykonawcze, które podejmują się zmiany technologii budowy bezpłatnie przy skorzystaniu z ich usług wykonawczych. Zdarza się, że pracownia architektoniczna przygotowuje warianty konkretnego projektu przewidując także inne technologie. Prosimy o sprawdzenie czy istnieje poszukiwana wersja projektu, w zakładce - warianty projektu.
Zwężenie/poszerzenie budynku* to nic innego jak zmiana w projekcie. Istnieje możliwość wprowadzenia takich zmian, we własnym zakresie (podczas adaptacji). *zwężenie/poszerzenie budynku nie powinno stanowić problemu w przypadku domów o dachu dwuspadowym jeśli wiąże się to z wydłużeniem/skróceniem kalenicy dachu.
Poznaj praktyczne porady ekspertów, które ułatwią Ci każdy etap budowy i od wyboru wymarzonego domu po jego wykończenie. Zyskaj pewność, że podejmujesz najlepsze decyzje dzięki sprawdzonym wskazówkom od specjalistów z planz.pl
bezpłatnie (0zł)
przelew zwykły / PayNow
przy odbiorze
3-5 dni roboczych (jeśli projekt nie jest koncepcją)
Wybierz wygodny dla Ciebie czas kontaktu z naszym Doradcą Technicznym.