L-98 z bali



Wypełnij formularz i otrzymaj rysunki w pdf z dokładnymi wymiarami budynku i pomieszczeń (długość, szerokość, wysokość) dla projektu L-130-1
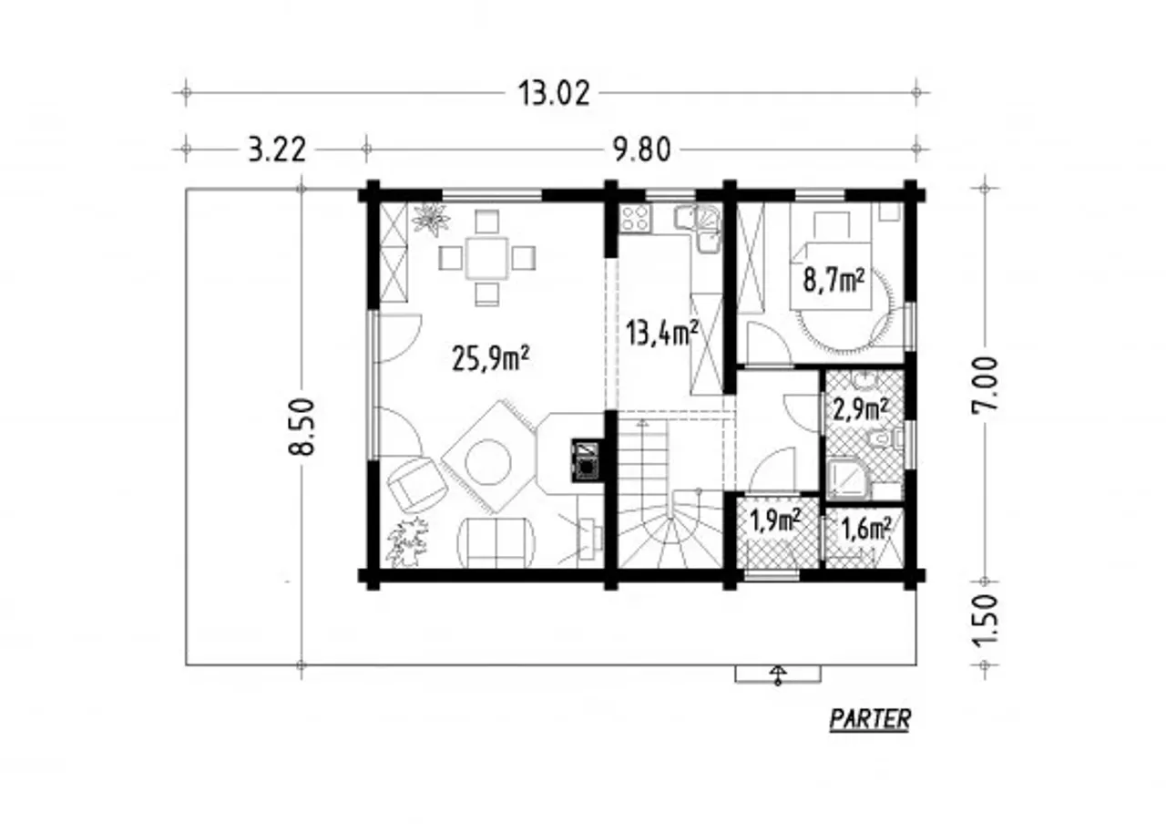
Ilość pokoi 4 |
Pow. użytkowa 80 m² |
Powierzchnia zabudowy 110.7 m² |
Kondygnacje parterowy+poddasze |
Garaż bez garażu |
Technologia z bali |
Szerokość działki 20 m |
Obiekt dom |
Typ domu jednorodzinny całoroczny |
Wysokość budynku 7.69 m |
Kalenica równoległa do drogi |
Długość działki 16 m |
Rodzaj dachu dwuspadowy |
Liczba łazieniek 2 |
Szerokość budynku 9.8 m |
Kominek kominek w projekcie |
Długość budynku 8.5 m |
Piwnica bez podpiwniczenia |
Bryła budynku prosta bryła |
Kubatura 470 m³ |
Strop drewniany |
Styl budynku tradycyjny |
Koszty budowy tylko z kosztorysem, 200-250 tys. |
Ilość pokoi 4 |
Powierzchnia zabudowy 110.7 m² |
Garaż bez garażu |
Szerokość działki 20 m |
Typ domu jednorodzinny całoroczny |
Kalenica równoległa do drogi |
Rodzaj dachu dwuspadowy |
Szerokość budynku 9.8 m |
Długość budynku 8.5 m |
Bryła budynku prosta bryła |
Strop drewniany |
Koszty budowy tylko z kosztorysem, 200-250 tys. |
Pow. użytkowa 80 m² |
Kondygnacje parterowy+poddasze |
Technologia z bali |
Obiekt dom |
Wysokość budynku 7.69 m |
Długość działki 16 m |
Liczba łazieniek 2 |
Kominek kominek w projekcie |
Piwnica bez podpiwniczenia |
Kubatura 470 m³ |
Styl budynku tradycyjny |
Wybierz solidny dom z bali na lata - funkcjonalny dom jednorodzinny z klasyczną bryłą, przestronnym wnętrzem i nastrojowym kominkiem. Zrealizuj marzenie o własnej przestrzeni, gdzie każdy detal sprzyja wygodzie oraz ciepłu domowego ogniska.
Dom z drewna o prostej, zwartej bryle to recepta na praktyczne użytkowanie, oszczędność oraz ponadczasowy wygląd. Zaprojektowany z myślą o rodzinie, zapewnia cztery ustawne pokoje oraz zachwycające wnętrze - idealne do codziennego odpoczynku.
Projekt tego domu jednorodzinnego całorocznego to ukłon w stronę sprawdzonych, klasycznych rozwiązań architektonicznych o ponadczasowym uroku. Prosta bryła nie tylko pozwala na szybszą i bardziej ekonomiczną realizację prac budowlanych, ale także zwiększa efektywność energetyczną budynku. Równolegle usytuowana kalenica i dwuspadowy, stromizny dach świetnie spisują się w każdych warunkach pogodowych, podkreślając tradycyjny styl budowli.
Dom z drewna zapewnia cztery wygodne pokoje, z elastycznym układem kondygnacji: parter oraz poddasze użytkowe. Dzięki odpowiedniemu rozplanowaniu przestrzeni, dom sprzyja codziennej aktywności domowników i pozwala na łatwą organizację zarówno strefy dziennej, jak i prywatnych sypialni. Centralnie usytuowany kominek przyciąga domowników w długie wieczory i staje się naturalnym sercem domowego życia. Drewniany strop uzupełnia wnętrze o przyjemne, naturalne akcenty i wycisza pomieszczenia.
Zainwestuj w projekt domu z bali i ciesz się przyjaznym wnętrzem przez cały rok. Wybierz sprawdzone rozwiązania dla swojej rodziny - zamów projekt i zacznij budowę wymarzonego domu jednorodzinnego już dziś!
Kupując projekt w technologii murowanej powinieneś budować dom murowany. Zupełna zmiana technologii na szkieletową wymaga przeprojektowania całego budynku ( zmieniają się obciążenia, fundamenty, konstrukcja dachu). Wydamy zgodę na takie przeprojektowanie jednak wiążę się to z dużymi kosztami. Istnieją firmy wykonawcze, które podejmują się zmiany technologii budowy bezpłatnie przy skorzystaniu z ich usług wykonawczych. Zdarza się, że pracownia architektoniczna przygotowuje warianty konkretnego projektu przewidując także inne technologie. Prosimy o sprawdzenie czy istnieje poszukiwana wersja projektu, w zakładce - warianty projektu.
Zwężenie/poszerzenie budynku* to nic innego jak zmiana w projekcie. Istnieje możliwość wprowadzenia takich zmian, we własnym zakresie (podczas adaptacji). *zwężenie/poszerzenie budynku nie powinno stanowić problemu w przypadku domów o dachu dwuspadowym jeśli wiąże się to z wydłużeniem/skróceniem kalenicy dachu.
Poznaj praktyczne porady ekspertów, które ułatwią Ci każdy etap budowy i od wyboru wymarzonego domu po jego wykończenie. Zyskaj pewność, że podejmujesz najlepsze decyzje dzięki sprawdzonym wskazówkom od specjalistów z planz.pl
Wycena szacunkowa, w kwotach netto, nie zawiera instalacji.
bezpłatnie (0zł)
przelew zwykły / PayNow
przy odbiorze
3-5 dni roboczych (jeśli projekt nie jest koncepcją)
Wybierz wygodny dla Ciebie czas kontaktu z naszym Doradcą Technicznym.