L-42 z bali



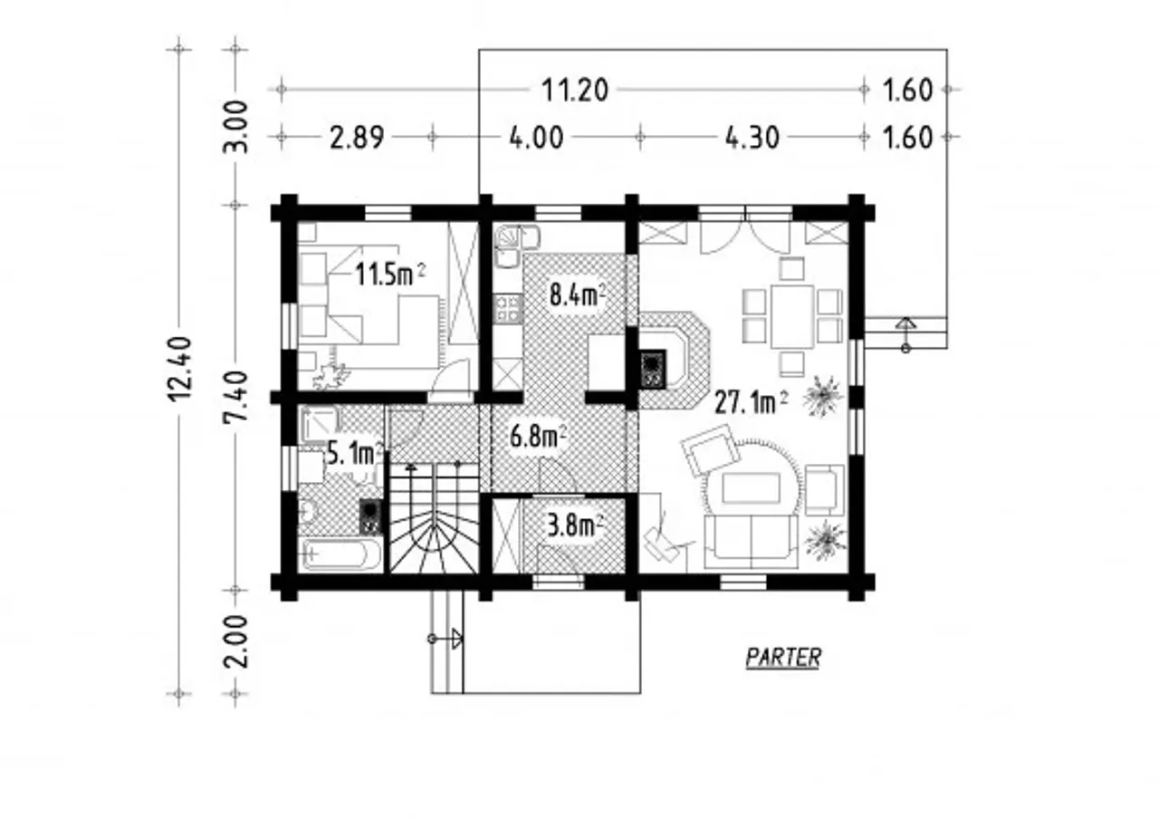
1. Wiatrołap | 3,80 m² |
2. Korytarz | 6,80 m² |
3. łazienka | 5,10 m² |
4. Pokój | 11,50 m² |
5. Kuchnia | 8,40 m² |
6. Pokój dzienny + jadalnia | 27,10 m² |
1. Korytarz + schody | 2,50 m² |
2. Kotłownia | 4,70 m² |
3. Pokój | 11,50 m² |
4. Pokój | 8,40 m² |
5. Korytarz | 3,00 m² |
6. łazienka | 5,10 m² |
7. Garaż | 27,10 m² |
Wypełnij formularz i otrzymaj rysunki w pdf z dokładnymi wymiarami budynku i pomieszczeń (długość, szerokość, wysokość) dla projektu L-126
Pow. użytkowa 104 m² |
Ilość pokoi 7 |
Powierzchnia zabudowy 82.9 m² |
Kondygnacje parterowy+poddasze |
Garaż 1 stanowisko |
Technologia z bali |
Szerokość działki 19.5 m |
Obiekt dom |
Typ domu jednorodzinny całoroczny |
Funkcje dodatkowe z lukarnami |
Rodzaj garażu w piwnicy |
Liczba łazieniek 2 |
Szerokość budynku 11.2 m |
Rodzaj dachu dwuspadowy |
Kominek kominek w projekcie |
Długość budynku 7.4 m |
Piwnica z podpiwniczeniem |
Bryła budynku prosta bryła |
Kubatura 610 m³ |
Styl budynku tradycyjny |
Wysokość budynku 9.44 m |
Kalenica równoległa do drogi |
Długość działki 17 m |
Koszty budowy 400-450 tys., tylko z kosztorysem |
Pow. użytkowa 104 m² |
Powierzchnia zabudowy 82.9 m² |
Garaż 1 stanowisko |
Szerokość działki 19.5 m |
Typ domu jednorodzinny całoroczny |
Rodzaj garażu w piwnicy |
Szerokość budynku 11.2 m |
Kominek kominek w projekcie |
Piwnica z podpiwniczeniem |
Kubatura 610 m³ |
Wysokość budynku 9.44 m |
Długość działki 17 m |
Ilość pokoi 7 |
Kondygnacje parterowy+poddasze |
Technologia z bali |
Obiekt dom |
Funkcje dodatkowe z lukarnami |
Liczba łazieniek 2 |
Rodzaj dachu dwuspadowy |
Długość budynku 7.4 m |
Bryła budynku prosta bryła |
Styl budynku tradycyjny |
Kalenica równoległa do drogi |
Koszty budowy 400-450 tys., tylko z kosztorysem |
Odkryj solidny, całoroczny dom z bali o prostej, funkcjonalnej bryle i dwuspadowym dachu, idealny dla dużej rodziny. Klasyczna architektura, siedem przestronnych pokoi oraz stylowe lukarny tworzą harmonijne połączenie wygody i ponadczasowego wyglądu. Ten projekt domu to rozwiązanie dla osób, które poszukują stylu i wielowymiarowej przestrzeni użytkowej.
Przemyślane rozmieszczenie pomieszczeń, garaż na jedno stanowisko w podpiwniczeniu oraz funkcjonalne poddasze do aranżacji dają możliwości dopasowania domu do indywidualnych oczekiwań i trybu życia. Kominek dodaje wnętrzom przytulności, a tradycyjne balowe ściany budują niepowtarzalny klimat już od progu.
Dom wybudowany według tego projektu jest znakomitą propozycją dla osób, które cenią solidne, naturalne materiały. Drewno z bali to inwestycja w trwałość i szlachetną stylistykę elewacji. Bryła budynku jest zwarta i prosta, przez co zarówno budowa, jak i eksploatacja okazują się ekonomiczne. Dzięki garażowi w piwnicy zyskujesz dodatkową przestrzeń oraz oszczędzasz miejsce na działce.
Siedem pokoi rozplanowanych na dwóch kondygnacjach ułatwia funkcjonalne zagospodarowanie wnętrza nawet dużej rodzinie. Salon z kominkiem stwarza miejsce do relaksu w długie wieczory, a lukarny doświetlają poddasze, dając poczucie przestronności. Dom z dachem dwuspadowym i tradycyjną kalenicą wpisuje się w charakter zarówno podmiejskich, jak i sielskich działek.
Nie zwlekaj - wybierz projekt domu jednorodzinnego z bali, stworzony dla Twojej rodziny. Rozpocznij budowę domu, który zaspokoi wszystkie potrzeby mieszkańców i stanie się Waszą rodzinną bazą przez wiele lat!
Kupując projekt w technologii murowanej powinieneś budować dom murowany. Zupełna zmiana technologii na szkieletową wymaga przeprojektowania całego budynku ( zmieniają się obciążenia, fundamenty, konstrukcja dachu). Wydamy zgodę na takie przeprojektowanie jednak wiążę się to z dużymi kosztami. Istnieją firmy wykonawcze, które podejmują się zmiany technologii budowy bezpłatnie przy skorzystaniu z ich usług wykonawczych. Zdarza się, że pracownia architektoniczna przygotowuje warianty konkretnego projektu przewidując także inne technologie. Prosimy o sprawdzenie czy istnieje poszukiwana wersja projektu, w zakładce - warianty projektu.
Zwężenie/poszerzenie budynku* to nic innego jak zmiana w projekcie. Istnieje możliwość wprowadzenia takich zmian, we własnym zakresie (podczas adaptacji). *zwężenie/poszerzenie budynku nie powinno stanowić problemu w przypadku domów o dachu dwuspadowym jeśli wiąże się to z wydłużeniem/skróceniem kalenicy dachu.
Poznaj praktyczne porady ekspertów, które ułatwią Ci każdy etap budowy i od wyboru wymarzonego domu po jego wykończenie. Zyskaj pewność, że podejmujesz najlepsze decyzje dzięki sprawdzonym wskazówkom od specjalistów z planz.pl
Wycena szacunkowa, w kwotach netto, nie zawiera instalacji.
bezpłatnie (0zł)
przelew zwykły / PayNow
przy odbiorze
3-5 dni roboczych (jeśli projekt nie jest koncepcją)
Wybierz wygodny dla Ciebie czas kontaktu z naszym Doradcą Technicznym.