L-118



Wypełnij formularz i otrzymaj rysunki w pdf z dokładnymi wymiarami budynku i pomieszczeń (długość, szerokość, wysokość) dla projektu L-105
Pow. użytkowa 77 m² |
Powierzchnia zabudowy 75.1 m² |
Kondygnacje parterowy+poddasze |
Garaż bez garażu |
Technologia z bali |
Szerokość działki 12.5 m |
Obiekt dom |
Typ domu jednorodzinny całoroczny |
Wysokość budynku 9.34 m |
Długość działki 18 m |
Kubatura 430 m³ |
Styl budynku tradycyjny |
Powierzchnia dachu 138 m² |
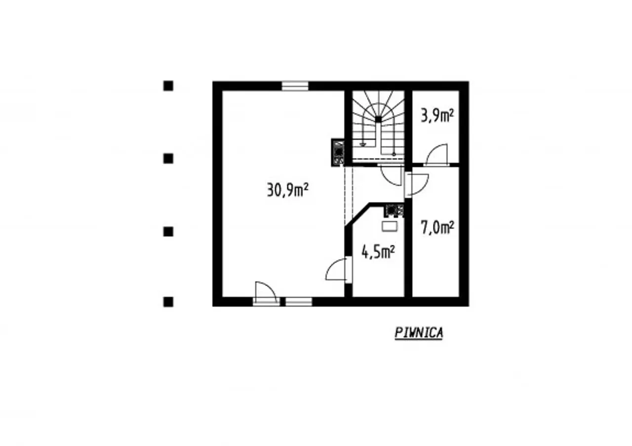
Piwnica z podpiwniczeniem |
Pow. użytkowa 77 m² |
Kondygnacje parterowy+poddasze |
Technologia z bali |
Obiekt dom |
Wysokość budynku 9.34 m |
Kubatura 430 m³ |
Powierzchnia dachu 138 m² |
Powierzchnia zabudowy 75.1 m² |
Garaż bez garażu |
Szerokość działki 12.5 m |
Typ domu jednorodzinny całoroczny |
Długość działki 18 m |
Styl budynku tradycyjny |
Piwnica z podpiwniczeniem |
Szukasz solidnego projektu domu z bali, który sprawdzi się przez cały rok? Projekt domu jednorodzinnego w tradycyjnym stylu z podpiwniczeniem to sprawdzony wybór dla osób ceniących ponadczasową estetykę i wygodę użytkowania. Inwestując w ten projekt, zyskujesz nie tylko niepowtarzalny wygląd i doskonałą funkcjonalność, ale także przestrzeń doskonale dopasowaną do potrzeb współczesnej rodziny.
Dom z bali, bez garażu, z konstrukcją parterową z użytkowym poddaszem oraz z pełnym podpiwniczeniem, fantastycznie wpisuje się w klimat działek pod miastem i terenów zielonych. Sprawdź, jak wiele możesz zyskać, wybierając projekt domu drewnianego, który zachwyca tradycyjną architekturą i praktycznością na co dzień.
Projekt domu jednorodzinnego z bali to ukłon w stronę sprawdzonych, naturalnych technologii. Drewno, dzięki swoim właściwościom, gwarantuje wyjątkowy mikroklimat wnętrz - latem pozwala na przyjemne ochłodzenie, zimą doskonale izoluje przed mrozem. Budynek wyposażony w podpiwniczenie oferuje bogactwo miejsca do przechowywania, co docenisz przy każdej większej rodzinie i miłośnikach aktywności domowych.
Tradycyjny styl architektury nadaje domowi wyjątkowego charakteru, harmonijnie wpisując się zarówno w krajobraz wiejski, jak i podmiejski. Brak garażu pozwala swobodniej zagospodarować parcele według własnych upodobań: na większy ogród, plac zabaw lub strefę rekreacyjną. Dom w tej technologii jest doskonałym wyborem dla rodzin poszukujących domu wolnostojącego, który sprawdzi się o każdej porze roku.
Nie zwlekaj - zamów projekt domu z bali i rozpocznij inwestycję w niezawodne, piękne miejsce do życia. Zrealizuj swoje plany i przekonaj się, jak dobrze można mieszkać w domu z tradycyjną duszą!
Kupując projekt w technologii murowanej powinieneś budować dom murowany. Zupełna zmiana technologii na szkieletową wymaga przeprojektowania całego budynku ( zmieniają się obciążenia, fundamenty, konstrukcja dachu). Wydamy zgodę na takie przeprojektowanie jednak wiążę się to z dużymi kosztami. Istnieją firmy wykonawcze, które podejmują się zmiany technologii budowy bezpłatnie przy skorzystaniu z ich usług wykonawczych. Zdarza się, że pracownia architektoniczna przygotowuje warianty konkretnego projektu przewidując także inne technologie. Prosimy o sprawdzenie czy istnieje poszukiwana wersja projektu, w zakładce - warianty projektu.
Zwężenie/poszerzenie budynku* to nic innego jak zmiana w projekcie. Istnieje możliwość wprowadzenia takich zmian, we własnym zakresie (podczas adaptacji). *zwężenie/poszerzenie budynku nie powinno stanowić problemu w przypadku domów o dachu dwuspadowym jeśli wiąże się to z wydłużeniem/skróceniem kalenicy dachu.
Poznaj praktyczne porady ekspertów, które ułatwią Ci każdy etap budowy i od wyboru wymarzonego domu po jego wykończenie. Zyskaj pewność, że podejmujesz najlepsze decyzje dzięki sprawdzonym wskazówkom od specjalistów z planz.pl
bezpłatnie (0zł)
przelew zwykły / PayNow
przy odbiorze
3-5 dni roboczych (jeśli projekt nie jest koncepcją)
Wybierz wygodny dla Ciebie czas kontaktu z naszym Doradcą Technicznym.