TK31



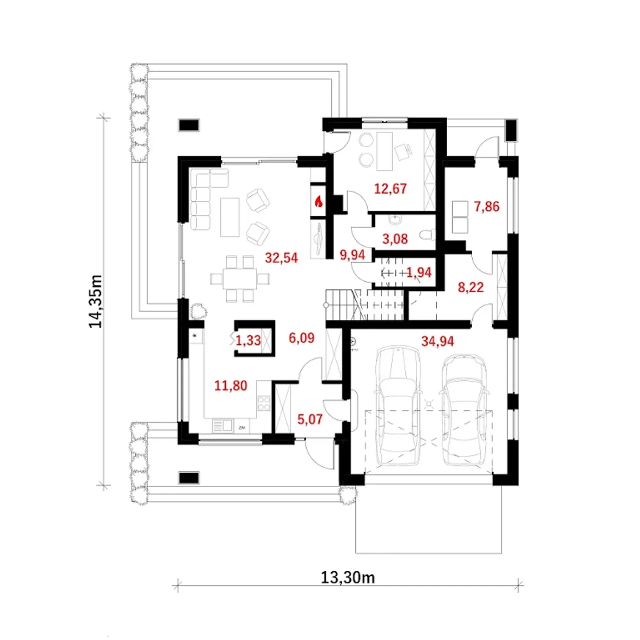
1. Wiatrołap | 5,07 m² |
2. Hol | 6,09 m² |
3. Kuchnia | 11,80 m² |
4. Spiżarnia | 1,33 m² |
5. Salon + jadalnia | 32,54 m² |
6. Korytarz | 9,94 m² |
7. Gabinet | 12,67 m² |
8. Wc | 3,08 m² |
9. Schowek | 1,94 m² |
10. Garaż | 34,94 m² |
11. Pom. gospodarcze | 8,22 m² |
12. Kotłownia | 7,86 m² |
1. Przedpokój | 10,76 m² |
2. Sypialnia | 10,45 m² |
3. łazienka | 9,35 m² |
4. Pralnia | 4,30 m² |
5. Sypialnia | 14,97 m² |
6. Garderoba | 3,26 m² |
7. Sypialnia | 8,97 m² |
8. Garderoba | 5,87 m² |
Wypełnij formularz i otrzymaj rysunki w pdf z dokładnymi wymiarami budynku i pomieszczeń (długość, szerokość, wysokość) dla projektu Kuba
Pow. użytkowa 146.16 m² |
Ilość pokoi 5 |
Powierzchnia zabudowy 190.85 m² |
Kondygnacje parterowy+poddasze |
Garaż 2 stanowiska |
Technologia murowany |
Szerokość działki 21.3 m |
Obiekt dom |
Typ domu jednorodzinny całoroczny |
Wysokość budynku 8.63 m |
Długość działki 22.35 m |
Liczba łazieniek 1 |
Kąt nachylenia dachu 33 ° |
Strop żelbetowy |
Rodzaj garażu w bryle |
Kominek kominek w projekcie |
Kalenica prostopadła do drogi |
Szerokość budynku 13.3 m |
Rodzaj dachu wielospadowy |
Kotłownia duża kotłownia |
Funkcje dodatkowe z pralnią |
Długość budynku 14.35 m |
Przechowywanie w kuchni spiżarnia |
Piwnica bez podpiwniczenia |
Kubatura 1080 m³ |
Styl budynku nowoczesny |
Koszty budowy 400-450 tys., tylko z kosztorysem |
Pow. użytkowa 146.16 m² |
Powierzchnia zabudowy 190.85 m² |
Garaż 2 stanowiska |
Szerokość działki 21.3 m |
Typ domu jednorodzinny całoroczny |
Długość działki 22.35 m |
Kąt nachylenia dachu 33 ° |
Rodzaj garażu w bryle |
Kalenica prostopadła do drogi |
Rodzaj dachu wielospadowy |
Funkcje dodatkowe z pralnią |
Przechowywanie w kuchni spiżarnia |
Kubatura 1080 m³ |
Koszty budowy 400-450 tys., tylko z kosztorysem |
Ilość pokoi 5 |
Kondygnacje parterowy+poddasze |
Technologia murowany |
Obiekt dom |
Wysokość budynku 8.63 m |
Liczba łazieniek 1 |
Strop żelbetowy |
Kominek kominek w projekcie |
Szerokość budynku 13.3 m |
Kotłownia duża kotłownia |
Długość budynku 14.35 m |
Piwnica bez podpiwniczenia |
Styl budynku nowoczesny |
Kupując projekt w technologii murowanej powinieneś budować dom murowany. Zupełna zmiana technologii na szkieletową wymaga przeprojektowania całego budynku ( zmieniają się obciążenia, fundamenty, konstrukcja dachu). Wydamy zgodę na takie przeprojektowanie jednak wiążę się to z dużymi kosztami. Istnieją firmy wykonawcze, które podejmują się zmiany technologii budowy bezpłatnie przy skorzystaniu z ich usług wykonawczych. Zdarza się, że pracownia architektoniczna przygotowuje warianty konkretnego projektu przewidując także inne technologie. Prosimy o sprawdzenie czy istnieje poszukiwana wersja projektu, w zakładce - warianty projektu.
Zwężenie/poszerzenie budynku* to nic innego jak zmiana w projekcie. Istnieje możliwość wprowadzenia takich zmian, we własnym zakresie (podczas adaptacji). *zwężenie/poszerzenie budynku nie powinno stanowić problemu w przypadku domów o dachu dwuspadowym jeśli wiąże się to z wydłużeniem/skróceniem kalenicy dachu.
Poznaj praktyczne porady ekspertów, które ułatwią Ci każdy etap budowy i od wyboru wymarzonego domu po jego wykończenie. Zyskaj pewność, że podejmujesz najlepsze decyzje dzięki sprawdzonym wskazówkom od specjalistów z planz.pl
Wycena szacunkowa, w kwotach netto, nie zawiera instalacji.
bezpłatnie (0zł)
przelew zwykły / PayNow
przy odbiorze
3-5 dni roboczych
Wybierz wygodny dla Ciebie czas kontaktu z naszym Doradcą Technicznym.