HomeKoncept 112



1. Wiatrołap | 6,98 m² |
2. Garderoba | 4,71 m² |
3. Komunikacja | 14,28 (14,83) m² |
4. Kotłownia + pralnia | 11,21 m² |
5. Sypialnia | 13,59 m² |
6. łazienka | 11,30 m² |
7. Sypialnia | 13,59 m² |
8. Sypialnia | 15,37 m² |
9. Garderoba | 4,47 m² |
10. łazienka | 5,48 m² |
11. Salon + jadalnia | 41,98 (42,51) m² |
12. Kuchnia | 14,40 m² |
13. Spiżarnia | 1,56 m² |
14. Garaż | 37,21 m² |
15. Taras naziemny | 98,10 m² |
16. Taras naziemny | 35,24 m² |
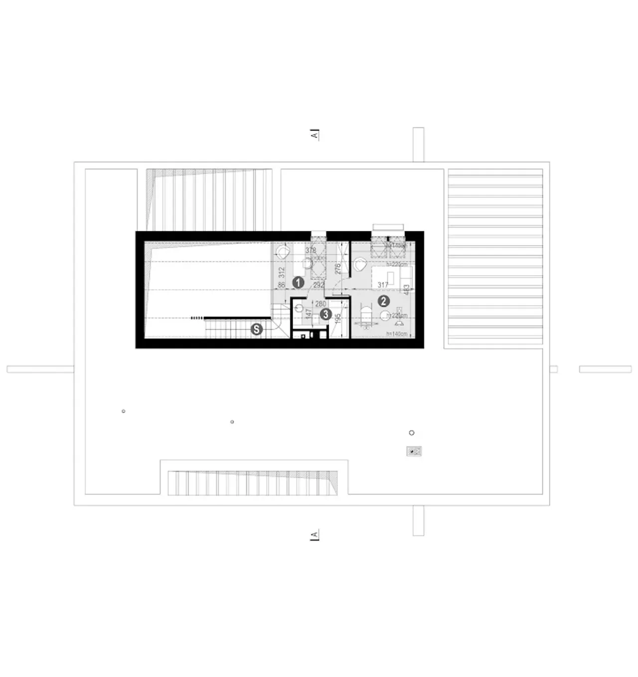
1. Gabinet | 8,89 (10,96) m² |
2. Siłownia | 11,84 (15,31) m² |
3. łazienka | 3,55 (4,57) m² |
4. Schohdy | 4,52 m² |
Wypełnij formularz i otrzymaj rysunki w pdf z dokładnymi wymiarami budynku i pomieszczeń (długość, szerokość, wysokość) dla projektu HomeKoncept 112 G2 wariant 02
Pow. użytkowa 183.2 m² |
Ilość pokoi 5 |
Powierzchnia zabudowy 252.91 m² |
Kondygnacje parterowy+poddasze |
Garaż 2 stanowiska |
Technologia murowany |
Szerokość działki 24.3 m |
Obiekt dom |
Typ domu jednorodzinny całoroczny |
Wysokość budynku 7.37 m |
Styl budynku nowoczesny |
Kalenica prostopadła do drogi |
Liczba łazieniek 3 |
Szerokość budynku 20.31 m |
Kominek kominek w projekcie |
Kąt nachylenia dachu 40 ° |
Długość budynku 31.05 m |
Rodzaj dachu dwuspadowy |
Piwnica bez podpiwniczenia |
Kubatura 1193 m³ |
Powierzchnia dachu 110 m² |
Długość działki 34.05 m |
Koszty budowy 450-500 tys., tylko z kosztorysem |
Pow. użytkowa 183.2 m² |
Powierzchnia zabudowy 252.91 m² |
Garaż 2 stanowiska |
Szerokość działki 24.3 m |
Typ domu jednorodzinny całoroczny |
Styl budynku nowoczesny |
Liczba łazieniek 3 |
Kominek kominek w projekcie |
Długość budynku 31.05 m |
Piwnica bez podpiwniczenia |
Powierzchnia dachu 110 m² |
Koszty budowy 450-500 tys., tylko z kosztorysem |
Ilość pokoi 5 |
Kondygnacje parterowy+poddasze |
Technologia murowany |
Obiekt dom |
Wysokość budynku 7.37 m |
Kalenica prostopadła do drogi |
Szerokość budynku 20.31 m |
Kąt nachylenia dachu 40 ° |
Rodzaj dachu dwuspadowy |
Kubatura 1193 m³ |
Długość działki 34.05 m |
Kupując projekt w technologii murowanej powinieneś budować dom murowany. Zupełna zmiana technologii na szkieletową wymaga przeprojektowania całego budynku ( zmieniają się obciążenia, fundamenty, konstrukcja dachu). Wydamy zgodę na takie przeprojektowanie jednak wiążę się to z dużymi kosztami. Istnieją firmy wykonawcze, które podejmują się zmiany technologii budowy bezpłatnie przy skorzystaniu z ich usług wykonawczych. Zdarza się, że pracownia architektoniczna przygotowuje warianty konkretnego projektu przewidując także inne technologie. Prosimy o sprawdzenie czy istnieje poszukiwana wersja projektu, w zakładce - warianty projektu.
Zwężenie/poszerzenie budynku* to nic innego jak zmiana w projekcie. Istnieje możliwość wprowadzenia takich zmian, we własnym zakresie (podczas adaptacji). *zwężenie/poszerzenie budynku nie powinno stanowić problemu w przypadku domów o dachu dwuspadowym jeśli wiąże się to z wydłużeniem/skróceniem kalenicy dachu.
Poznaj praktyczne porady ekspertów, które ułatwią Ci każdy etap budowy i od wyboru wymarzonego domu po jego wykończenie. Zyskaj pewność, że podejmujesz najlepsze decyzje dzięki sprawdzonym wskazówkom od specjalistów z planz.pl
Wycena szacunkowa, w kwotach netto, nie zawiera instalacji.
bezpłatnie (0zł)
przelew zwykły / PayNow
przy odbiorze
3-5 dni roboczych (jeśli projekt nie jest koncepcją)
Wybierz wygodny dla Ciebie czas kontaktu z naszym Doradcą Technicznym.