Syntia II wersja B



1. Wiatrołap | 6,94 m² |
2. Hol | 10,17 m² |
3. Kuchnia | 13,28 m² |
4. Spiżarnia | 3,21 m² |
5. Salon + jadalnia | 35,11 m² |
6. Schody | 6,21 m² |
7. Pokój | 9,90 m² |
8. łazienka | 4,34 m² |
9. Kotłownia | 12,68 m² |
10. Garaż | 32,86 m² |
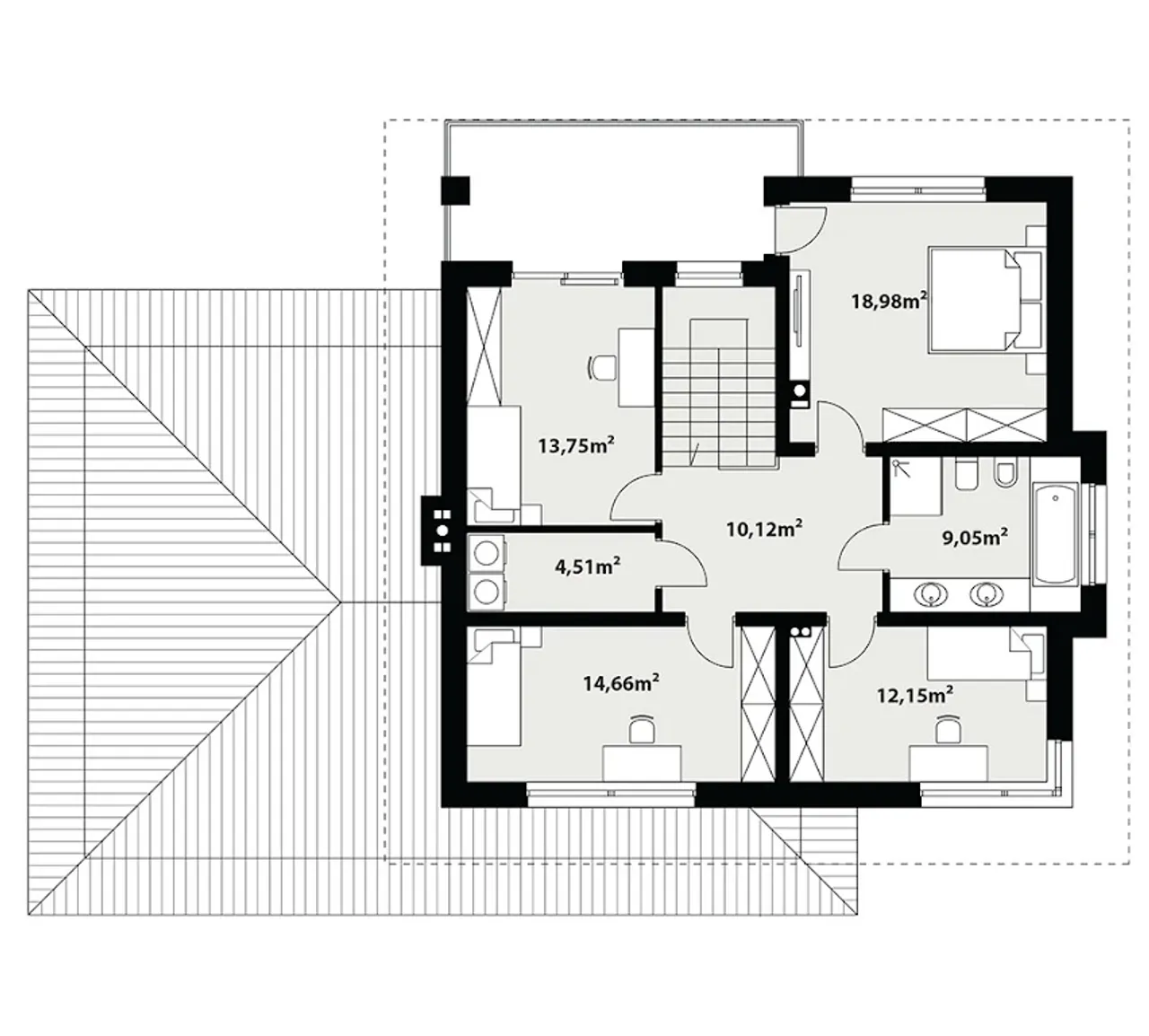
1. Przedpokój | 10,12 m² |
2. Sypialnia | 18,98 m² |
3. łazienka | 9,05 m² |
4. Pokój | 12,15 m² |
5. Pokój | 14,66 m² |
6. Pralnia | 4,51 m² |
7. Pokój | 13,75 m² |
Wypełnij formularz i otrzymaj rysunki w pdf z dokładnymi wymiarami budynku i pomieszczeń (długość, szerokość, wysokość) dla projektu Kleo
Pow. użytkowa 185.06 m² |
Ilość pokoi 6 |
Powierzchnia zabudowy 175.56 m² |
Kondygnacje piętrowy |
Garaż 2 stanowiska |
Technologia murowany |
Szerokość działki 26.05 m |
Obiekt dom |
Typ domu jednorodzinny całoroczny |
Kubatura 1160 m³ |
Rodzaj garażu przyklejony |
Kalenica bez znaczenia |
Powierzchnia dachu 285 m² |
Rodzaj dachu wielospadowy |
Długość działki 21.05 m |
Ogrzewanie gaz, paliwo stałe |
Funkcje dodatkowe z pralnią |
Liczba łazieniek 2 |
Wysokość budynku 8.91 m |
Przechowywanie w kuchni spiżarnia |
Kominek kominek w projekcie |
Styl budynku nowoczesny |
Kotłownia duża kotłownia |
Szerokość budynku 18.05 m |
Taras z tarasem |
Kąt nachylenia dachu 20 ° |
Długość budynku 12.05 m |
Piwnica bez podpiwniczenia |
Strop żelbetowy |
Koszty budowy 450-500 tys., tylko z kosztorysem |
Pow. użytkowa 185.06 m² |
Powierzchnia zabudowy 175.56 m² |
Garaż 2 stanowiska |
Szerokość działki 26.05 m |
Typ domu jednorodzinny całoroczny |
Rodzaj garażu przyklejony |
Powierzchnia dachu 285 m² |
Długość działki 21.05 m |
Funkcje dodatkowe z pralnią |
Wysokość budynku 8.91 m |
Kominek kominek w projekcie |
Kotłownia duża kotłownia |
Taras z tarasem |
Długość budynku 12.05 m |
Strop żelbetowy |
Ilość pokoi 6 |
Kondygnacje piętrowy |
Technologia murowany |
Obiekt dom |
Kubatura 1160 m³ |
Kalenica bez znaczenia |
Rodzaj dachu wielospadowy |
Ogrzewanie gaz, paliwo stałe |
Liczba łazieniek 2 |
Przechowywanie w kuchni spiżarnia |
Styl budynku nowoczesny |
Szerokość budynku 18.05 m |
Kąt nachylenia dachu 20 ° |
Piwnica bez podpiwniczenia |
Koszty budowy 450-500 tys., tylko z kosztorysem |
Kupując projekt w technologii murowanej powinieneś budować dom murowany. Zupełna zmiana technologii na szkieletową wymaga przeprojektowania całego budynku ( zmieniają się obciążenia, fundamenty, konstrukcja dachu). Wydamy zgodę na takie przeprojektowanie jednak wiążę się to z dużymi kosztami. Istnieją firmy wykonawcze, które podejmują się zmiany technologii budowy bezpłatnie przy skorzystaniu z ich usług wykonawczych. Zdarza się, że pracownia architektoniczna przygotowuje warianty konkretnego projektu przewidując także inne technologie. Prosimy o sprawdzenie czy istnieje poszukiwana wersja projektu, w zakładce - warianty projektu.
Zwężenie/poszerzenie budynku* to nic innego jak zmiana w projekcie. Istnieje możliwość wprowadzenia takich zmian, we własnym zakresie (podczas adaptacji). *zwężenie/poszerzenie budynku nie powinno stanowić problemu w przypadku domów o dachu dwuspadowym jeśli wiąże się to z wydłużeniem/skróceniem kalenicy dachu.
Poznaj praktyczne porady ekspertów, które ułatwią Ci każdy etap budowy i od wyboru wymarzonego domu po jego wykończenie. Zyskaj pewność, że podejmujesz najlepsze decyzje dzięki sprawdzonym wskazówkom od specjalistów z planz.pl
Wycena szacunkowa, w kwotach netto, nie zawiera instalacji.
bezpłatnie (0zł)
przelew zwykły / PayNow
przy odbiorze
2-5 dni roboczych (jeśli projekt nie jest koncepcją)
Wybierz wygodny dla Ciebie czas kontaktu z naszym Doradcą Technicznym.