22 299 20 00 (pn-nd 9.30 do 19.30)

Gotowy projekt domu Klara VII z garażem 1-st. A (ID: 34763)

6190 2025-12-15
Klara VII z garażem 1-st. A - 114.7m²
Projekt dostępny od ręki
Gwarantujemy najniższą cenę
6190 zł
W cenie projektu:
📣 GRATIS: WIERTARKA UDAROWA
  • Tablica + dziennik budowy
  • 16 projektów ogrodowych
  • Darmowa wysyłka (kurier, paczkomat, pobranie)
  • 30 dni na zwrot
  • Pozwolenie na zmiany z podpisem i pieczęcią autora
  • GRATIS: Wiertarka Udarowa
22 299 20 00 (pn-nd 9.30 do 19.30)

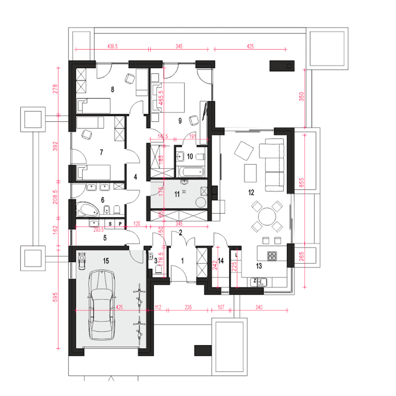
Rzuty gotowego projektu domu Klara VII z garażem 1-st. A

1. Wiatrołap 4,10 m²
2. Holl 8,10 m²
3. Wc 1,90 m²
4. Komunikacja 9,20 m²
5. Pralnia* 4,60 m²
6. łazienka 6,00 m²
7. Sypialnia 11,30 m²
8. Sypialnia 12,00 m²
9. Sypialnia + gardoroba 18,50 m²
10. łazienka 3,10 m²
11. Pom. techniczne z c.o.* 5,90 m²
12. Salon + jadalnia 29,80 m²
13. Kuchnia 8,20 m²
14. Spiżarnia 2,50 m²
15. Garaż* 24,80 m²

Zapoznaj się ze szczegółami projektu - pobierz bezpłatne rysunki do: Klara VII z garażem 1-st. A

Wypełnij formularz i otrzymaj rysunki w pdf z dokładnymi wymiarami budynku i pomieszczeń (długość, szerokość, wysokość) dla projektu Klara VII z garażem 1-st. A

Parametry Techniczne gotowego projektu domu Klara VII z garażem 1-st. A

Pow. użytkowa 114.7 m²
Ilość pokoi 4
Powierzchnia zabudowy 192 m²
Kondygnacje parterowy
Garaż 1 stanowisko
Technologia murowany
Szerokość działki 21.7 m
Obiekt dom
Typ domu jednorodzinny całoroczny
Kąt nachylenia dachu 25 °
Rodzaj dachu płaski
Liczba łazieniek 2
Szerokość budynku 13.7 m
Kominek kominek opcjonalnie
Długość budynku 17.9 m
Kalenica bez znaczenia
Piwnica bez podpiwniczenia
Kubatura 405 m³
Styl budynku nowoczesny
Wysokość budynku 6.4 m
Długość działki 25.9 m

Wnętrza domu Klara VII z garażem 1-st. A

Nasze prawdziwe opinie z Google

Częste pytania

Czy projekty z Planz.pl są kompletne?

Tak. Projekty dostępne na Planz.pl zawierają pełną dokumentację potrzebną do uzyskania pozwolenia na budowę i stanowią gwarancję sprawnej realizacji budowy.

Jesteśmy oficjalnym partnerem ponad 50 pracowni architektonicznych z całej Polski - dlatego każdy projekt pochodzi wyłącznie od autorów zrzeszonych w Izbie Architektów RP. 

Planz.pl to polska firma działającą na rynku od 15 lat. Mamy tysiące zadowolonych klientów, doskonałe opinie i oferujemy wsparcie również po zakupie, doradzamy, pomagamy w adaptacji i pozostajemy w kontakcie na każdym etapie inwestycji.

Dodatkowo do każdego projektu dodajemy tablicę informacyjną, dziennik budowy oraz 16 projektów elektronicznych drewnianej architektury ogrodowej. A dzięki naszej współpracy z producentami sprzętu elektrycznego, oferujemy możliwość otrzymania np. Wiertarki udarowej w formie atrakcyjnego gratisu.

Wybierając Planz.pl, otrzymujesz ten sam oryginalny projekt od autora, wzbogacony o realne dodatki, które ułatwiają rozpoczęcie budowy.

Czy mogę wprowadzić zmiany w projekcie?

Co zrobić gdy wybrany dom nie mieści się na działce?

Jakie zmiany można wprowadzić w projekcie?

Porady ekspertów

Poznaj praktyczne porady ekspertów, które ułatwią Ci każdy etap budowy i od wyboru wymarzonego domu po jego wykończenie. Zyskaj pewność, że podejmujesz najlepsze decyzje dzięki sprawdzonym wskazówkom od specjalistów z planz.pl

Co zawiera projekt

  • ✓ 3 x projekt architektoniczno-budowlany ➞ szczegóły
  • ✓ Projekty techniczne ➞ szczegóły
  • ✓ charakterystyka energetyczna (do projektów domów)
  • ✓ zgoda na zmiany w projekcie ➞ szczegóły
  • ✓ GRATIS: Wiertarka (do projektów w cenie od 3000 zł)
  • ✓ GRATIS: 16 projektów (drewutni, altany i wiaty)
  • ✓ GRATIS: tablica i dziennik budowy
  • ✓ GRATIS: przesyłka kurierska

Dodatki do projektu Klara VII z garażem 1-st. A

Dodatki możesz kupić razem z projektem lub dokupić po czasie

[Planz] Tablica budowlana (0 zł)

[Planz] Dziennik budowy (0 zł)

[Planz] Wiertarka udarowa (0 zł)

[Planz] Zgoda na zmiany w projekcie (0 zł)

[Planz] Projekty architektury ogrodowej (0 zł)

[Planz] Charakterystyka energetyczna, tylko dla domów całorocznych (0 zł)

Wysyłka i płatność za projekt Klara VII z garażem 1-st. A

Koszty wysyłki

bezpłatnie (0zł)

Formy płatności

przelew zwykły / PayNow
przy odbiorze

Czas oczekiwania

3-5 dni roboczych (jeśli projekt nie jest koncepcją)

Wersje gotowego projektu domu Klara VII z garażem 1-st. A

PRACOWNIA: Dom Dla Ciebie Tomasz Pisaniak