Julia II z garażem 1-st. A



1. Wiatrołap | 4,00 m² |
2. Garderoba | 3,90 m² |
3. łazienka | 2,80 m² |
4. Hol | 3,70 m² |
5. Schody | 2,40 m² |
6. Schowek | 0,80 m² |
7. Kuchnia | 7,10 m² |
8. Salon+aneks jadalny | 21,90 m² |
9. Pokój | 9,20 m² |
10. Kotłownia | 6,00 m² |
11. Garaż | 18,10 m² |
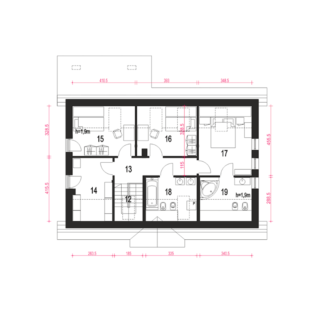
1. Schody | 2,50 (2,50) m² |
2. Przedpokój | 6,70 (6,70) m² |
3. Garderoba (strych) | 7,40 (10,90) m² |
4. Sypialnia | 8,00 (13,40) m² |
5. Sypialnia | 7,50 (12,70) m² |
6. Sypialnia | 10,90 (15,30) m² |
7. łazienka | 5,20 (8,20) m² |
8. łazienka | 5,30 (7,30) m² |
Wypełnij formularz i otrzymaj rysunki w pdf z dokładnymi wymiarami budynku i pomieszczeń (długość, szerokość, wysokość) dla projektu Julia II z garażem 1-st. A1
Pow. użytkowa 101.9 m² |
Ilość pokoi 5 |
Powierzchnia zabudowy 107.8 m² |
Kondygnacje parterowy+poddasze |
Garaż 1 stanowisko |
Technologia murowany |
Szerokość działki 20.8 m |
Obiekt dom |
Typ domu jednorodzinny całoroczny |
Wysokość budynku 7.9 m |
Bryła budynku prosta bryła |
Styl budynku tradycyjny |
Liczba łazieniek 3 |
Strop gęstożebrowy |
Szerokość budynku 12.8 m |
Kominek kominek w projekcie |
Kąt nachylenia dachu 40 ° |
Kalenica równoległa do drogi |
Długość budynku 8.6 m |
Piwnica bez podpiwniczenia |
Funkcje dodatkowe ze strychem |
Kubatura 414 m³ |
Rodzaj garażu w bryle |
Powierzchnia dachu 195.6 m² |
Rodzaj dachu dwuspadowy |
Długość działki 17 m |
Koszty budowy tylko z kosztorysem, 200-250 tys. |
Pow. użytkowa 101.9 m² |
Powierzchnia zabudowy 107.8 m² |
Garaż 1 stanowisko |
Szerokość działki 20.8 m |
Typ domu jednorodzinny całoroczny |
Bryła budynku prosta bryła |
Liczba łazieniek 3 |
Szerokość budynku 12.8 m |
Kąt nachylenia dachu 40 ° |
Długość budynku 8.6 m |
Funkcje dodatkowe ze strychem |
Rodzaj garażu w bryle |
Rodzaj dachu dwuspadowy |
Koszty budowy tylko z kosztorysem, 200-250 tys. |
Ilość pokoi 5 |
Kondygnacje parterowy+poddasze |
Technologia murowany |
Obiekt dom |
Wysokość budynku 7.9 m |
Styl budynku tradycyjny |
Strop gęstożebrowy |
Kominek kominek w projekcie |
Kalenica równoległa do drogi |
Piwnica bez podpiwniczenia |
Kubatura 414 m³ |
Powierzchnia dachu 195.6 m² |
Długość działki 17 m |
Kupując projekt w technologii murowanej powinieneś budować dom murowany. Zupełna zmiana technologii na szkieletową wymaga przeprojektowania całego budynku ( zmieniają się obciążenia, fundamenty, konstrukcja dachu). Wydamy zgodę na takie przeprojektowanie jednak wiążę się to z dużymi kosztami. Istnieją firmy wykonawcze, które podejmują się zmiany technologii budowy bezpłatnie przy skorzystaniu z ich usług wykonawczych. Zdarza się, że pracownia architektoniczna przygotowuje warianty konkretnego projektu przewidując także inne technologie. Prosimy o sprawdzenie czy istnieje poszukiwana wersja projektu, w zakładce - warianty projektu.
Zwężenie/poszerzenie budynku* to nic innego jak zmiana w projekcie. Istnieje możliwość wprowadzenia takich zmian, we własnym zakresie (podczas adaptacji). *zwężenie/poszerzenie budynku nie powinno stanowić problemu w przypadku domów o dachu dwuspadowym jeśli wiąże się to z wydłużeniem/skróceniem kalenicy dachu.
Poznaj praktyczne porady ekspertów, które ułatwią Ci każdy etap budowy i od wyboru wymarzonego domu po jego wykończenie. Zyskaj pewność, że podejmujesz najlepsze decyzje dzięki sprawdzonym wskazówkom od specjalistów z planz.pl
Wycena szacunkowa, w kwotach netto, nie zawiera instalacji.
bezpłatnie (0zł)
przelew zwykły / PayNow
przy odbiorze
3-5 dni roboczych (jeśli projekt nie jest koncepcją)
Wybierz wygodny dla Ciebie czas kontaktu z naszym Doradcą Technicznym.