L-53 murowany



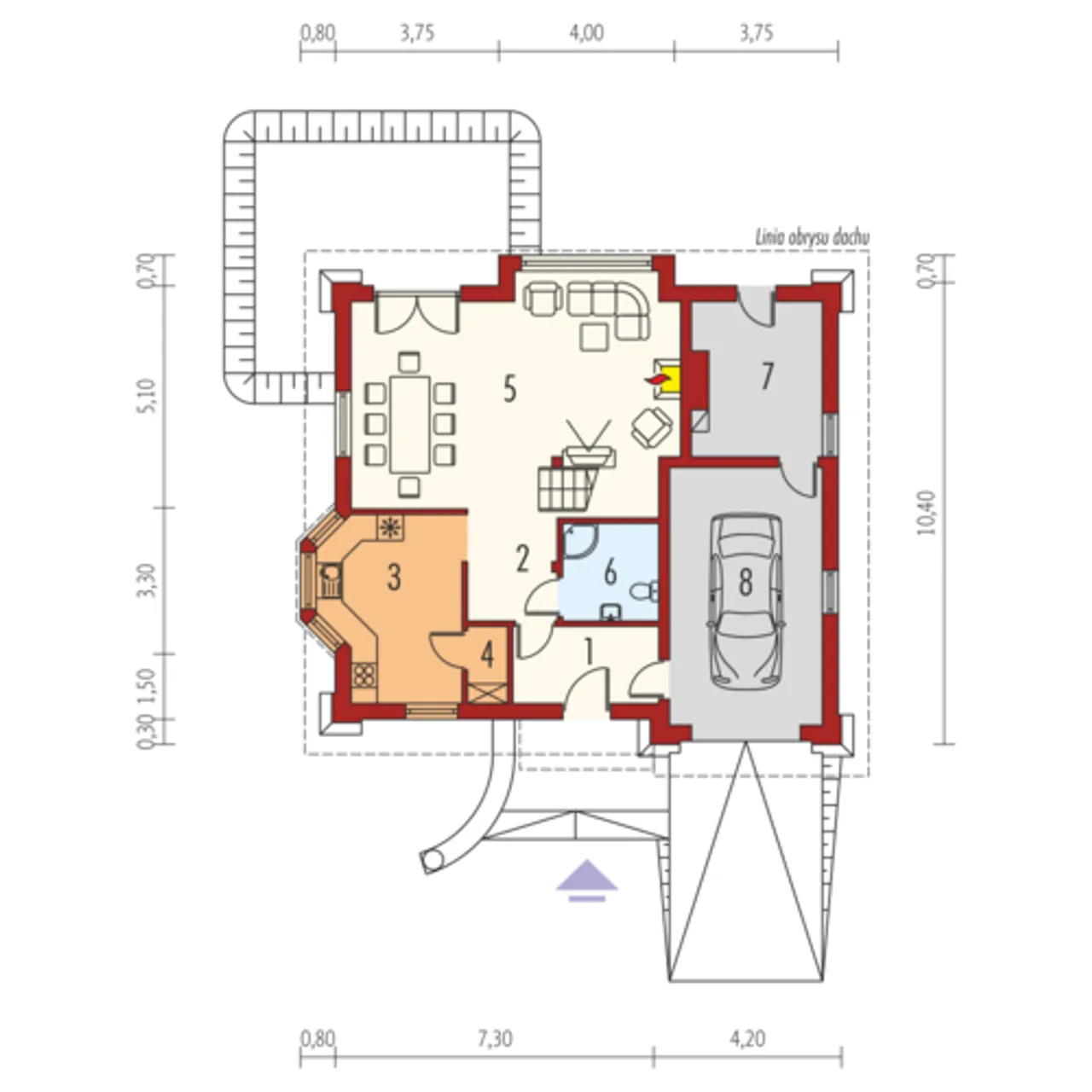
1. Wiatrołap | 5,80 m² |
2. Hol | 7,91 m² |
3. Kuchnia | 12,59 m² |
4. Spiżarnia | 1,57 m² |
5. Pokój dzienny | 34,45 m² |
6. łazienka | 4,85 m² |
7. Pom. gospodarcze | 10,00 m² |
8. Garaż | 19,88 m² |
1. Korytarz | 6,61 m² |
2. Sypialnia | 21,22 m² |
3. Garderoba | 4,70 m² |
4. Pokój | 10,18 m² |
5. Pokój | 13,09 m² |
6. Pokój | 13,09 m² |
7. łazienka | 9,14 m² |
Wypełnij formularz i otrzymaj rysunki w pdf z dokładnymi wymiarami budynku i pomieszczeń (długość, szerokość, wysokość) dla projektu Jolka G1
Ilość pokoi 4 |
Pow. użytkowa 149.03 m² |
Powierzchnia zabudowy 122.15 m² |
Kondygnacje parterowy+poddasze |
Garaż 1 stanowisko |
Technologia murowany |
Szerokość działki 20.3 m |
Obiekt dom |
Typ domu jednorodzinny całoroczny |
Rodzaj dachu dwuspadowy |
Liczba łazieniek 1 |
Kubatura 526.21 m³ |
Przechowywanie w kuchni spiżarnia |
Kominek kominek w projekcie |
Ogrzewanie gaz, paliwo stałe |
Powierzchnia dachu 218 m² |
Piwnica bez podpiwniczenia |
Wysokość budynku 9.72 m |
Styl budynku tradycyjny |
Długość działki 22.4 m |
Kąt nachylenia dachu 45 ° |
Koszty budowy 350-400 tys., tylko z kosztorysem |
Ilość pokoi 4 |
Powierzchnia zabudowy 122.15 m² |
Garaż 1 stanowisko |
Szerokość działki 20.3 m |
Typ domu jednorodzinny całoroczny |
Liczba łazieniek 1 |
Przechowywanie w kuchni spiżarnia |
Ogrzewanie gaz, paliwo stałe |
Piwnica bez podpiwniczenia |
Styl budynku tradycyjny |
Kąt nachylenia dachu 45 ° |
Pow. użytkowa 149.03 m² |
Kondygnacje parterowy+poddasze |
Technologia murowany |
Obiekt dom |
Rodzaj dachu dwuspadowy |
Kubatura 526.21 m³ |
Kominek kominek w projekcie |
Powierzchnia dachu 218 m² |
Wysokość budynku 9.72 m |
Długość działki 22.4 m |
Koszty budowy 350-400 tys., tylko z kosztorysem |
Kupując projekt w technologii murowanej powinieneś budować dom murowany. Zupełna zmiana technologii na szkieletową wymaga przeprojektowania całego budynku ( zmieniają się obciążenia, fundamenty, konstrukcja dachu). Wydamy zgodę na takie przeprojektowanie jednak wiążę się to z dużymi kosztami. Istnieją firmy wykonawcze, które podejmują się zmiany technologii budowy bezpłatnie przy skorzystaniu z ich usług wykonawczych. Zdarza się, że pracownia architektoniczna przygotowuje warianty konkretnego projektu przewidując także inne technologie. Prosimy o sprawdzenie czy istnieje poszukiwana wersja projektu, w zakładce - warianty projektu.
Zwężenie/poszerzenie budynku* to nic innego jak zmiana w projekcie. Istnieje możliwość wprowadzenia takich zmian, we własnym zakresie (podczas adaptacji). *zwężenie/poszerzenie budynku nie powinno stanowić problemu w przypadku domów o dachu dwuspadowym jeśli wiąże się to z wydłużeniem/skróceniem kalenicy dachu.
Poznaj praktyczne porady ekspertów, które ułatwią Ci każdy etap budowy i od wyboru wymarzonego domu po jego wykończenie. Zyskaj pewność, że podejmujesz najlepsze decyzje dzięki sprawdzonym wskazówkom od specjalistów z planz.pl
Wycena szacunkowa, w kwotach netto, nie zawiera instalacji.
bezpłatnie (0zł)
przelew zwykły / PayNow
przy odbiorze
3-5 dni roboczych (jeśli projekt nie wymaga aktualizacji)
Wyjątkowa elegancja w codziennej prostocie! To projekt, który przywraca równowagę między stylem a funkcjonalnością, kładąc nacisk na komfort i harmonię.
Wybierz wygodny dla Ciebie czas kontaktu z naszym Doradcą Technicznym.