Jantar 2 wersja A



Wypełnij formularz i otrzymaj rysunki w pdf z dokładnymi wymiarami budynku i pomieszczeń (długość, szerokość, wysokość) dla projektu Jantar MDM wersja A
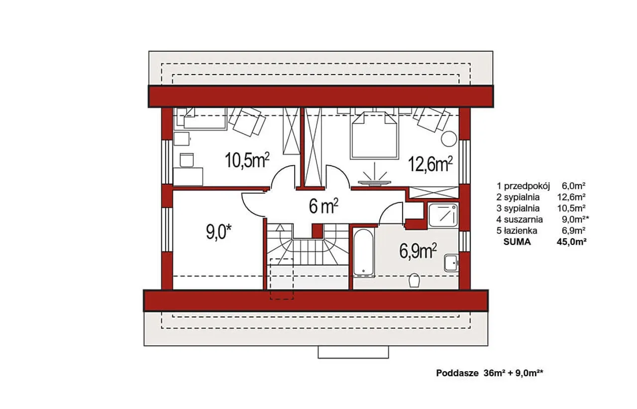
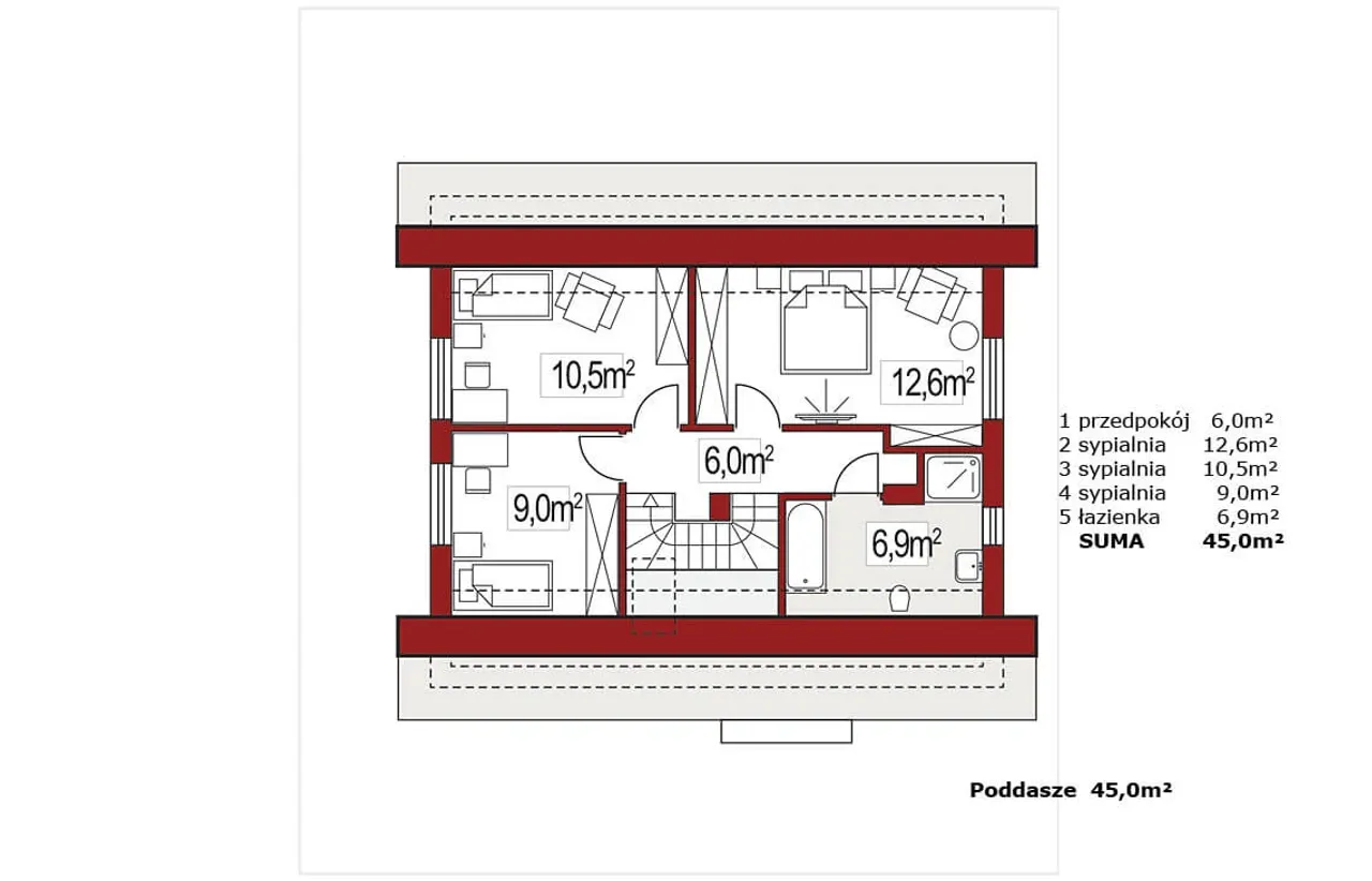
Pow. użytkowa 99.4 m² |
Ilość pokoi 4 |
Powierzchnia zabudowy 94.5 m² |
Kondygnacje parterowy+poddasze |
Garaż bez garażu |
Technologia murowany |
Szerokość działki 18.5 m |
Obiekt dom |
Typ domu jednorodzinny całoroczny |
Kalenica równoległa do drogi |
Styl budynku tradycyjny |
Funkcje dodatkowe z suszarnią |
Liczba łazieniek 2 |
Kąt nachylenia dachu 40 ° |
Szerokość budynku 10.5 m |
Kominek kominek w projekcie |
Długość budynku 9 m |
Rodzaj dachu dwuspadowy |
Piwnica bez podpiwniczenia |
Powierzchnia dachu 149.5 m² |
Wysokość budynku 8.02 m |
Strop gęstożebrowy |
Długość działki 17 m |
Bryła budynku prosta bryła |
Pow. użytkowa 99.4 m² |
Powierzchnia zabudowy 94.5 m² |
Garaż bez garażu |
Szerokość działki 18.5 m |
Typ domu jednorodzinny całoroczny |
Styl budynku tradycyjny |
Liczba łazieniek 2 |
Szerokość budynku 10.5 m |
Długość budynku 9 m |
Piwnica bez podpiwniczenia |
Wysokość budynku 8.02 m |
Długość działki 17 m |
Ilość pokoi 4 |
Kondygnacje parterowy+poddasze |
Technologia murowany |
Obiekt dom |
Kalenica równoległa do drogi |
Funkcje dodatkowe z suszarnią |
Kąt nachylenia dachu 40 ° |
Kominek kominek w projekcie |
Rodzaj dachu dwuspadowy |
Powierzchnia dachu 149.5 m² |
Strop gęstożebrowy |
Bryła budynku prosta bryła |
Kupując projekt w technologii murowanej powinieneś budować dom murowany. Zupełna zmiana technologii na szkieletową wymaga przeprojektowania całego budynku ( zmieniają się obciążenia, fundamenty, konstrukcja dachu). Wydamy zgodę na takie przeprojektowanie jednak wiążę się to z dużymi kosztami. Istnieją firmy wykonawcze, które podejmują się zmiany technologii budowy bezpłatnie przy skorzystaniu z ich usług wykonawczych. Zdarza się, że pracownia architektoniczna przygotowuje warianty konkretnego projektu przewidując także inne technologie. Prosimy o sprawdzenie czy istnieje poszukiwana wersja projektu, w zakładce - warianty projektu.
Zwężenie/poszerzenie budynku* to nic innego jak zmiana w projekcie. Istnieje możliwość wprowadzenia takich zmian, we własnym zakresie (podczas adaptacji). *zwężenie/poszerzenie budynku nie powinno stanowić problemu w przypadku domów o dachu dwuspadowym jeśli wiąże się to z wydłużeniem/skróceniem kalenicy dachu.
Poznaj praktyczne porady ekspertów, które ułatwią Ci każdy etap budowy i od wyboru wymarzonego domu po jego wykończenie. Zyskaj pewność, że podejmujesz najlepsze decyzje dzięki sprawdzonym wskazówkom od specjalistów z planz.pl
bezpłatnie (0zł)
przelew zwykły / PayNow
przy odbiorze
3-5 dni roboczych (jeśli projekt nie jest koncepcją)
Interesujący projekt, wydaje się bardzo nowoczesny i funkcjonalny. Zastanawiam się, jak ten dom wyglądałby w moim otoczeniu.
Wybierz wygodny dla Ciebie czas kontaktu z naszym Doradcą Technicznym.