Irys



Wypełnij formularz i otrzymaj rysunki w pdf z dokładnymi wymiarami budynku i pomieszczeń (długość, szerokość, wysokość) dla projektu Irys 2 mini
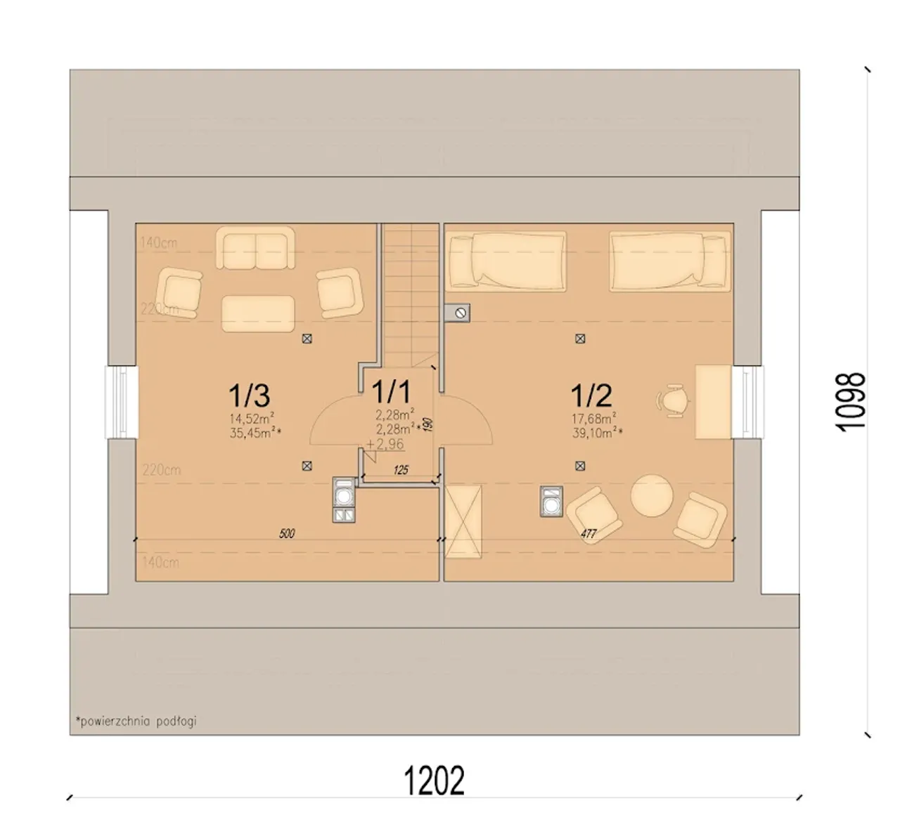
Pow. użytkowa 69.76 m² |
Ilość pokoi 3 |
Powierzchnia zabudowy 100.51 m² |
Kondygnacje parterowy |
Garaż bez garażu |
Technologia murowany |
Szerokość działki 18.75 m |
Obiekt dom |
Typ domu jednorodzinny całoroczny |
Powierzchnia dachu 159 m² |
Długość działki 17.95 m |
Wysokość budynku 7.12 m |
Styl budynku nowoczesny |
Kalenica równoległa do drogi |
Liczba łazieniek 1 |
Szerokość budynku 10.75 m |
Kominek kominek w projekcie |
Kąt nachylenia dachu 35 ° |
Długość budynku 9.35 m |
Rodzaj dachu dwuspadowy |
Piwnica bez podpiwniczenia |
Kubatura 549.33 m³ |
Koszty budowy tylko z kosztorysem, 150-200 tys. |
Pow. użytkowa 69.76 m² |
Powierzchnia zabudowy 100.51 m² |
Garaż bez garażu |
Szerokość działki 18.75 m |
Typ domu jednorodzinny całoroczny |
Długość działki 17.95 m |
Styl budynku nowoczesny |
Liczba łazieniek 1 |
Kominek kominek w projekcie |
Długość budynku 9.35 m |
Piwnica bez podpiwniczenia |
Koszty budowy tylko z kosztorysem, 150-200 tys. |
Ilość pokoi 3 |
Kondygnacje parterowy |
Technologia murowany |
Obiekt dom |
Powierzchnia dachu 159 m² |
Wysokość budynku 7.12 m |
Kalenica równoległa do drogi |
Szerokość budynku 10.75 m |
Kąt nachylenia dachu 35 ° |
Rodzaj dachu dwuspadowy |
Kubatura 549.33 m³ |
Przytulne wnętrza, funkcjonalny układ i solidne materiały - poznaj projekt domu Irys 2 mini! Ten ergonomiczny, parterowy dom jednorodzinny to idealny wybór dla szukających praktycznych rozwiązań połączonych ze współczesnym stylem.
Zaprojektowany z myślą o wygodzie i trwałości, projekt Irys 2 mini doskonale sprawdzi się na działce z kalenicą równoległą do drogi. To rozwiązanie dla rodzin ceniących prostotę, estetykę oraz przemyślany rozkład pomieszczeń.
Projekt Irys 2 mini stworzono z myślą o rodzinie, która ceni wygodę i efektywne wykorzystanie przestrzeni. Trzy przestronne pokoje sprawiają, że każdy z domowników znajdzie własny kąt do wypoczynku lub pracy. Parterowy układ budynku ułatwi codzienne funkcjonowanie oraz zapewni maksymalną dostępność wszystkich pomieszczeń.
Stosując monolityczny strop oraz ściany z pustaków ceramicznych, dom wybudowany na podstawie projektu Irys 2 mini będzie odporny na upływ czasu i zmienne warunki atmosferyczne. Stabilności całej bryle nadają żelbetowe fundamenty, a drewniana konstrukcja dachu w połączeniu z ceramiczną lub betonową dachówką pozwala stworzyć stylowy, tradycyjny wygląd w nowoczesnej odsłonie.
Projekt nie posiada garażu ani podpiwniczenia, przez co maksymalnie wykorzystasz przestrzeń mieszkalną i stworzysz harmonijny ogród. Kominek zaplanowany w salonie doda wnętrzom uroku i stanie się miejscem spotkań w rodzinnej atmosferze.
Nie zwlekaj - wybierz projekt Irys 2 mini i rozpocznij budowę wymarzonego domu. Zamów już dziś i przekonaj się, jak łatwo stworzyć ciepłe, nowoczesne wnętrze dla swojej rodziny.
Kupując projekt w technologii murowanej powinieneś budować dom murowany. Zupełna zmiana technologii na szkieletową wymaga przeprojektowania całego budynku ( zmieniają się obciążenia, fundamenty, konstrukcja dachu). Wydamy zgodę na takie przeprojektowanie jednak wiążę się to z dużymi kosztami. Istnieją firmy wykonawcze, które podejmują się zmiany technologii budowy bezpłatnie przy skorzystaniu z ich usług wykonawczych. Zdarza się, że pracownia architektoniczna przygotowuje warianty konkretnego projektu przewidując także inne technologie. Prosimy o sprawdzenie czy istnieje poszukiwana wersja projektu, w zakładce - warianty projektu.
Zwężenie/poszerzenie budynku* to nic innego jak zmiana w projekcie. Istnieje możliwość wprowadzenia takich zmian, we własnym zakresie (podczas adaptacji). *zwężenie/poszerzenie budynku nie powinno stanowić problemu w przypadku domów o dachu dwuspadowym jeśli wiąże się to z wydłużeniem/skróceniem kalenicy dachu.
Poznaj praktyczne porady ekspertów, które ułatwią Ci każdy etap budowy i od wyboru wymarzonego domu po jego wykończenie. Zyskaj pewność, że podejmujesz najlepsze decyzje dzięki sprawdzonym wskazówkom od specjalistów z planz.pl
Wycena szacunkowa, w kwotach netto, nie zawiera instalacji.
bezpłatnie (0zł)
przelew zwykły / PayNow
przy odbiorze
3-5 dni roboczych (jeśli projekt nie wymaga aktualizacji)
Projekt domu Irys 2 mini to interesująca opcja dla osób poszukujących praktycznego i funkcjonalnego rozwiązania. Jego nowoczesna bryła łączy estetykę z efektywnością, dzięki czemu może wpasować się w różnorodne otoczenia. Wyraźnie zdefiniowane przestrzenie wewnętrzne zapewniają czytelny podział na strefy dzienne i nocne. Układ wnętrz promuje wygodę codziennego życia, co jest istotne dla rodzin. Ponadto, zastosowanie dużych okien sprzyja naturalnemu doświetleniu wnętrz, co wpływa na przyjazną atmosferę domu.
Wybierz wygodny dla Ciebie czas kontaktu z naszym Doradcą Technicznym.