Irys



Wypełnij formularz i otrzymaj rysunki w pdf z dokładnymi wymiarami budynku i pomieszczeń (długość, szerokość, wysokość) dla projektu Irys 2 mini 2
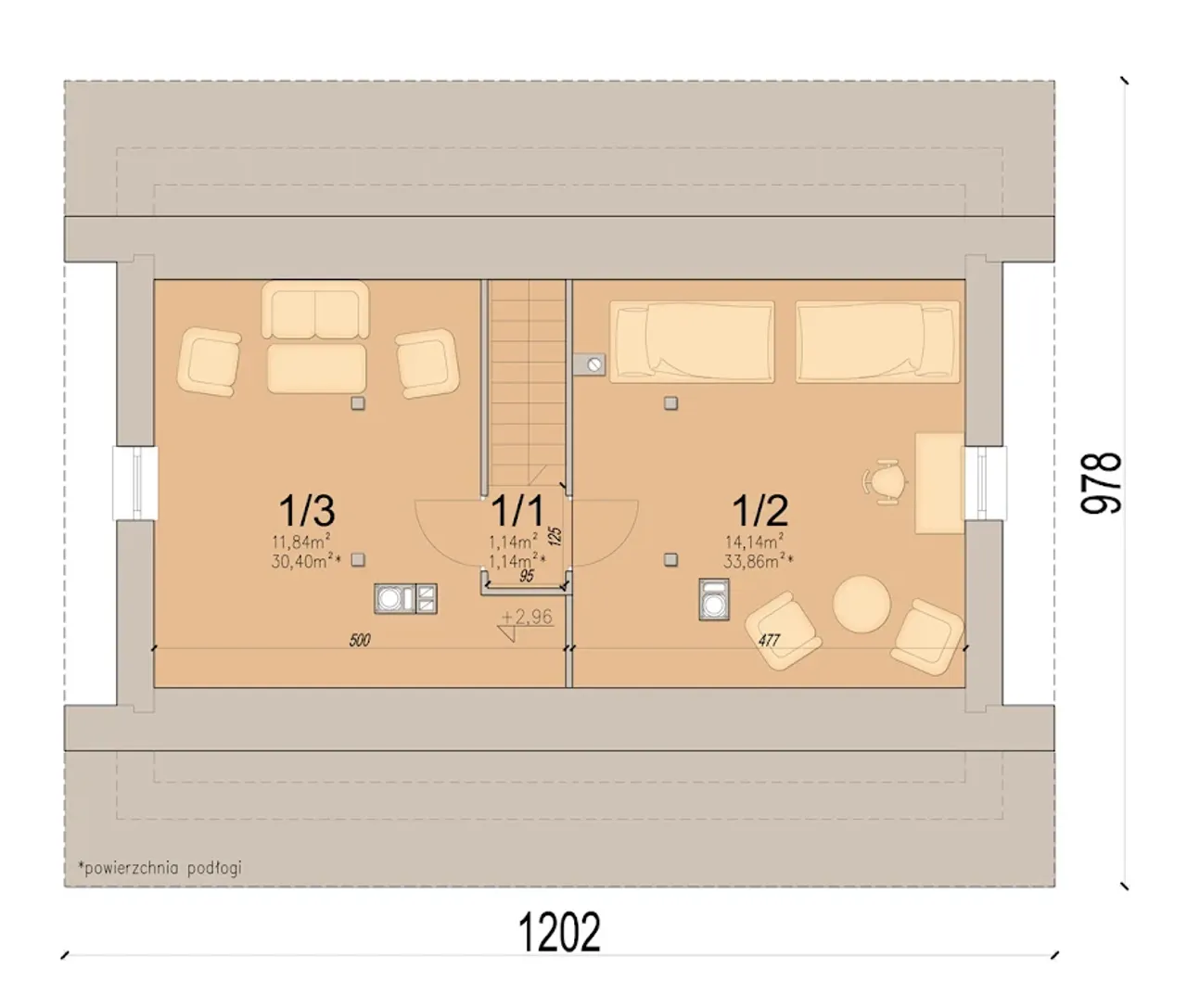
Pow. użytkowa 59.38 m² |
Ilość pokoi 3 |
Powierzchnia zabudowy 87.63 m² |
Kondygnacje parterowy |
Garaż bez garażu |
Technologia murowany |
Szerokość działki 18.75 m |
Obiekt dom |
Typ domu jednorodzinny całoroczny |
Wysokość budynku 6.95 m |
Styl budynku nowoczesny |
Kalenica równoległa do drogi |
Liczba łazieniek 1 |
Szerokość budynku 10.75 m |
Kominek kominek w projekcie |
Kąt nachylenia dachu 35 ° |
Długość budynku 8.15 m |
Rodzaj dachu dwuspadowy |
Piwnica bez podpiwniczenia |
Kubatura 482.46 m³ |
Powierzchnia dachu 140 m² |
Długość działki 16.75 m |
Koszty budowy tylko z kosztorysem, 150-200 tys. |
Pow. użytkowa 59.38 m² |
Powierzchnia zabudowy 87.63 m² |
Garaż bez garażu |
Szerokość działki 18.75 m |
Typ domu jednorodzinny całoroczny |
Styl budynku nowoczesny |
Liczba łazieniek 1 |
Kominek kominek w projekcie |
Długość budynku 8.15 m |
Piwnica bez podpiwniczenia |
Powierzchnia dachu 140 m² |
Koszty budowy tylko z kosztorysem, 150-200 tys. |
Ilość pokoi 3 |
Kondygnacje parterowy |
Technologia murowany |
Obiekt dom |
Wysokość budynku 6.95 m |
Kalenica równoległa do drogi |
Szerokość budynku 10.75 m |
Kąt nachylenia dachu 35 ° |
Rodzaj dachu dwuspadowy |
Kubatura 482.46 m³ |
Długość działki 16.75 m |
Irys 2 mini 2 to projekt domu dla osób ceniących wygodę, nowoczesność oraz praktyczne rozwiązania. Zoptymalizowany układ pomieszczeń, przemyślana bryła oraz solidna, murowana konstrukcja sprawiają, że ten dom spełni oczekiwania nawet najbardziej wymagających rodzin. Parterowy charakter, brak garażu i klasyczny dwuspadowy dach doskonale wpisują się w potrzeby rodzin szukających efektywnych rozwiązań na całoroczną inwestycję.
Projekt Irys 2 mini 2 przeznaczony jest dla osób, które cenią wygodę parteru oraz możliwość korzystania z kominka w sercu domu. Prosta forma i użycie sprawdzonych materiałów przekładają się na solidność oraz bezpieczeństwo na lata.
Dom jednorodzinny Irys 2 mini 2 to propozycja na działki o różnych szerokościach, dzięki kalenicy równoległej do drogi. Fundamenty żelbetowe podnoszą bezpieczeństwo konstrukcyjne. Wnętrza są jasne i ustawne, a brak podpiwniczenia skraca czas realizacji inwestycji. Drewniana konstrukcja dwuspadowego dachu, pokryta dachówką ceramiczną lub betonową, charakteryzuje się nie tylko wytrzymałością, ale i atrakcyjnością wizualną.
Strop monolityczny zapewnia stabilność i ciszę między pomieszczeniami, a technologia murowana wpływa na energooszczędność oraz komfort cieplny przez wszystkie sezony. Projekt łatwo dopasować do indywidualnych potrzeb oraz wymogów działki, a zastosowanie neutralnych rozwiązań architektonicznych pozwala na szerokie możliwości aranżacyjne. Dom wybudowany na podstawie projektu Irys 2 mini 2 będzie wygodnym, kameralnym azylem dla czteroosobowej rodziny, ceniącej praktyczność oraz bezpieczeństwo.
Nie zwlekaj, zamów projekt Irys 2 mini 2 już dziś i zyskaj bezpieczny, przytulny dom murowany na pokolenia!
Kupując projekt w technologii murowanej powinieneś budować dom murowany. Zupełna zmiana technologii na szkieletową wymaga przeprojektowania całego budynku ( zmieniają się obciążenia, fundamenty, konstrukcja dachu). Wydamy zgodę na takie przeprojektowanie jednak wiążę się to z dużymi kosztami. Istnieją firmy wykonawcze, które podejmują się zmiany technologii budowy bezpłatnie przy skorzystaniu z ich usług wykonawczych. Zdarza się, że pracownia architektoniczna przygotowuje warianty konkretnego projektu przewidując także inne technologie. Prosimy o sprawdzenie czy istnieje poszukiwana wersja projektu, w zakładce - warianty projektu.
Zwężenie/poszerzenie budynku* to nic innego jak zmiana w projekcie. Istnieje możliwość wprowadzenia takich zmian, we własnym zakresie (podczas adaptacji). *zwężenie/poszerzenie budynku nie powinno stanowić problemu w przypadku domów o dachu dwuspadowym jeśli wiąże się to z wydłużeniem/skróceniem kalenicy dachu.
Poznaj praktyczne porady ekspertów, które ułatwią Ci każdy etap budowy i od wyboru wymarzonego domu po jego wykończenie. Zyskaj pewność, że podejmujesz najlepsze decyzje dzięki sprawdzonym wskazówkom od specjalistów z planz.pl
Wycena szacunkowa, w kwotach netto, nie zawiera instalacji.
bezpłatnie (0zł)
przelew zwykły / PayNow
przy odbiorze
3-5 dni roboczych (jeśli projekt nie wymaga aktualizacji)
Wybierz wygodny dla Ciebie czas kontaktu z naszym Doradcą Technicznym.