22 299 20 00 (pn-nd 9.30 do 19.30)

Gotowy projekt budynku GP 25.38 (ID: 32453)

492 2025-12-23
GP 25.38 - 25.38m²
Projekt dostępny od ręki
Gwarantujemy najniższą cenę
492 zł
W cenie projektu:
  • Tablica + dziennik budowy
  • 16 projektów ogrodowych
  • Darmowa wysyłka (kurier, paczkomat, pobranie)
  • 30 dni na zwrot
  • Pozwolenie na zmiany z podpisem i pieczęcią autora
22 299 20 00 (pn-nd 9.30 do 19.30)

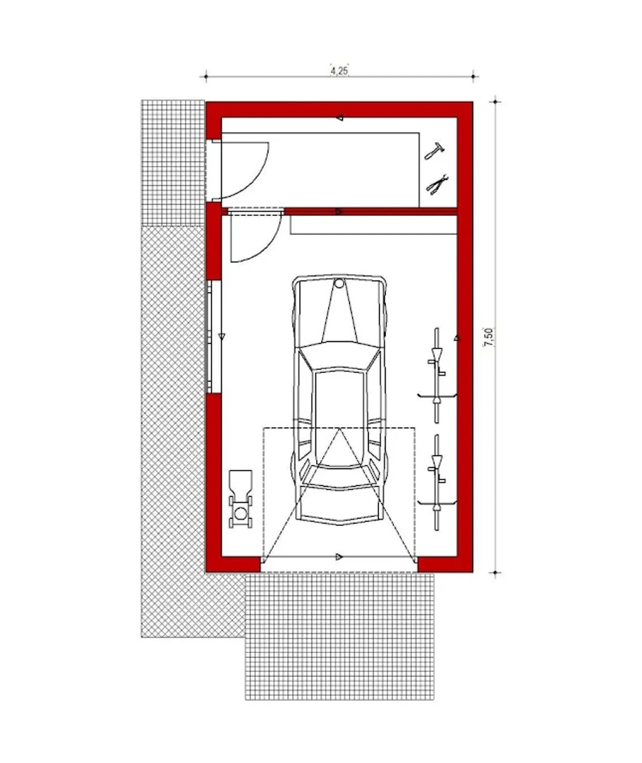
Rzuty gotowego projektu budynku GP 25.38

Zapoznaj się ze szczegółami projektu - pobierz bezpłatne rysunki do: GP 25.38

Wypełnij formularz i otrzymaj rysunki w pdf z dokładnymi wymiarami budynku i pomieszczeń (długość, szerokość, wysokość) dla projektu GP 25.38

Parametry Techniczne gotowego projektu domu GP 25.38

Pow. użytkowa 25.38 m²
Powierzchnia zabudowy 32.23 m²
Kondygnacje parterowy
Garaż 1 stanowisko
Technologia murowany
Obiekt inny
Rodzaj dachu dwuspadowy
Obiekt inny (szczegóły) garaże
Kąt nachylenia dachu 42 °
Szerokość budynku 4.25 m
Długość budynku 7.5 m
Kalenica prostopadła do drogi
Kubatura 119.93 m³
Przestrzeń z pom. gospodarczym
Wysokość budynku 4.55 m
Wysokość pomieszczeń 2.5 m

Nasze prawdziwe opinie z Google

Dodatki do projektu GP 25.38

Dodatki możesz kupić razem z projektem lub dokupić po czasie

[Planz] Tablica budowlana (0 zł)

[Planz] Dziennik budowy (0 zł)

[Planz] Wiertarka udarowa (0 zł)

[Planz] Zgoda na zmiany w projekcie (0 zł)

[Planz] Projekty architektury ogrodowej (0 zł)

[Planz] Charakterystyka energetyczna, tylko dla domów całorocznych (0 zł)

Wysyłka i płatność za projekt GP 25.38

Koszty wysyłki

bezpłatnie (0zł)

Formy płatności

przelew zwykły / PayNow
przy odbiorze

Czas oczekiwania

3-5 dni roboczych (jeśli projekt nie wymaga aktualizacji)

Podobne projekty do budynku GP 25.38

PRACOWNIA: Domek