Gotowy projekt budynku G191 - Budynek rekreacyjny z sauną (ID: 34956)
Projekt dostępny od ręki
Gwarantujemy najniższą cenę
- Tablica + dziennik budowy
- 16 projektów ogrodowych
- Darmowa wysyłka (kurier, paczkomat, pobranie)
- 30 dni na zwrot
- Pozwolenie na zmiany z podpisem i pieczęcią autora
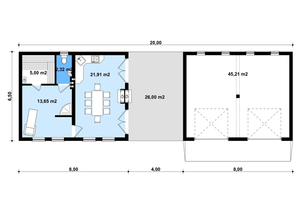
Rzuty gotowego projektu budynku G191 - Budynek rekreacyjny z sauną
Zapoznaj się ze szczegółami projektu - pobierz bezpłatne rysunki do: G191 - Budynek rekreacyjny z sauną
Wypełnij formularz i otrzymaj rysunki w pdf z dokładnymi wymiarami budynku i pomieszczeń (długość, szerokość, wysokość) dla projektu G191 - Budynek rekreacyjny z sauną
Parametry Techniczne gotowego projektu domu G191 - Budynek rekreacyjny z sauną
| Pow. użytkowa 42.16 m² |
| Powierzchnia zabudowy 104 m² |
| Kondygnacje parterowy |
| Technologia murowany |
| Obiekt inny |
| Kąt nachylenia dachu 3 ° |
| Rodzaj dachu płaski |
| Kubatura 424 m³ |
| Obiekt inny (szczegóły) budynki gospodarcze i rekreacyjne |
| Pow. użytkowa 42.16 m² |
| Kondygnacje parterowy |
| Obiekt inny |
| Rodzaj dachu płaski |
| Obiekt inny (szczegóły) budynki gospodarcze i rekreacyjne |
| Powierzchnia zabudowy 104 m² |
| Technologia murowany |
| Kąt nachylenia dachu 3 ° |
| Kubatura 424 m³ |
Nasze prawdziwe opinie z Google
Częste pytania
Czy projekty z Planz.pl są kompletne?
Tak. Projekty dostępne na Planz.pl zawierają pełną dokumentację potrzebną do uzyskania pozwolenia na budowę i stanowią gwarancję sprawnej realizacji budowy.
Jesteśmy oficjalnym partnerem ponad 50 pracowni architektonicznych z całej Polski - dlatego każdy projekt pochodzi wyłącznie od autorów zrzeszonych w Izbie Architektów RP.
Planz.pl to polska firma działającą na rynku od 12 lat. Mamy tysiące zadowolonych klientów, doskonałe opinie i oferujemy wsparcie również po zakupie, doradzamy, pomagamy w adaptacji i pozostajemy w kontakcie na każdym etapie inwestycji.
Dodatkowo do każdego projektu dodajemy tablicę informacyjną, dziennik budowy oraz 16 projektów elektronicznych drewnianej architektury ogrodowej. A dzięki naszej współpracy z markami Blaupunkt i PRIME3 oferujemy możliwość otrzymania sprzętu elektrycznego w formie atrakcyjnego gratisu.
Wybierając Planz.pl, otrzymujesz ten sam oryginalny projekt od autora, wzbogacony o realne dodatki, które ułatwiają rozpoczęcie budowy.
Czy mogę wprowadzić zmiany w projekcie?
Co zrobić gdy wybrany dom nie mieści się na działce?
Zwężenie/poszerzenie budynku* to nic innego jak zmiana w projekcie. Istnieje możliwość wprowadzenia takich zmian, we własnym zakresie (podczas adaptacji). *zwężenie/poszerzenie budynku nie powinno stanowić problemu w przypadku domów o dachu dwuspadowym jeśli wiąże się to z wydłużeniem/skróceniem kalenicy dachu.
Jakie zmiany można wprowadzić w projekcie?
- Rozmieszczenie ścian działowych.
- Zmiany funkcji pomieszczeń.
- Modyfikacje wielkości, ilości i kształtu otworów okiennych i drzwiowych.
- Użycie innych materiałów na elementy konstrukcyjne budynku (ściany, stropy) przy zachowaniu wymagań konstrukcji, parametrów cieplnych budynku i elewacji.
- Wprowadzenie częściowego lub całkowitego podpiwniczenia budynku.
- Zmiana kąta nachylenia, kształtu i konstrukcji dachu.
- Zmiana sposobu ogrzewania i prowadzenia instalacji CO, zmiany instalacji wodno-kanalizacyjnej, gazowej, oraz elektrycznej (zachowując obowiązujące normy, zgodnie z prawem budowlanym).
- Zmiana materiałów wykończeniowych: posadzek, tynków, dachówki, izolacji cieplnej i przeciwwilgociowej (przy zachowaniu niezbędnych parametrów wytrzymałości oraz parametrów przenikania ciepła).
- Zmiany wynikające z dostosowania budynku do warunków gruntowych.
- Zmiany wymiarów fundamentów.
- Zmiany wymiarów przekrojów lub rozstawu elementów więźby dachowej wynikające z dostosowania budynku do strefy śniegowej lub wiatrowej.
- Zmiany szerokości schodów, liczby stopni i wymiarów schodów wewnętrznych oraz zewnętrznych.
- Zmiany pokrycia dachowego (uwzględniając istniejące spadki i ciężar).
- Zmiany kształtu, wielkości, usytuowania elementów takich jak tarasy, wiaty, murki.
- Zmiany wysokości ścianki kolankowej.
- Zmiany usytuowania i ilości kominów.
- Dobudowanie lub usunięcie garażu lub wiaty garażowej.
- Dobudowanie lub usunięcie lukarn.
- Dobudowanie lub usunięcie balkonów.
- Dobudowanie lub usunięcie wykuszy.
- Zabudowanie podcienia.
Poznaj praktyczne porady ekspertów, które ułatwią Ci każdy etap budowy i od wyboru wymarzonego domu po jego wykończenie. Zyskaj pewność, że podejmujesz najlepsze decyzje dzięki sprawdzonym wskazówkom od specjalistów z planz.pl
Co zawiera projekt
- ✓ 3 x projekt architektoniczno-budowlany ➞ szczegóły
- ✓ Projekty techniczne ➞ szczegóły
- ✓ charakterystyka energetyczna (do projektów domów)
- ✓ zgoda na zmiany w projekcie ➞ szczegóły
- ✓ GRATIS: Wiertarka (do projektów w cenie od 3000 zł)
- ✓ GRATIS: 16 projektów (drewutni, altany i wiaty)
- ✓ GRATIS: tablica i dziennik budowy
- ✓ GRATIS: przesyłka kurierska
Dodatki do projektu G191 - Budynek rekreacyjny z sauną
Dodatki możesz kupić razem z projektem lub dokupić po czasie
[Planz] Tablica budowlana (0 zł)
[Planz] Dziennik budowy (0 zł)
[Planz] Wiertarka udarowa (0 zł)
[Planz] Zgoda na zmiany w projekcie (0 zł)
[Planz] Projekty architektury ogrodowej (0 zł)
[Planz] Charakterystyka energetyczna, tylko dla domów całorocznych (0 zł)
Wysyłka i płatność za projekt G191 - Budynek rekreacyjny z sauną
Koszty wysyłki
bezpłatnie (0zł)
Formy płatności
przelew zwykły / PayNow
przy odbiorze
Czas oczekiwania
3-5 dni roboczych (jeśli projekt nie wymaga aktualizacji)
Projekt w kategoriach
Zamów rozmowę
Wybierz wygodny dla Ciebie czas kontaktu z naszym Doradcą Technicznym.
parterowy
murowany
[Planz] Dziennik budowy (0 zł)
[Planz] Zgoda na zmiany w projekcie (0 zł)
[Planz] Charakterystyka energetyczna, tylko dla domów całorocznych (0 zł)