SALOMON



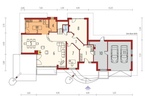
1. Wiatrołap | 11,19 m² |
2. Hol | 17,84 m² |
3. Kuchnia | 16,83 m² |
4. Spiżarnia | 4,92 m² |
5. Jadalnia | 14,97 m² |
6. Pokój dzienny | 40,27 m² |
7. Gabinet | 14,14 m² |
8. Siłownia | 17,84 m² |
9. Toaleta | 1,81 m² |
10. Pom. gospodarcze | 18,71 m² |
11. Garaż | 34,07 m² |
1. Korytarz | 12,42 m² |
2. Sypialnia | 17,78 m² |
3. Pokój | 16,51 m² |
4. Pokój | 14,72 m² |
5. Garderoba | 6,49 m² |
6. Garderoba | 11,12 m² |
7. łazienka | 13,06 m² |
8. Strych | 13,23 m² |
Pow. użytkowa 230.21 m² |
Powierzchnia zabudowy 267.16 m² |
Kondygnacje parterowy+poddasze |
Garaż 2 stanowiska |
Technologia murowany |
Szerokość działki 33.9 m |
Obiekt dom |
Typ domu jednorodzinny całoroczny |
Przechowywanie w kuchni spiżarnia |
Taras z tarasem |
Ogrzewanie gaz, paliwo stałe |
Powierzchnia dachu 434 m² |
Kąt nachylenia dachu drugiego 20 |
Piwnica bez podpiwniczenia |
Wysokość budynku 9.98 m |
Styl budynku wille i rezydencje |
Funkcje dodatkowe ze strychem |
Długość działki 22.4 m |
Kąt nachylenia dachu 43 ° |
Liczba łazieniek 1 |
Rodzaj dachu wielospadowy |
Kominek kominek w projekcie |
Kubatura 1057.92 m³ |
Pow. użytkowa 230.21 m² |
Kondygnacje parterowy+poddasze |
Technologia murowany |
Obiekt dom |
Przechowywanie w kuchni spiżarnia |
Ogrzewanie gaz, paliwo stałe |
Kąt nachylenia dachu drugiego 20 |
Wysokość budynku 9.98 m |
Funkcje dodatkowe ze strychem |
Kąt nachylenia dachu 43 ° |
Rodzaj dachu wielospadowy |
Kubatura 1057.92 m³ |
Powierzchnia zabudowy 267.16 m² |
Garaż 2 stanowiska |
Szerokość działki 33.9 m |
Typ domu jednorodzinny całoroczny |
Taras z tarasem |
Powierzchnia dachu 434 m² |
Piwnica bez podpiwniczenia |
Styl budynku wille i rezydencje |
Długość działki 22.4 m |
Liczba łazieniek 1 |
Kominek kominek w projekcie |
Kupując projekt w technologii murowanej powinieneś budować dom murowany. Zupełna zmiana technologii na szkieletową wymaga przeprojektowania całego budynku ( zmieniają się obciążenia, fundamenty, konstrukcja dachu). Wydamy zgodę na takie przeprojektowanie jednak wiążę się to z dużymi kosztami. Istnieją firmy wykonawcze, które podejmują się zmiany technologii budowy bezpłatnie przy skorzystaniu z ich usług wykonawczych. Zdarza się, że pracownia architektoniczna przygotowuje warianty konkretnego projektu przewidując także inne technologie. Prosimy o sprawdzenie czy istnieje poszukiwana wersja projektu, w zakładce - warianty projektu.
Zwężenie/poszerzenie budynku* to nic innego jak zmiana w projekcie. Istnieje możliwość wprowadzenia takich zmian, we własnym zakresie (podczas adaptacji). *zwężenie/poszerzenie budynku nie powinno stanowić problemu w przypadku domów o dachu dwuspadowym jeśli wiąże się to z wydłużeniem/skróceniem kalenicy dachu.
Poznaj praktyczne porady ekspertów, które ułatwią Ci każdy etap budowy i od wyboru wymarzonego domu po jego wykończenie. Zyskaj pewność, że podejmujesz najlepsze decyzje dzięki sprawdzonym wskazówkom od specjalistów z planz.pl
Wycena szacunkowa, w kwotach netto, nie zawiera instalacji.
bezpłatnie (0zł)
przelew zwykły / PayNow
przy odbiorze
3-5 dni roboczych (jeśli projekt nie wymaga aktualizacji)
Wybierz wygodny dla Ciebie czas kontaktu z naszym Doradcą Technicznym.