Elmo V Energo



Wypełnij formularz i otrzymaj rysunki w pdf z dokładnymi wymiarami budynku i pomieszczeń (długość, szerokość, wysokość) dla projektu Elmo IV Energo
Pow. użytkowa 76.39 m² |
Ilość pokoi 2 |
Powierzchnia zabudowy 114.95 m² |
Kondygnacje parterowy |
Garaż bez garażu |
Technologia murowany |
Szerokość działki 17.6 m |
Obiekt dom |
Typ domu jednorodzinny całoroczny |
Ogrzewanie gaz, paliwo stałe |
Powierzchnia dachu 169 m² |
Długość działki 20.1 m |
Wysokość budynku 6.94 m |
Bryła budynku prosta bryła |
Liczba łazieniek 1 |
Styl budynku nowoczesny |
Kominek kominek w projekcie |
Kąt nachylenia dachu 30 ° |
Strop gęstożebrowy |
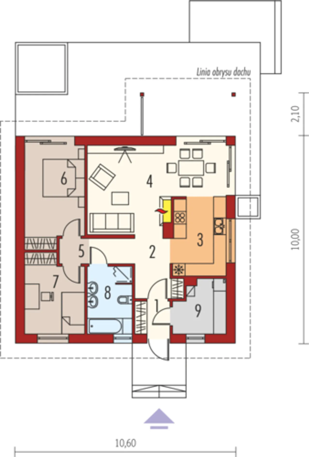
Szerokość budynku 10.6 m |
Taras z tarasem |
Kalenica równoległa do drogi |
Długość budynku 12.1 m |
Piwnica bez podpiwniczenia |
Kubatura 265.91 m³ |
Rodzaj dachu dwuspadowy |
Koszty budowy tylko z kosztorysem, 150-200 tys. |
Pow. użytkowa 76.39 m² |
Powierzchnia zabudowy 114.95 m² |
Garaż bez garażu |
Szerokość działki 17.6 m |
Typ domu jednorodzinny całoroczny |
Powierzchnia dachu 169 m² |
Wysokość budynku 6.94 m |
Liczba łazieniek 1 |
Kominek kominek w projekcie |
Strop gęstożebrowy |
Taras z tarasem |
Długość budynku 12.1 m |
Kubatura 265.91 m³ |
Koszty budowy tylko z kosztorysem, 150-200 tys. |
Ilość pokoi 2 |
Kondygnacje parterowy |
Technologia murowany |
Obiekt dom |
Ogrzewanie gaz, paliwo stałe |
Długość działki 20.1 m |
Bryła budynku prosta bryła |
Styl budynku nowoczesny |
Kąt nachylenia dachu 30 ° |
Szerokość budynku 10.6 m |
Kalenica równoległa do drogi |
Piwnica bez podpiwniczenia |
Rodzaj dachu dwuspadowy |
Gotowy projekt domu Elmo IV ENERGO to murowany dom bez garażu. Decydując się na projekt Elmo IV ENERGO, przyszli inwestorzy zamieszkają w budynku parterowym. Konstrukcję dachu wieńczy dach dwuspadowy, a całość utrzymana jest w nowoczesnej stylistyce. Gotowy projekt domu Elmo IV ENERGO będzie domem w zabudowie całorocznej, bez podpiwniczenia, w którym przewidziano instalację kominkową. Praktyczny rozkład pomieszczeń oraz ich intuicyjna integracja, sprawiają, że wnętrza są przytulne przy zachowaniu dużej dozy przestronności. W projekcie zadbano o otwartość, która powoduje, że budynek wydaje się dużo bardziej przestronny, atrakcyjny i funkcjonalny. Projekt charakteryzuje elegancka forma i współczesna estetyka.
Kupując projekt w technologii murowanej powinieneś budować dom murowany. Zupełna zmiana technologii na szkieletową wymaga przeprojektowania całego budynku ( zmieniają się obciążenia, fundamenty, konstrukcja dachu). Wydamy zgodę na takie przeprojektowanie jednak wiążę się to z dużymi kosztami. Istnieją firmy wykonawcze, które podejmują się zmiany technologii budowy bezpłatnie przy skorzystaniu z ich usług wykonawczych. Zdarza się, że pracownia architektoniczna przygotowuje warianty konkretnego projektu przewidując także inne technologie. Prosimy o sprawdzenie czy istnieje poszukiwana wersja projektu, w zakładce - warianty projektu.
Zwężenie/poszerzenie budynku* to nic innego jak zmiana w projekcie. Istnieje możliwość wprowadzenia takich zmian, we własnym zakresie (podczas adaptacji). *zwężenie/poszerzenie budynku nie powinno stanowić problemu w przypadku domów o dachu dwuspadowym jeśli wiąże się to z wydłużeniem/skróceniem kalenicy dachu.
Poznaj praktyczne porady ekspertów, które ułatwią Ci każdy etap budowy i od wyboru wymarzonego domu po jego wykończenie. Zyskaj pewność, że podejmujesz najlepsze decyzje dzięki sprawdzonym wskazówkom od specjalistów z planz.pl
Wycena szacunkowa, w kwotach netto, nie zawiera instalacji.
bezpłatnie (0zł)
przelew zwykły / PayNow
przy odbiorze
3-5 dni roboczych (jeśli projekt nie wymaga aktualizacji)
Wybierz wygodny dla Ciebie czas kontaktu z naszym Doradcą Technicznym.