Eco 42



Zawartość projektu
3 egzemplarze projektu archtektoniczno budowlanego + 3 egzemplarze projektu technicznego.
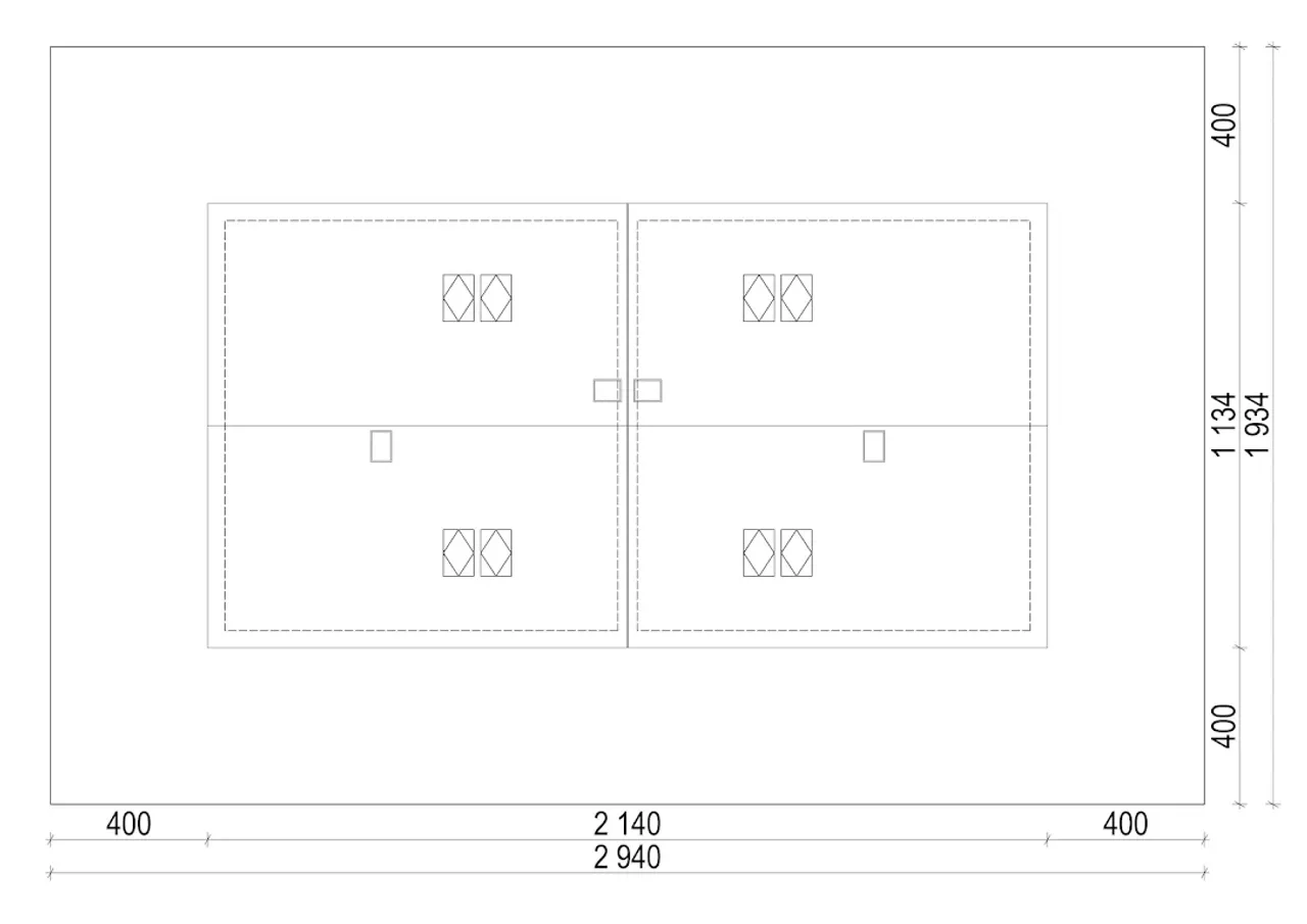
1. Wiatrołap | 3,57 m² |
2. Hol + schody | 10,98 m² |
3. Kuchnia | 8,28 m² |
4. Salon z jadalnią | 24,10 m² |
5. Toaleta | 2,03 m² |
6. Pom. gospodarcze | 2,16 m² |
7. Pokój | 10,55 m² |
8. Pokój | 10,28 m² |
9. łazienka | 5,50 m² |
10. Pokój | 11,00 m² |
11. Wiatrołap | 3,57 m² |
12. Hol + schody | 10,98 m² |
13. Kuchnia | 8,28 m² |
14. Salon z jadalnią | 24,10 m² |
15. Toaleta | 2,03 m² |
16. Pom. gospodarcze | 2,16 m² |
17. Pokój | 10,55 m² |
18. Pokój | 10,28 m² |
19. łazienka | 5,50 m² |
20. Pokój | 11,00 m² |
Wypełnij formularz i otrzymaj rysunki w pdf z dokładnymi wymiarami budynku i pomieszczeń (długość, szerokość, wysokość) dla projektu Eco 42 bliźniak
Ilość pokoi 4 |
Pow. użytkowa 88.45 m² |
Powierzchnia zabudowy 121.83 m² |
Kondygnacje parterowy |
Garaż bez garażu |
Technologia murowany |
Szerokość działki 29.4 m |
Obiekt dom |
Typ domu bliźniak i dwurodzinny |
Kubatura 583.6 m³ |
Wysokość budynku 6.77 m |
Kalenica równoległa do drogi |
Długość działki 19.34 m |
Styl budynku nowoczesny |
Liczba łazieniek 1 |
Kąt nachylenia dachu 32 ° |
Szerokość budynku 21.14 m |
Rodzaj dachu dwuspadowy |
Kominek kominek w projekcie |
Długość budynku 11.34 m |
Piwnica bez podpiwniczenia |
Koszty budowy 400-450 tys., tylko z kosztorysem |
Ilość pokoi 4 |
Powierzchnia zabudowy 121.83 m² |
Garaż bez garażu |
Szerokość działki 29.4 m |
Typ domu bliźniak i dwurodzinny |
Wysokość budynku 6.77 m |
Długość działki 19.34 m |
Liczba łazieniek 1 |
Szerokość budynku 21.14 m |
Kominek kominek w projekcie |
Piwnica bez podpiwniczenia |
Pow. użytkowa 88.45 m² |
Kondygnacje parterowy |
Technologia murowany |
Obiekt dom |
Kubatura 583.6 m³ |
Kalenica równoległa do drogi |
Styl budynku nowoczesny |
Kąt nachylenia dachu 32 ° |
Rodzaj dachu dwuspadowy |
Długość budynku 11.34 m |
Koszty budowy 400-450 tys., tylko z kosztorysem |
Kupując projekt w technologii murowanej powinieneś budować dom murowany. Zupełna zmiana technologii na szkieletową wymaga przeprojektowania całego budynku ( zmieniają się obciążenia, fundamenty, konstrukcja dachu). Wydamy zgodę na takie przeprojektowanie jednak wiążę się to z dużymi kosztami. Istnieją firmy wykonawcze, które podejmują się zmiany technologii budowy bezpłatnie przy skorzystaniu z ich usług wykonawczych. Zdarza się, że pracownia architektoniczna przygotowuje warianty konkretnego projektu przewidując także inne technologie. Prosimy o sprawdzenie czy istnieje poszukiwana wersja projektu, w zakładce - warianty projektu.
Zwężenie/poszerzenie budynku* to nic innego jak zmiana w projekcie. Istnieje możliwość wprowadzenia takich zmian, we własnym zakresie (podczas adaptacji). *zwężenie/poszerzenie budynku nie powinno stanowić problemu w przypadku domów o dachu dwuspadowym jeśli wiąże się to z wydłużeniem/skróceniem kalenicy dachu.
Poznaj praktyczne porady ekspertów, które ułatwią Ci każdy etap budowy i od wyboru wymarzonego domu po jego wykończenie. Zyskaj pewność, że podejmujesz najlepsze decyzje dzięki sprawdzonym wskazówkom od specjalistów z planz.pl
Wycena szacunkowa, w kwotach netto, nie zawiera instalacji.
bezpłatnie (0zł)
przelew zwykły / PayNow
przy odbiorze
2-6 dni roboczych
Wybierz wygodny dla Ciebie czas kontaktu z naszym Doradcą Technicznym.