Eco 19 segment



Zawartość projektu
3 egzemplarze projektu archtektoniczno budowlanego + 3 egzemplarze projektu technicznego.
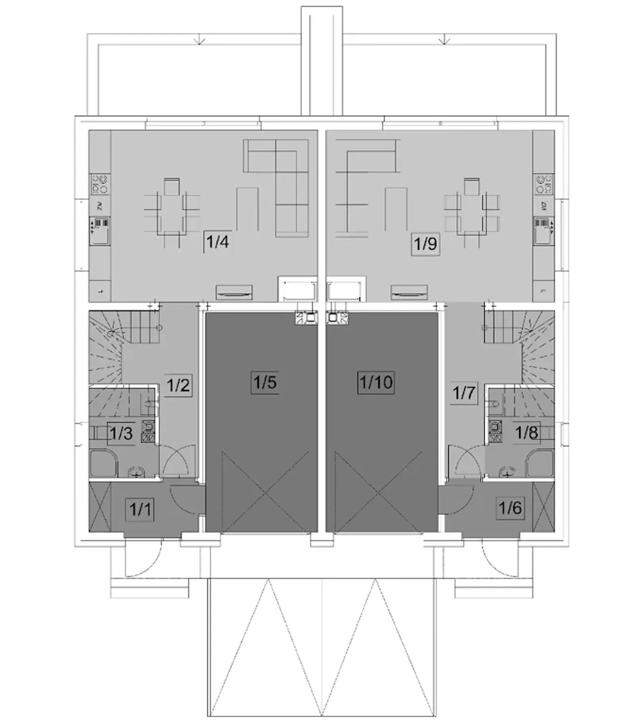
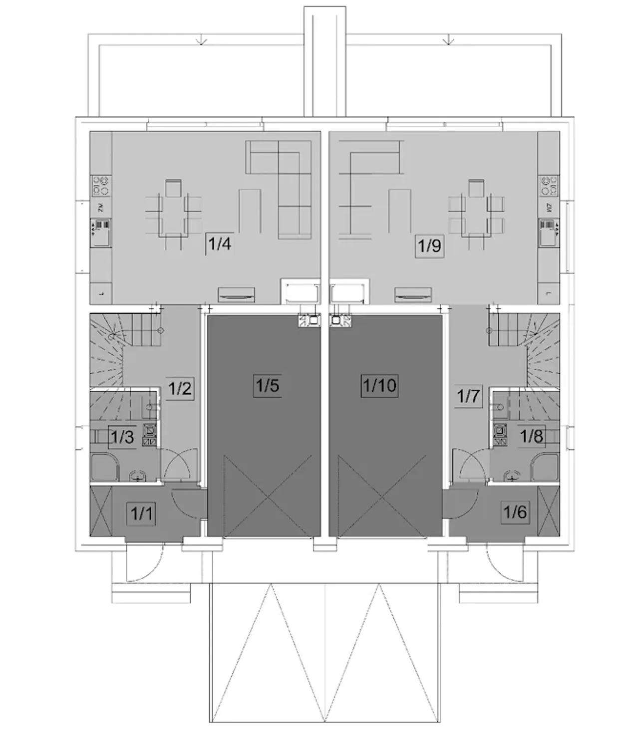
1. Wiatrołap | 4,16 m² |
2. Korytarz | 9,16 m² |
3. łazienka | 3,56 m² |
4. Pokój dzienny + aneks kuchenny | 30,02 m² |
5. Garaż | 18,46 m² |
6. Wiatrołap | 4,16 m² |
7. Korytarz | 9,16 m² |
8. łazienka | 3,56 m² |
9. Pokój dzienny + aneks kuchenny | 30,02 m² |
10. Garaż | 18,46 m² |
1. Korytarz | 3,80 m² |
2. Sypialnia | 9,80 m² |
3. Sypialnia | 12,47 m² |
4. Sypialnia | 13,53 m² |
5. łazienka | 5,00 m² |
6. Korytarz | 3,80 m² |
7. Sypialnia | 9,80 m² |
8. Sypialnia | 12,47 m² |
9. Sypialnia | 13,53 m² |
10. łazienka | 5,00 m² |
Wypełnij formularz i otrzymaj rysunki w pdf z dokładnymi wymiarami budynku i pomieszczeń (długość, szerokość, wysokość) dla projektu Eco 19 dwulokalowy
Ilość pokoi 8 |
Pow. użytkowa 182.6 m² |
Powierzchnia zabudowy 168 m² |
Kondygnacje parterowy+poddasze |
Garaż 1 stanowisko |
Technologia murowany |
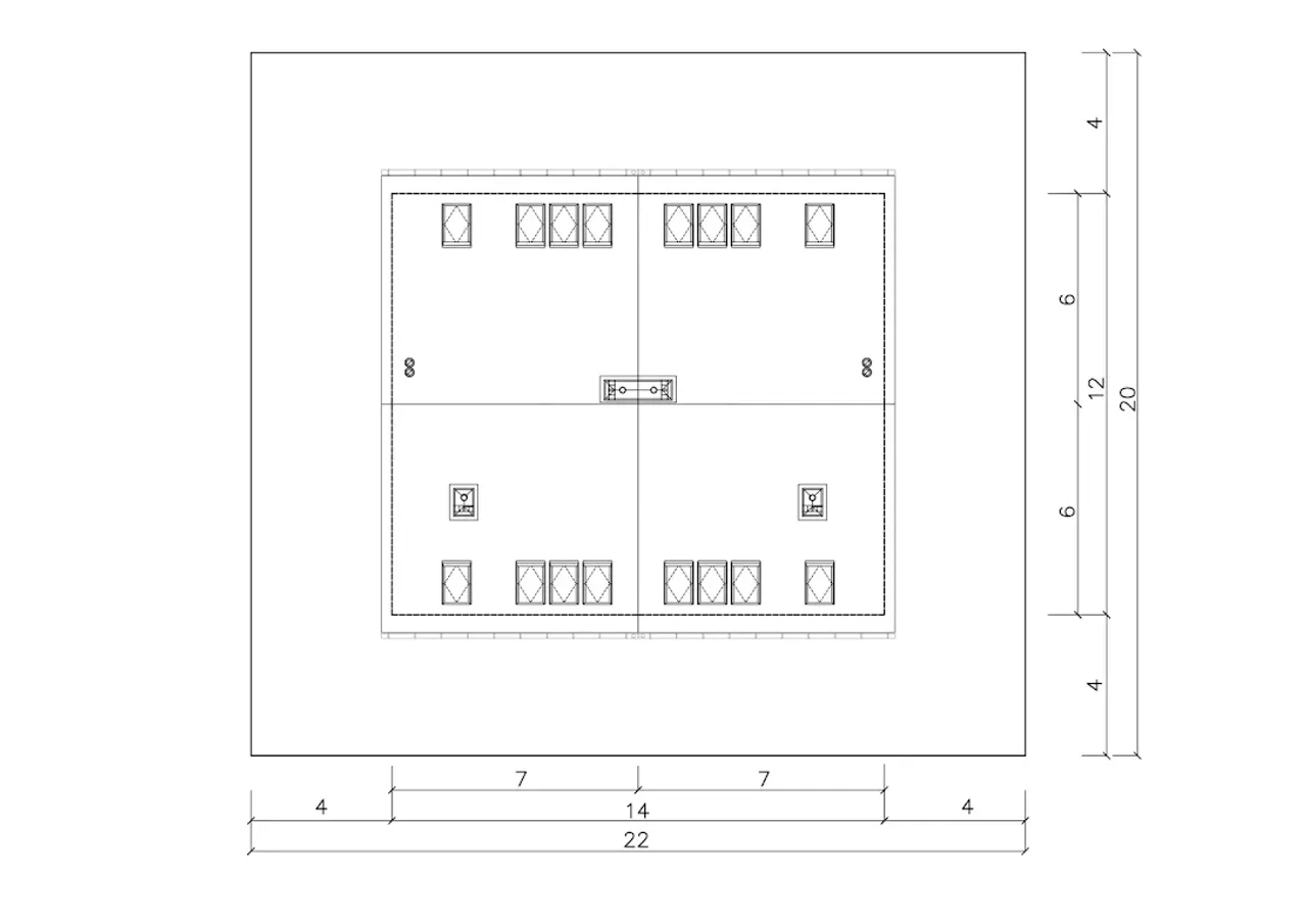
Szerokość działki 22 m |
Obiekt dom |
Typ domu jednorodzinny całoroczny |
Liczba łazieniek 4 |
Kąt nachylenia dachu 35 ° |
Szerokość budynku 14 m |
Rodzaj dachu dwuspadowy |
Kominek kominek w projekcie |
Długość budynku 12 m |
Piwnica bez podpiwniczenia |
Kubatura 1109.5 m³ |
Wysokość budynku 8.76 m |
Kalenica równoległa do drogi |
Długość działki 20 m |
Styl budynku nowoczesny |
Koszty budowy tylko z kosztorysem, 200-250 tys. |
Ilość pokoi 8 |
Powierzchnia zabudowy 168 m² |
Garaż 1 stanowisko |
Szerokość działki 22 m |
Typ domu jednorodzinny całoroczny |
Kąt nachylenia dachu 35 ° |
Rodzaj dachu dwuspadowy |
Długość budynku 12 m |
Kubatura 1109.5 m³ |
Kalenica równoległa do drogi |
Styl budynku nowoczesny |
Pow. użytkowa 182.6 m² |
Kondygnacje parterowy+poddasze |
Technologia murowany |
Obiekt dom |
Liczba łazieniek 4 |
Szerokość budynku 14 m |
Kominek kominek w projekcie |
Piwnica bez podpiwniczenia |
Wysokość budynku 8.76 m |
Długość działki 20 m |
Koszty budowy tylko z kosztorysem, 200-250 tys. |
Kupując projekt w technologii murowanej powinieneś budować dom murowany. Zupełna zmiana technologii na szkieletową wymaga przeprojektowania całego budynku ( zmieniają się obciążenia, fundamenty, konstrukcja dachu). Wydamy zgodę na takie przeprojektowanie jednak wiążę się to z dużymi kosztami. Istnieją firmy wykonawcze, które podejmują się zmiany technologii budowy bezpłatnie przy skorzystaniu z ich usług wykonawczych. Zdarza się, że pracownia architektoniczna przygotowuje warianty konkretnego projektu przewidując także inne technologie. Prosimy o sprawdzenie czy istnieje poszukiwana wersja projektu, w zakładce - warianty projektu.
Zwężenie/poszerzenie budynku* to nic innego jak zmiana w projekcie. Istnieje możliwość wprowadzenia takich zmian, we własnym zakresie (podczas adaptacji). *zwężenie/poszerzenie budynku nie powinno stanowić problemu w przypadku domów o dachu dwuspadowym jeśli wiąże się to z wydłużeniem/skróceniem kalenicy dachu.
Poznaj praktyczne porady ekspertów, które ułatwią Ci każdy etap budowy i od wyboru wymarzonego domu po jego wykończenie. Zyskaj pewność, że podejmujesz najlepsze decyzje dzięki sprawdzonym wskazówkom od specjalistów z planz.pl
Wycena szacunkowa, w kwotach netto, nie zawiera instalacji.
bezpłatnie (0zł)
przelew zwykły / PayNow
przy odbiorze
2-6 dni roboczych
Wybierz wygodny dla Ciebie czas kontaktu z naszym Doradcą Technicznym.