Eco 12



Zawartość projektu
3 egzemplarze projektu archtektoniczno budowlanego + 3 egzemplarze projektu technicznego.
Wypełnij formularz i otrzymaj rysunki w pdf z dokładnymi wymiarami budynku i pomieszczeń (długość, szerokość, wysokość) dla projektu Eco 12 bliźniak
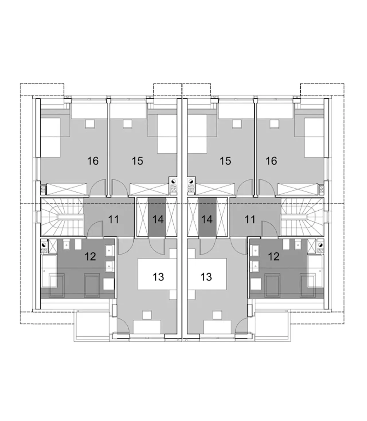
Ilość pokoi 4 |
Pow. użytkowa 105.95 m² |
Powierzchnia zabudowy 89.33 m² |
Kondygnacje parterowy+poddasze |
Garaż 1 stanowisko |
Technologia murowany |
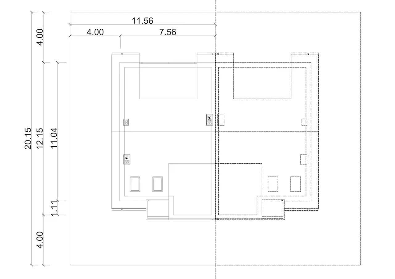
Szerokość działki 11.56 m |
Obiekt dom |
Typ domu bliźniak i dwurodzinny |
Liczba łazieniek 2 |
Kąt nachylenia dachu 35 ° |
Szerokość budynku 7.56 m |
Rodzaj dachu dwuspadowy |
Kominek kominek w projekcie |
Długość budynku 12.15 m |
Piwnica bez podpiwniczenia |
Kubatura 573 m³ |
Wysokość budynku 8.46 m |
Kalenica równoległa do drogi |
Długość działki 20.15 m |
Styl budynku nowoczesny |
Koszty budowy 450-500 tys., tylko z kosztorysem |
Ilość pokoi 4 |
Powierzchnia zabudowy 89.33 m² |
Garaż 1 stanowisko |
Szerokość działki 11.56 m |
Typ domu bliźniak i dwurodzinny |
Kąt nachylenia dachu 35 ° |
Rodzaj dachu dwuspadowy |
Długość budynku 12.15 m |
Kubatura 573 m³ |
Kalenica równoległa do drogi |
Styl budynku nowoczesny |
Pow. użytkowa 105.95 m² |
Kondygnacje parterowy+poddasze |
Technologia murowany |
Obiekt dom |
Liczba łazieniek 2 |
Szerokość budynku 7.56 m |
Kominek kominek w projekcie |
Piwnica bez podpiwniczenia |
Wysokość budynku 8.46 m |
Długość działki 20.15 m |
Koszty budowy 450-500 tys., tylko z kosztorysem |
Kupując projekt w technologii murowanej powinieneś budować dom murowany. Zupełna zmiana technologii na szkieletową wymaga przeprojektowania całego budynku ( zmieniają się obciążenia, fundamenty, konstrukcja dachu). Wydamy zgodę na takie przeprojektowanie jednak wiążę się to z dużymi kosztami. Istnieją firmy wykonawcze, które podejmują się zmiany technologii budowy bezpłatnie przy skorzystaniu z ich usług wykonawczych. Zdarza się, że pracownia architektoniczna przygotowuje warianty konkretnego projektu przewidując także inne technologie. Prosimy o sprawdzenie czy istnieje poszukiwana wersja projektu, w zakładce - warianty projektu.
Zwężenie/poszerzenie budynku* to nic innego jak zmiana w projekcie. Istnieje możliwość wprowadzenia takich zmian, we własnym zakresie (podczas adaptacji). *zwężenie/poszerzenie budynku nie powinno stanowić problemu w przypadku domów o dachu dwuspadowym jeśli wiąże się to z wydłużeniem/skróceniem kalenicy dachu.
Poznaj praktyczne porady ekspertów, które ułatwią Ci każdy etap budowy i od wyboru wymarzonego domu po jego wykończenie. Zyskaj pewność, że podejmujesz najlepsze decyzje dzięki sprawdzonym wskazówkom od specjalistów z planz.pl
Wycena szacunkowa, w kwotach netto, nie zawiera instalacji.
bezpłatnie (0zł)
przelew zwykły / PayNow
przy odbiorze
2-6 dni roboczych
Wybierz wygodny dla Ciebie czas kontaktu z naszym Doradcą Technicznym.