E-285



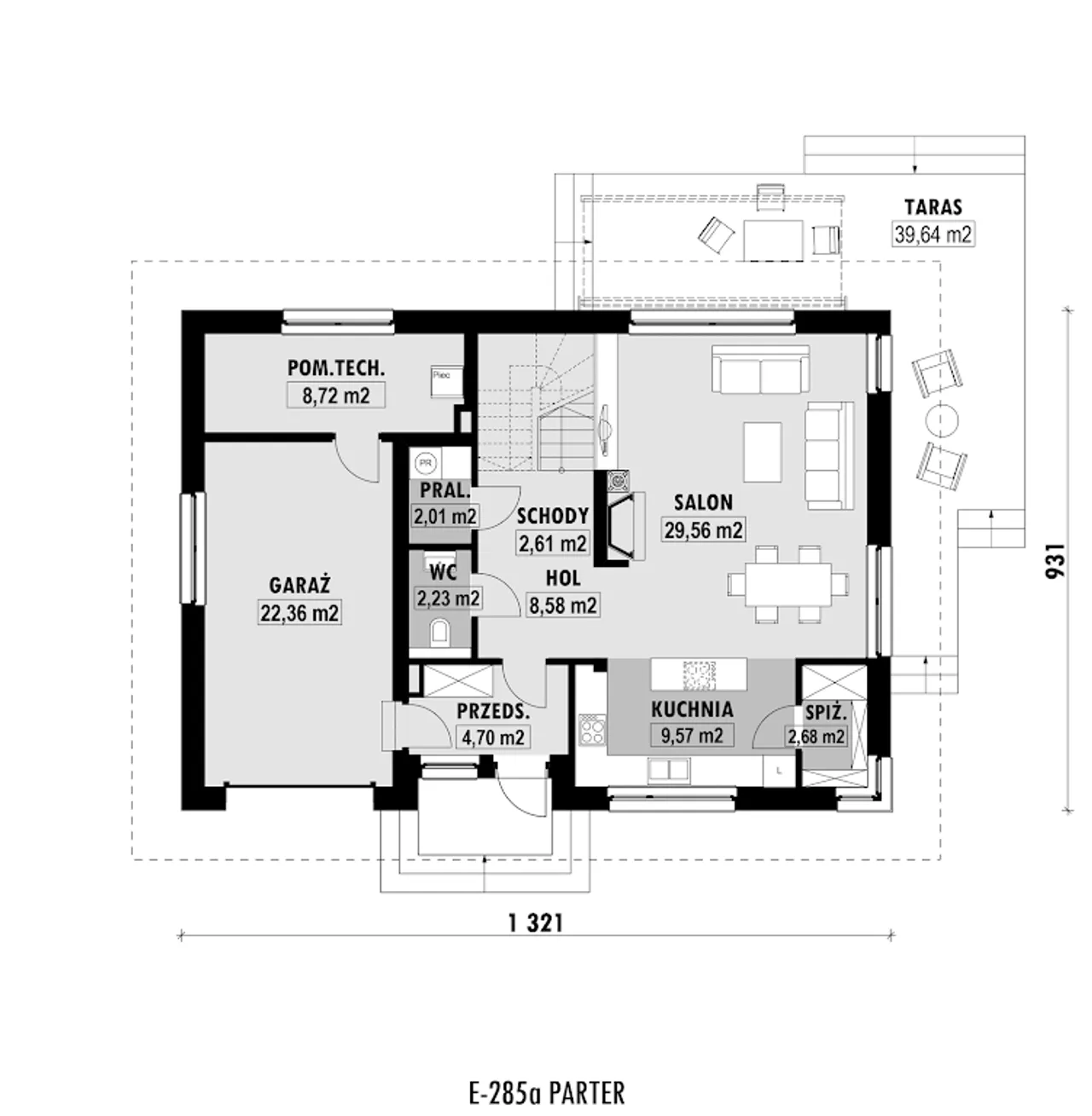
1. Przedsionek | 4,70 m² |
2. Hol | 8,58 m² |
3. Salon | 29,56 m² |
4. Kuchnia | 9,57 m² |
5. Spiżarnia | 2,68 m² |
6. Wc | 2,23 m² |
7. Pralnia | 2,01 m² |
8. Schody | 2,61 m² |
9. Pom. techniczne | 8,72 m² |
10. Garaż | 22,36 m² |
11. Taras | 39,64 m² |
1. Komunikacja | 2,58 m² |
2. Hol | 7,27 m² |
3. Sypialnia | 7,67 (14,10) m² |
4. Garderoba | 2,43 (4,43) m² |
5. łazienka | 3,23 (5,89) m² |
6. Sypialnia | 6,79 (13,43) m² |
7. Sypialnia | 8,49 (15,90) m² |
8. Sypialnia | 8,48 (16,01) m² |
Wypełnij formularz i otrzymaj rysunki w pdf z dokładnymi wymiarami budynku i pomieszczeń (długość, szerokość, wysokość) dla projektu E-285a
Pow. użytkowa 108.9 m² |
Ilość pokoi 5 |
Powierzchnia zabudowy 123 m² |
Kondygnacje parterowy+poddasze |
Garaż 1 stanowisko |
Technologia murowany |
Szerokość działki 21.21 m |
Obiekt dom |
Typ domu jednorodzinny całoroczny |
Powierzchnia dachu 198 m² |
Długość działki 19.06 m |
Wysokość budynku 8.1 m |
Styl budynku nowoczesny |
Kalenica równoległa do drogi |
Liczba łazieniek 1 |
Szerokość budynku 13.21 m |
Kominek kominek w projekcie |
Kąt nachylenia dachu 37 ° |
Długość budynku 9.31 m |
Rodzaj dachu wielospadowy |
Piwnica bez podpiwniczenia |
Kubatura 436.7 m³ |
Koszty budowy tylko z kosztorysem, 250-300 tys. |
Pow. użytkowa 108.9 m² |
Powierzchnia zabudowy 123 m² |
Garaż 1 stanowisko |
Szerokość działki 21.21 m |
Typ domu jednorodzinny całoroczny |
Długość działki 19.06 m |
Styl budynku nowoczesny |
Liczba łazieniek 1 |
Kominek kominek w projekcie |
Długość budynku 9.31 m |
Piwnica bez podpiwniczenia |
Koszty budowy tylko z kosztorysem, 250-300 tys. |
Ilość pokoi 5 |
Kondygnacje parterowy+poddasze |
Technologia murowany |
Obiekt dom |
Powierzchnia dachu 198 m² |
Wysokość budynku 8.1 m |
Kalenica równoległa do drogi |
Szerokość budynku 13.21 m |
Kąt nachylenia dachu 37 ° |
Rodzaj dachu wielospadowy |
Kubatura 436.7 m³ |
Kupując projekt w technologii murowanej powinieneś budować dom murowany. Zupełna zmiana technologii na szkieletową wymaga przeprojektowania całego budynku ( zmieniają się obciążenia, fundamenty, konstrukcja dachu). Wydamy zgodę na takie przeprojektowanie jednak wiążę się to z dużymi kosztami. Istnieją firmy wykonawcze, które podejmują się zmiany technologii budowy bezpłatnie przy skorzystaniu z ich usług wykonawczych. Zdarza się, że pracownia architektoniczna przygotowuje warianty konkretnego projektu przewidując także inne technologie. Prosimy o sprawdzenie czy istnieje poszukiwana wersja projektu, w zakładce - warianty projektu.
Zwężenie/poszerzenie budynku* to nic innego jak zmiana w projekcie. Istnieje możliwość wprowadzenia takich zmian, we własnym zakresie (podczas adaptacji). *zwężenie/poszerzenie budynku nie powinno stanowić problemu w przypadku domów o dachu dwuspadowym jeśli wiąże się to z wydłużeniem/skróceniem kalenicy dachu.
Poznaj praktyczne porady ekspertów, które ułatwią Ci każdy etap budowy i od wyboru wymarzonego domu po jego wykończenie. Zyskaj pewność, że podejmujesz najlepsze decyzje dzięki sprawdzonym wskazówkom od specjalistów z planz.pl
Wycena szacunkowa, w kwotach netto, nie zawiera instalacji.
bezpłatnie (0zł)
przelew zwykły / PayNow
przy odbiorze
3-5 dni roboczych
Wybierz wygodny dla Ciebie czas kontaktu z naszym Doradcą Technicznym.