CEZAR



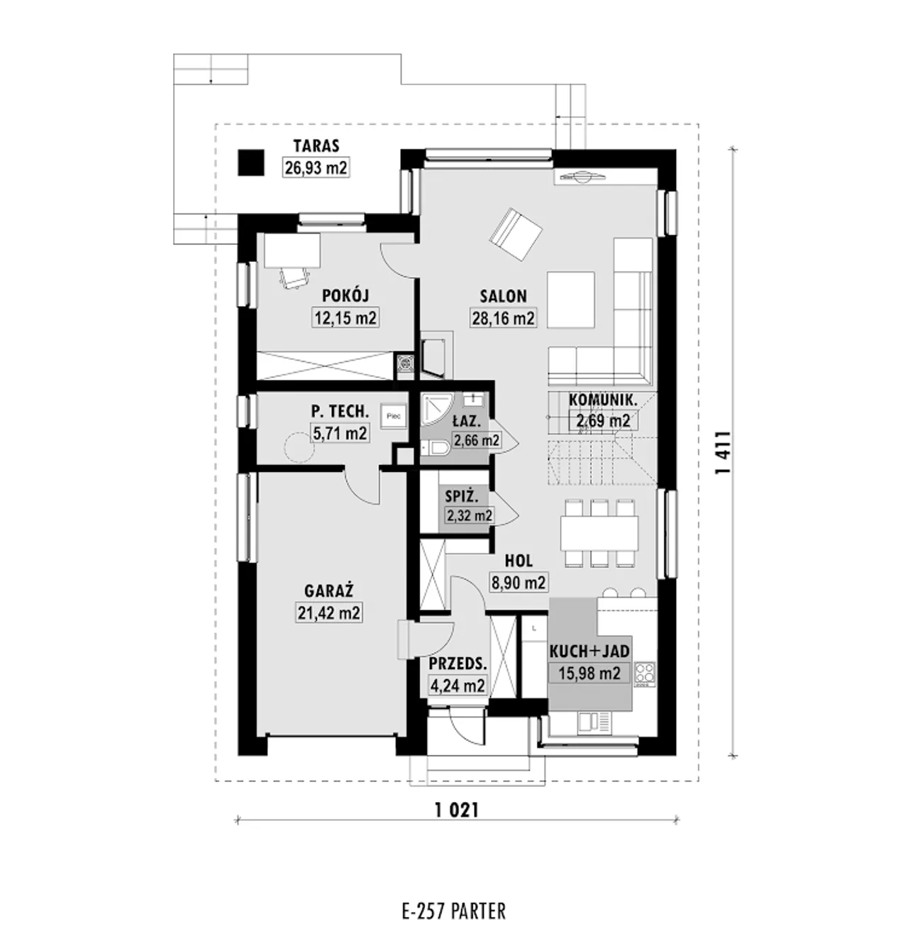
1. Przedsionek | 4,24 m² |
2. Hol | 8,90 m² |
3. Kuchnia + jadalnia | 15,98 m² |
4. Komunikacja | 2,69 m² |
5. Salon | 28,16 m² |
6. Pokój | 12,15 m² |
7. łazienka | 2,66 m² |
8. Spiżarnia | 2,32 m² |
9. Pom. techniczne | 5,71 m² |
10. Garaż | 21,42 m² |
11. Taras | 26,93 m² |
1. Komunikacja | 2,55 m² |
2. Hol | 9,24 m² |
3. Sypialnia | 17,01 (22,13) m² |
4. łazienka | 2,94 (3,72) m² |
5. łazienka | 3,97 (5,14) m² |
6. Sypialnia | 15,45 (19,90) m² |
7. Sypialnia | 13,42 (18,50) m² |
8. Pralnia | 1,34 (2,46) m² |
9. Sypialnia | 11,64 (16,04) m² |
10. Balkon | 4,66 m² |
Wypełnij formularz i otrzymaj rysunki w pdf z dokładnymi wymiarami budynku i pomieszczeń (długość, szerokość, wysokość) dla projektu E-257
Pow. użytkowa 154.7 m² |
Ilość pokoi 6 |
Powierzchnia zabudowy 144.1 m² |
Kondygnacje parterowy+poddasze |
Garaż 1 stanowisko |
Technologia murowany |
Szerokość działki 18.21 m |
Obiekt dom |
Typ domu jednorodzinny całoroczny |
Wysokość budynku 8.9 m |
Styl budynku nowoczesny |
Kalenica prostopadła do drogi |
Liczba łazieniek 3 |
Szerokość budynku 10.21 m |
Kominek kominek w projekcie |
Kąt nachylenia dachu 42 ° |
Długość budynku 14.11 m |
Rodzaj dachu dwuspadowy |
Piwnica bez podpiwniczenia |
Kubatura 537.8 m³ |
Powierzchnia dachu 225 m² |
Długość działki 23.11 m |
Koszty budowy 400-450 tys., tylko z kosztorysem |
Pow. użytkowa 154.7 m² |
Powierzchnia zabudowy 144.1 m² |
Garaż 1 stanowisko |
Szerokość działki 18.21 m |
Typ domu jednorodzinny całoroczny |
Styl budynku nowoczesny |
Liczba łazieniek 3 |
Kominek kominek w projekcie |
Długość budynku 14.11 m |
Piwnica bez podpiwniczenia |
Powierzchnia dachu 225 m² |
Koszty budowy 400-450 tys., tylko z kosztorysem |
Ilość pokoi 6 |
Kondygnacje parterowy+poddasze |
Technologia murowany |
Obiekt dom |
Wysokość budynku 8.9 m |
Kalenica prostopadła do drogi |
Szerokość budynku 10.21 m |
Kąt nachylenia dachu 42 ° |
Rodzaj dachu dwuspadowy |
Kubatura 537.8 m³ |
Długość działki 23.11 m |
Kupując projekt w technologii murowanej powinieneś budować dom murowany. Zupełna zmiana technologii na szkieletową wymaga przeprojektowania całego budynku ( zmieniają się obciążenia, fundamenty, konstrukcja dachu). Wydamy zgodę na takie przeprojektowanie jednak wiążę się to z dużymi kosztami. Istnieją firmy wykonawcze, które podejmują się zmiany technologii budowy bezpłatnie przy skorzystaniu z ich usług wykonawczych. Zdarza się, że pracownia architektoniczna przygotowuje warianty konkretnego projektu przewidując także inne technologie. Prosimy o sprawdzenie czy istnieje poszukiwana wersja projektu, w zakładce - warianty projektu.
Zwężenie/poszerzenie budynku* to nic innego jak zmiana w projekcie. Istnieje możliwość wprowadzenia takich zmian, we własnym zakresie (podczas adaptacji). *zwężenie/poszerzenie budynku nie powinno stanowić problemu w przypadku domów o dachu dwuspadowym jeśli wiąże się to z wydłużeniem/skróceniem kalenicy dachu.
Poznaj praktyczne porady ekspertów, które ułatwią Ci każdy etap budowy i od wyboru wymarzonego domu po jego wykończenie. Zyskaj pewność, że podejmujesz najlepsze decyzje dzięki sprawdzonym wskazówkom od specjalistów z planz.pl
Wycena szacunkowa, w kwotach netto, nie zawiera instalacji.
bezpłatnie (0zł)
przelew zwykły / PayNow
przy odbiorze
3-5 dni roboczych
Wybierz wygodny dla Ciebie czas kontaktu z naszym Doradcą Technicznym.