TK31



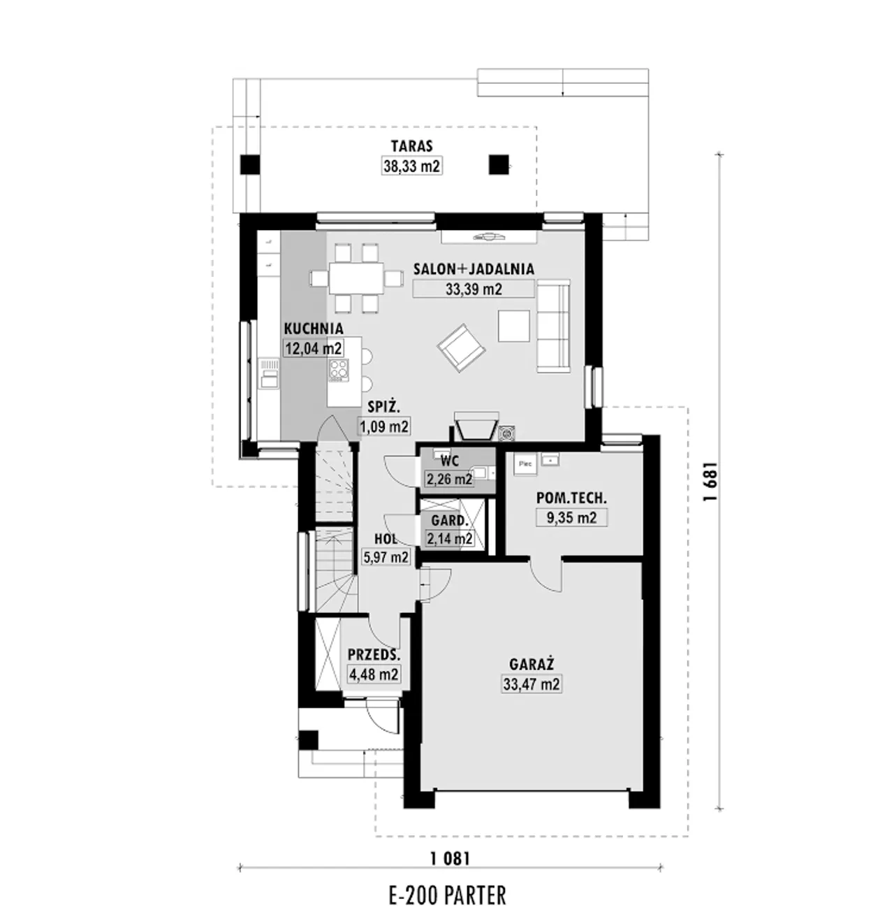
1. Przedsionek | 4,48 m² |
2. Hol | 5,97 m² |
3. Spiżarnia | 1,09 m² |
4. Kuchnia | 12,04 m² |
5. Salon + jadalnia | 33,39 m² |
6. Wc | 2,26 m² |
7. Garderoba | 2,14 m² |
8. Pom. techniczne | 9,35 m² |
9. Garaż | 33,47 m² |
10. Taras | 38,33 m² |
1. Schody | 4,23 m² |
2. Hol | 10,79 m² |
3. Sypialnia | 18,35 m² |
4. Sypialnia | 18,19 m² |
5. łazienka | 5,31 m² |
6. Pralnia | 2,45 m² |
7. Sypialnia | 15,10 m² |
8. łazienka | 3,22 m² |
9. Balkon | 6,46 m² |
Wypełnij formularz i otrzymaj rysunki w pdf z dokładnymi wymiarami budynku i pomieszczeń (długość, szerokość, wysokość) dla projektu E-200
Pow. użytkowa 148.4 m² |
Ilość pokoi 4 |
Powierzchnia zabudowy 149.8 m² |
Kondygnacje piętrowy |
Garaż 2 stanowiska |
Technologia murowany |
Szerokość działki 17.81 m |
Obiekt dom |
Typ domu jednorodzinny całoroczny |
Powierzchnia dachu 197 m² |
Długość działki 25.81 m |
Wysokość budynku 8.5 m |
Kalenica prostopadła do drogi |
Styl budynku nowoczesny |
Liczba łazieniek 2 |
Szerokość budynku 10.81 m |
Kominek kominek w projekcie |
Kąt nachylenia dachu 22 ° |
Długość budynku 16.81 m |
Rodzaj dachu wielospadowy |
Piwnica bez podpiwniczenia |
Kubatura 511.3 m³ |
Koszty budowy 400-450 tys., tylko z kosztorysem |
Pow. użytkowa 148.4 m² |
Powierzchnia zabudowy 149.8 m² |
Garaż 2 stanowiska |
Szerokość działki 17.81 m |
Typ domu jednorodzinny całoroczny |
Długość działki 25.81 m |
Kalenica prostopadła do drogi |
Liczba łazieniek 2 |
Kominek kominek w projekcie |
Długość budynku 16.81 m |
Piwnica bez podpiwniczenia |
Koszty budowy 400-450 tys., tylko z kosztorysem |
Ilość pokoi 4 |
Kondygnacje piętrowy |
Technologia murowany |
Obiekt dom |
Powierzchnia dachu 197 m² |
Wysokość budynku 8.5 m |
Styl budynku nowoczesny |
Szerokość budynku 10.81 m |
Kąt nachylenia dachu 22 ° |
Rodzaj dachu wielospadowy |
Kubatura 511.3 m³ |
Kupując projekt w technologii murowanej powinieneś budować dom murowany. Zupełna zmiana technologii na szkieletową wymaga przeprojektowania całego budynku ( zmieniają się obciążenia, fundamenty, konstrukcja dachu). Wydamy zgodę na takie przeprojektowanie jednak wiążę się to z dużymi kosztami. Istnieją firmy wykonawcze, które podejmują się zmiany technologii budowy bezpłatnie przy skorzystaniu z ich usług wykonawczych. Zdarza się, że pracownia architektoniczna przygotowuje warianty konkretnego projektu przewidując także inne technologie. Prosimy o sprawdzenie czy istnieje poszukiwana wersja projektu, w zakładce - warianty projektu.
Zwężenie/poszerzenie budynku* to nic innego jak zmiana w projekcie. Istnieje możliwość wprowadzenia takich zmian, we własnym zakresie (podczas adaptacji). *zwężenie/poszerzenie budynku nie powinno stanowić problemu w przypadku domów o dachu dwuspadowym jeśli wiąże się to z wydłużeniem/skróceniem kalenicy dachu.
Poznaj praktyczne porady ekspertów, które ułatwią Ci każdy etap budowy i od wyboru wymarzonego domu po jego wykończenie. Zyskaj pewność, że podejmujesz najlepsze decyzje dzięki sprawdzonym wskazówkom od specjalistów z planz.pl
Wycena szacunkowa, w kwotach netto, nie zawiera instalacji.
bezpłatnie (0zł)
przelew zwykły / PayNow
przy odbiorze
3-5 dni roboczych
Wybierz wygodny dla Ciebie czas kontaktu z naszym Doradcą Technicznym.