TK33



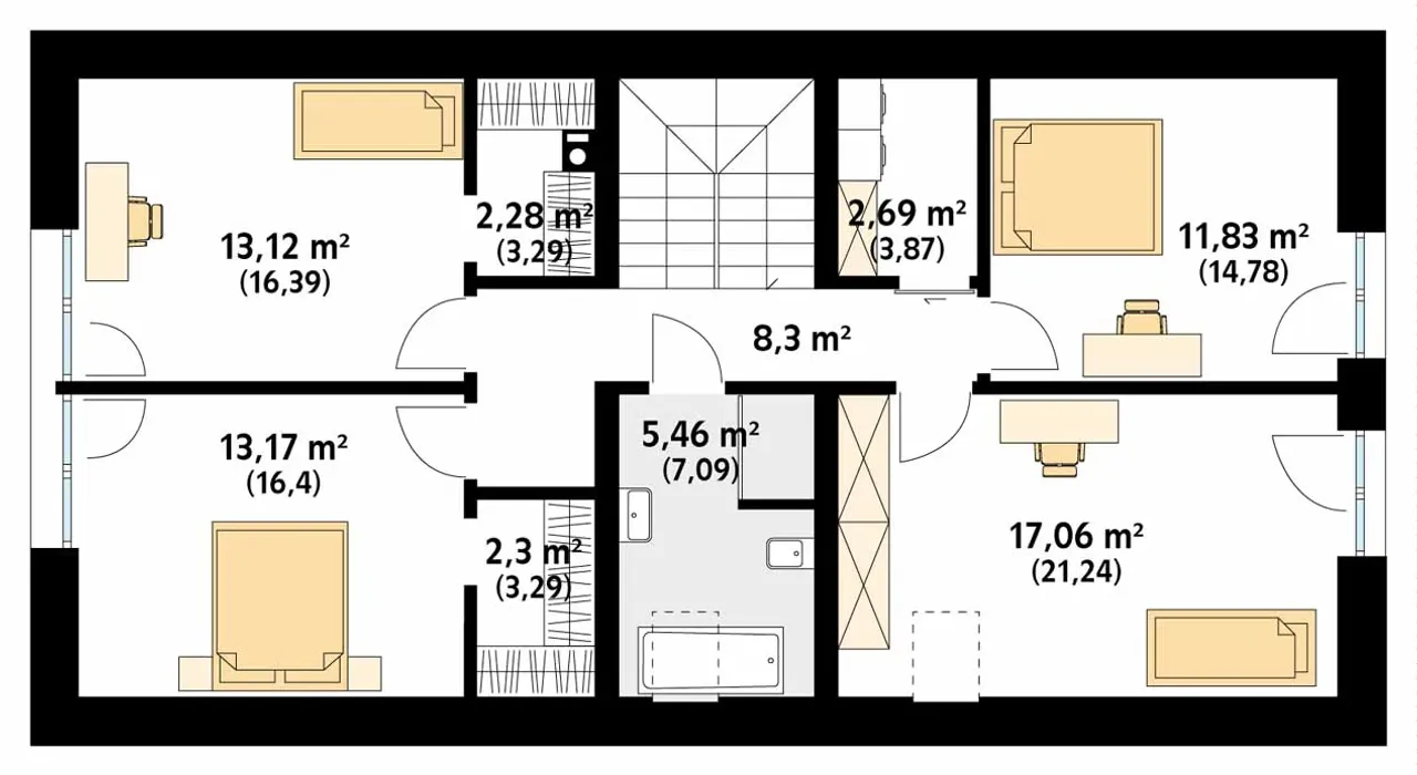
1. Korytarz / komunikacja | 8,30 m² |
2. łazienka | 5,46 (7,09) m² |
3. Garderoba | 2,28 (3,29) m² |
4. Sypialnia | 13,12 (16,39) m² |
5. Sypialnia | 13,17 (16,40) m² |
6. Garderoba | 2,30 (3,29) m² |
7. Pralnia | 2,69 (3,87) m² |
8. Sypialnia | 11,83 (14,78) m² |
9. Sypialnia | 17,06 (21,24) m² |
Wypełnij formularz i otrzymaj rysunki w pdf z dokładnymi wymiarami budynku i pomieszczeń (długość, szerokość, wysokość) dla projektu Duo
Pow. użytkowa 158.89 m² |
Ilość pokoi 6 |
Powierzchnia zabudowy 160.41 m² |
Kondygnacje parterowy+poddasze |
Garaż 2 stanowiska |
Technologia murowany |
Szerokość działki 24.5 m |
Obiekt dom |
Typ domu jednorodzinny całoroczny |
Kubatura 541.4 m³ |
Rodzaj garażu z przodu |
Kalenica prostopadła do drogi |
Powierzchnia dachu 180.76 m² |
Rodzaj dachu dwuspadowy |
Długość działki 20 m |
Funkcje dodatkowe z pralnią |
Wysokość budynku 8.85 m |
Bryła budynku plan litery L |
Styl budynku nowoczesny |
Liczba łazieniek 2 |
Szerokość budynku 16.05 m |
Kominek kominek opcjonalnie |
Kąt nachylenia dachu 45 ° |
Długość budynku 11 m |
Piwnica bez podpiwniczenia |
Strop żelbetowy |
Koszty budowy 400-450 tys., tylko z kosztorysem |
Pow. użytkowa 158.89 m² |
Powierzchnia zabudowy 160.41 m² |
Garaż 2 stanowiska |
Szerokość działki 24.5 m |
Typ domu jednorodzinny całoroczny |
Rodzaj garażu z przodu |
Powierzchnia dachu 180.76 m² |
Długość działki 20 m |
Wysokość budynku 8.85 m |
Styl budynku nowoczesny |
Szerokość budynku 16.05 m |
Kąt nachylenia dachu 45 ° |
Piwnica bez podpiwniczenia |
Koszty budowy 400-450 tys., tylko z kosztorysem |
Ilość pokoi 6 |
Kondygnacje parterowy+poddasze |
Technologia murowany |
Obiekt dom |
Kubatura 541.4 m³ |
Kalenica prostopadła do drogi |
Rodzaj dachu dwuspadowy |
Funkcje dodatkowe z pralnią |
Bryła budynku plan litery L |
Liczba łazieniek 2 |
Kominek kominek opcjonalnie |
Długość budynku 11 m |
Strop żelbetowy |
Kupując projekt w technologii murowanej powinieneś budować dom murowany. Zupełna zmiana technologii na szkieletową wymaga przeprojektowania całego budynku ( zmieniają się obciążenia, fundamenty, konstrukcja dachu). Wydamy zgodę na takie przeprojektowanie jednak wiążę się to z dużymi kosztami. Istnieją firmy wykonawcze, które podejmują się zmiany technologii budowy bezpłatnie przy skorzystaniu z ich usług wykonawczych. Zdarza się, że pracownia architektoniczna przygotowuje warianty konkretnego projektu przewidując także inne technologie. Prosimy o sprawdzenie czy istnieje poszukiwana wersja projektu, w zakładce - warianty projektu.
Zwężenie/poszerzenie budynku* to nic innego jak zmiana w projekcie. Istnieje możliwość wprowadzenia takich zmian, we własnym zakresie (podczas adaptacji). *zwężenie/poszerzenie budynku nie powinno stanowić problemu w przypadku domów o dachu dwuspadowym jeśli wiąże się to z wydłużeniem/skróceniem kalenicy dachu.
Poznaj praktyczne porady ekspertów, które ułatwią Ci każdy etap budowy i od wyboru wymarzonego domu po jego wykończenie. Zyskaj pewność, że podejmujesz najlepsze decyzje dzięki sprawdzonym wskazówkom od specjalistów z planz.pl
Wycena szacunkowa, w kwotach netto, nie zawiera instalacji.
bezpłatnie (0zł)
przelew zwykły / PayNow
przy odbiorze
3-5 dni roboczych (jeśli projekt nie jest koncepcją)
Wybierz wygodny dla Ciebie czas kontaktu z naszym Doradcą Technicznym.