Dom z widokiem 3



1. Sień | 4,00 m² |
2. Holl | 15,99 m² |
3. Spiżarnia | 1,37 m² |
4. Kuchnia | 12,73 m² |
5. Salon + jadalnia | 46,88 m² |
6. Pokój | 11,78 m² |
7. łazienka | 4,08 m² |
8. Garderoba | 3,00 m² |
9. Kotłownia | 7,54 m² |
10. Garaż | 44,74 m² |
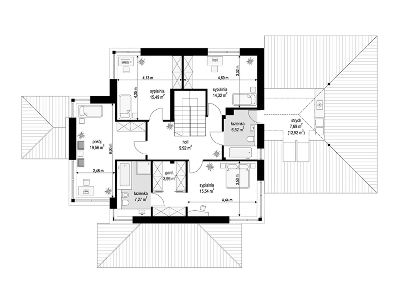
1. Holl | 9,92 m² |
2. Sypialnia | 15,54 m² |
3. Garderoba | 3,99 m² |
4. łazienka | 7,27 m² |
5. Pokój | 19,56 m² |
6. Sypialnia | 15,49 m² |
7. Sypialnia | 14,32 m² |
8. łazienka | 6,52 m² |
9. Strych | 7,69 (12,92) m² |
Wypełnij formularz i otrzymaj rysunki w pdf z dokładnymi wymiarami budynku i pomieszczeń (długość, szerokość, wysokość) dla projektu Dom z Widokiem 3 wariant C
Ilość pokoi 6 |
Pow. użytkowa 202.97 m² |
Kondygnacje piętrowy |
Garaż 2 stanowiska |
Technologia murowany |
Szerokość działki 27.58 m |
Obiekt dom |
Typ domu jednorodzinny całoroczny |
Wysokość budynku 8.82 m |
Długość działki 21.19 m |
Styl budynku wille i rezydencje |
Liczba łazieniek 3 |
Szerokość budynku 21.58 m |
Kominek kominek w projekcie |
Kąt nachylenia dachu 25 ° |
Strop żelbetowy |
Długość budynku 13.19 m |
Rodzaj garażu przyklejony |
Kotłownia duża kotłownia |
Kalenica prostopadła do drogi |
Kubatura 1155.82 m³ |
Rodzaj dachu wielospadowy |
Piwnica bez podpiwniczenia |
Powierzchnia dachu 315.28 m² |
Przechowywanie w kuchni spiżarnia |
Funkcje dodatkowe ze strychem |
Koszty budowy 500-550 tys., tylko z kosztorysem |
Ilość pokoi 6 |
Kondygnacje piętrowy |
Technologia murowany |
Obiekt dom |
Wysokość budynku 8.82 m |
Styl budynku wille i rezydencje |
Szerokość budynku 21.58 m |
Kąt nachylenia dachu 25 ° |
Długość budynku 13.19 m |
Kotłownia duża kotłownia |
Kubatura 1155.82 m³ |
Piwnica bez podpiwniczenia |
Przechowywanie w kuchni spiżarnia |
Koszty budowy 500-550 tys., tylko z kosztorysem |
Pow. użytkowa 202.97 m² |
Garaż 2 stanowiska |
Szerokość działki 27.58 m |
Typ domu jednorodzinny całoroczny |
Długość działki 21.19 m |
Liczba łazieniek 3 |
Kominek kominek w projekcie |
Strop żelbetowy |
Rodzaj garażu przyklejony |
Kalenica prostopadła do drogi |
Rodzaj dachu wielospadowy |
Powierzchnia dachu 315.28 m² |
Funkcje dodatkowe ze strychem |
Szukasz nowoczesnego projektu domu jednorodzinnego, który łączy funkcjonalność willi z reprezentacyjną architekturą? Poznaj projekt domu Dom z Widokiem 3 wariant C, zaprojektowany z myślą o wymagających inwestorach ceniących przestrzeń, komfort użytkowania i wyjątkowy design. To nie tylko dom - to solidnie przemyślana rezydencja, którą dopasujesz do swoich potrzeb.
Projekt dedykowany jest rodzinom poszukującym energooszczędnych rozwiązań, przestronnych pomieszczeń oraz dużego garażu na dwa auta. Zamieszkaj stylowo, korzystaj z praktycznych funkcji i ciesz się nowatorską formą swojego domu!
Projekt domu Dom z Widokiem 3 wariant C to stylowa willa piętrowa, wyróżniająca się prostopadłą do drogi kalenicą i efektownym wielospadowym dachem pokrytym ceramiczną dachówką. Całoroczna, murowana konstrukcja na żelbetowym monolitycznym stropie gwarantuje wysoką trwałość i bezpieczeństwo na lata. Fundamenty wykonane z betonowych ław i ścian z bloczków to stabilna podstawa pod dom rodzinny, który stanie się wizytówką inwestycji.
W rezydencji znajduje się aż 6 przestronnych pokoi, które można wykorzystać na sypialnie, gabinety czy pokoje dla gości. Praktyczna spiżarnia pozwala na wygodne przechowywanie zapasów i codziennych produktów spożywczych. Atutem tego projektu domu jest duża kotłownia, która pozwala na zastosowanie wydajnego kotła gazowego c.o. oraz wentylacji mechaniczno-nawiewno-wywiewnej. Bez podpiwniczenia - prostsze i szybsze prace budowlane.
Dodatkowym atutem jest strych do zagospodarowania według własnych potrzeb - zyskasz miejsce na domową biblioteczkę, siłownię lub pojemny schowek. W salonie przewidziano projekt kominka, który dodaje wnętrzu wyjątkowej atmosfery, szczególnie w długie zimowe wieczory. Dom doskonale wpisuje się w styl willi i rezydencji, zachwycając zarówno funkcjonalnością, jak i wyglądem elewacji wykończonej tynkiem cienkowarstwowym na styropianie.
Zainwestuj w projekt Dom z Widokiem 3 wariant C i stwórz dom, do którego chętnie będziesz wracać każdego dnia. Zamów projekt już dziś i wykorzystaj potencjał nowoczesnej architektury w swoim stylu!
Kupując projekt w technologii murowanej powinieneś budować dom murowany. Zupełna zmiana technologii na szkieletową wymaga przeprojektowania całego budynku ( zmieniają się obciążenia, fundamenty, konstrukcja dachu). Wydamy zgodę na takie przeprojektowanie jednak wiążę się to z dużymi kosztami. Istnieją firmy wykonawcze, które podejmują się zmiany technologii budowy bezpłatnie przy skorzystaniu z ich usług wykonawczych. Zdarza się, że pracownia architektoniczna przygotowuje warianty konkretnego projektu przewidując także inne technologie. Prosimy o sprawdzenie czy istnieje poszukiwana wersja projektu, w zakładce - warianty projektu.
Zwężenie/poszerzenie budynku* to nic innego jak zmiana w projekcie. Istnieje możliwość wprowadzenia takich zmian, we własnym zakresie (podczas adaptacji). *zwężenie/poszerzenie budynku nie powinno stanowić problemu w przypadku domów o dachu dwuspadowym jeśli wiąże się to z wydłużeniem/skróceniem kalenicy dachu.
Poznaj praktyczne porady ekspertów, które ułatwią Ci każdy etap budowy i od wyboru wymarzonego domu po jego wykończenie. Zyskaj pewność, że podejmujesz najlepsze decyzje dzięki sprawdzonym wskazówkom od specjalistów z planz.pl
Wycena szacunkowa, w kwotach netto, nie zawiera instalacji.
bezpłatnie (0zł)
przelew zwykły / PayNow
przy odbiorze
3-10 dni roboczych
Wspaniały koncept architektoniczny, idealny dla osób ceniących przestrzeń i nowoczesny design. Doskonale wpisze się w każdą okolicę.
Wybierz wygodny dla Ciebie czas kontaktu z naszym Doradcą Technicznym.