Dom przy Cyprysowej 12



Zawartość projektu
3 egzemplarze projektu archtektoniczno budowlanego + 3 egzemplarze projektu technicznego.
1. Hall + schody | 8,47 (8,47) m² |
2. Pokój | 19,75 (26,84) m² |
3. łazienka | 3,14 (4,93) m² |
4. łazienka | 8,29 (10,91) m² |
5. Pokój | 12,68 (15,30) m² |
6. Pokój | 13,07 (15,69) m² |
7. Pokój | 10,18 (12,81) m² |
1. Wiatrołap | 3,24 m² |
2. Hall | 3,89 m² |
3. Spiżarnia | 0,93 m² |
4. Kuchnia | 10,00 m² |
5. Pokój dzienny | 22,97 m² |
6. Pokój | 8,51 m² |
7. Pralnia | 1,89 (2,53) m² |
8. Garaż | 32,72 m² |
9. Kotłownia | 6,18 m² |
10. łazienka | 2,37 m² |
Wypełnij formularz i otrzymaj rysunki w pdf z dokładnymi wymiarami budynku i pomieszczeń (długość, szerokość, wysokość) dla projektu Dom przy Cyprysowej 36 D
Ilość pokoi 6 |
Pow. użytkowa 127.49 m² |
Powierzchnia zabudowy 123.4 m² |
Kondygnacje parterowy+poddasze |
Garaż 2 stanowiska |
Technologia murowany |
Szerokość działki 23.05 m |
Obiekt dom |
Typ domu jednorodzinny całoroczny |
Szerokość budynku 15.05 m |
Taras z tarasem |
Kalenica równoległa do drogi |
Długość budynku 9.1 m |
Rodzaj garażu przyklejony |
Piwnica bez podpiwniczenia |
Funkcje dodatkowe z pralnią |
Kubatura 695.37 m³ |
Rodzaj dachu dwuspadowy |
Powierzchnia dachu 221.95 m² |
Przechowywanie w kuchni spiżarnia |
Długość działki 17.1 m |
Bryła budynku prosta bryła |
Liczba łazieniek 3 |
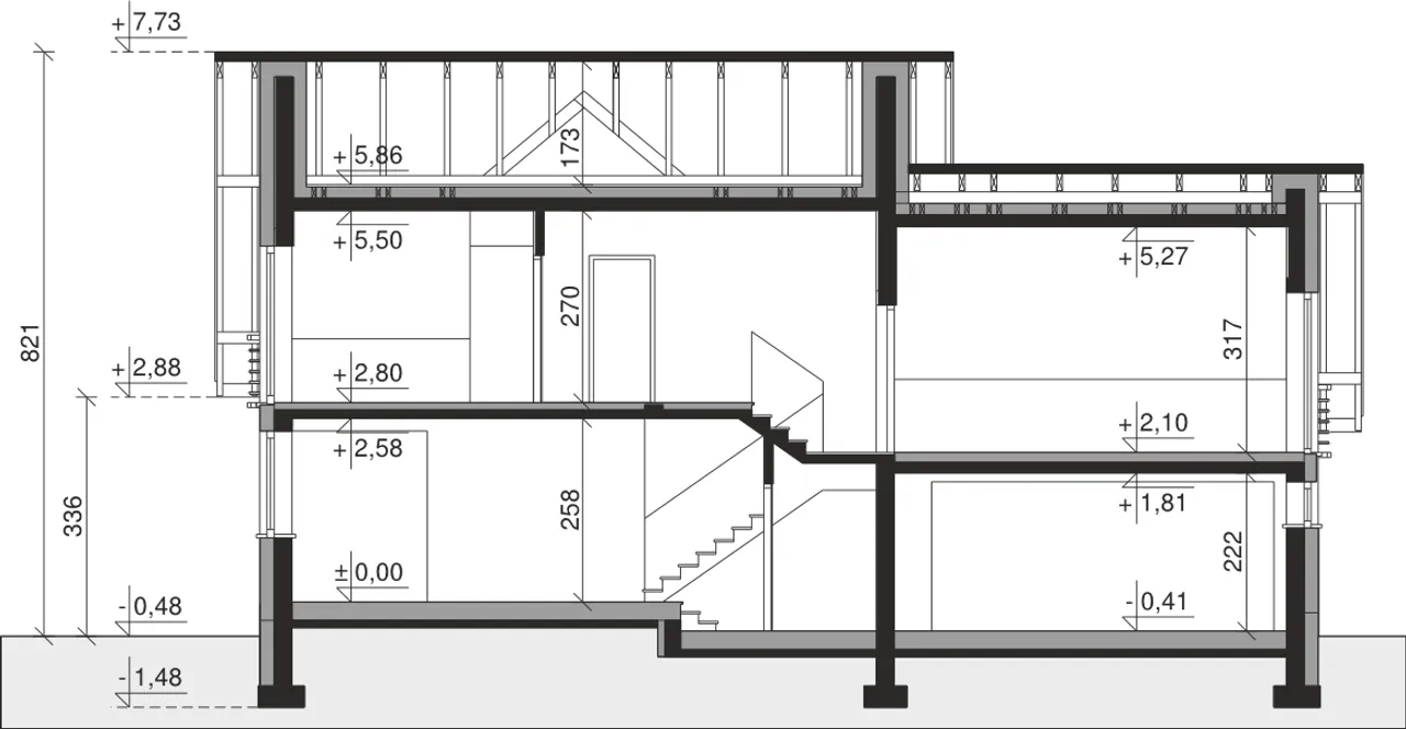
Wysokość budynku 8.21 m |
Styl budynku nowoczesny |
Kominek kominek w projekcie |
Kotłownia duża kotłownia |
Kąt nachylenia dachu 40 ° |
Strop żelbetowy |
Koszty budowy 300-350 tys., tylko z kosztorysem |
Ilość pokoi 6 |
Powierzchnia zabudowy 123.4 m² |
Garaż 2 stanowiska |
Szerokość działki 23.05 m |
Typ domu jednorodzinny całoroczny |
Taras z tarasem |
Długość budynku 9.1 m |
Piwnica bez podpiwniczenia |
Kubatura 695.37 m³ |
Powierzchnia dachu 221.95 m² |
Długość działki 17.1 m |
Liczba łazieniek 3 |
Styl budynku nowoczesny |
Kotłownia duża kotłownia |
Strop żelbetowy |
Pow. użytkowa 127.49 m² |
Kondygnacje parterowy+poddasze |
Technologia murowany |
Obiekt dom |
Szerokość budynku 15.05 m |
Kalenica równoległa do drogi |
Rodzaj garażu przyklejony |
Funkcje dodatkowe z pralnią |
Rodzaj dachu dwuspadowy |
Przechowywanie w kuchni spiżarnia |
Bryła budynku prosta bryła |
Wysokość budynku 8.21 m |
Kominek kominek w projekcie |
Kąt nachylenia dachu 40 ° |
Koszty budowy 300-350 tys., tylko z kosztorysem |
Przedstawiamy gotowy projekt domu Dom przy Cyprysowej 36 D. Jest to budynek murowany. Przykrywać go będzie dach dwuspadowy. Dom będzie ogrzewany na gaz. Styl budynku według projektu Dom przy Cyprysowej 36 D ma charakter nowoczesny.
Kupując projekt w technologii murowanej powinieneś budować dom murowany. Zupełna zmiana technologii na szkieletową wymaga przeprojektowania całego budynku ( zmieniają się obciążenia, fundamenty, konstrukcja dachu). Wydamy zgodę na takie przeprojektowanie jednak wiążę się to z dużymi kosztami. Istnieją firmy wykonawcze, które podejmują się zmiany technologii budowy bezpłatnie przy skorzystaniu z ich usług wykonawczych. Zdarza się, że pracownia architektoniczna przygotowuje warianty konkretnego projektu przewidując także inne technologie. Prosimy o sprawdzenie czy istnieje poszukiwana wersja projektu, w zakładce - warianty projektu.
Zwężenie/poszerzenie budynku* to nic innego jak zmiana w projekcie. Istnieje możliwość wprowadzenia takich zmian, we własnym zakresie (podczas adaptacji). *zwężenie/poszerzenie budynku nie powinno stanowić problemu w przypadku domów o dachu dwuspadowym jeśli wiąże się to z wydłużeniem/skróceniem kalenicy dachu.
Poznaj praktyczne porady ekspertów, które ułatwią Ci każdy etap budowy i od wyboru wymarzonego domu po jego wykończenie. Zyskaj pewność, że podejmujesz najlepsze decyzje dzięki sprawdzonym wskazówkom od specjalistów z planz.pl
Wycena szacunkowa, w kwotach netto, nie zawiera instalacji.
bezpłatnie (0zł)
przelew zwykły / PayNow
przy odbiorze
2-7 dni roboczych
Wybierz wygodny dla Ciebie czas kontaktu z naszym Doradcą Technicznym.