Dom przy Alabastrowej 21



Zawartość projektu
3 egzemplarze projektu archtektoniczno budowlanego + 3 egzemplarze projektu technicznego.
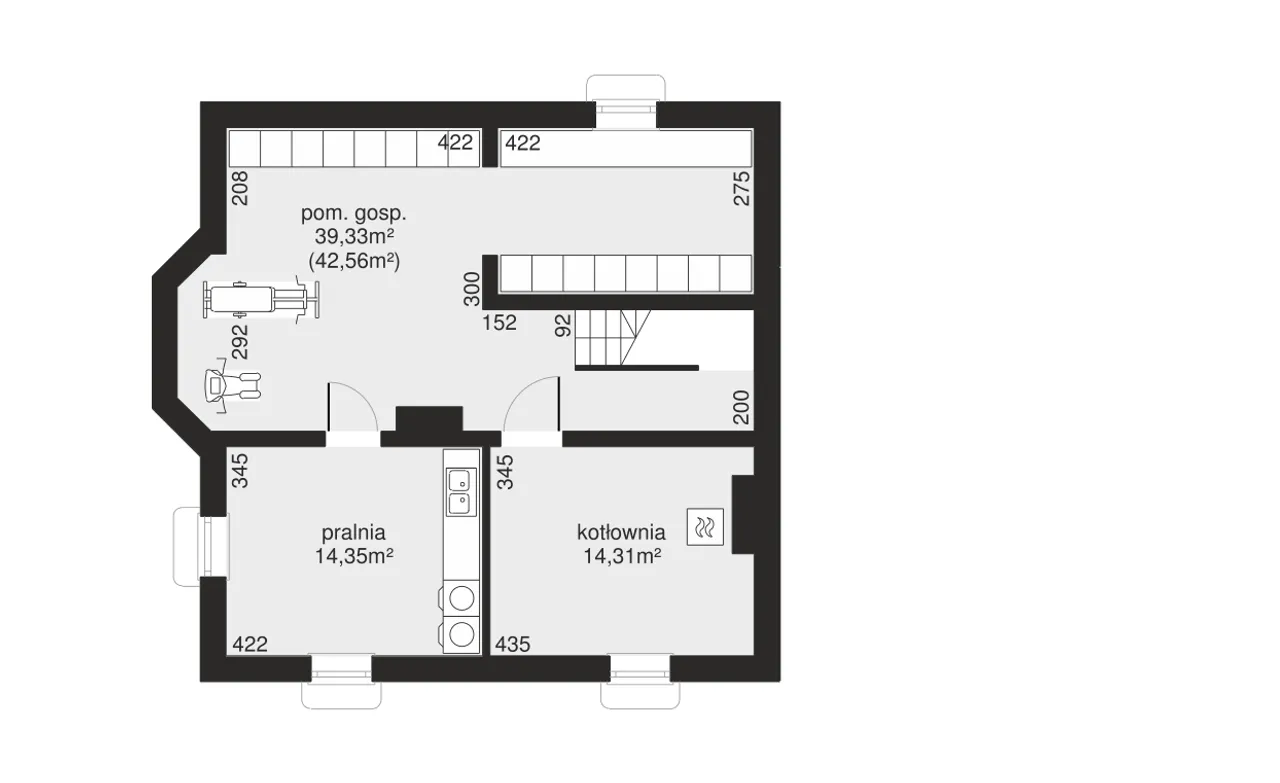
1. Wiatrołap | 3,10 m² |
2. Hall | 4,53 m² |
3. Spiżarnia | 1,11 m² |
4. Kuchnia | 11,38 m² |
5. Pokój dzienny | 26,03 m² |
6. Pokój | 12,31 m² |
7. Schody | 2,72 m² |
8. Korytarz | 1,43 m² |
9. łazienka | 4,55 m² |
10. Garderoba | 4,70 m² |
11. Garaż | 33,33 m² |
1. Hall + schody | 9,66 (9,66) m² |
2. Pokój | 16,86 (21,96) m² |
3. Garderoba | 2,43 (4,71) m² |
4. łazienka | 2,86 (5,53) m² |
5. łazienka | 10,95 (12,80) m² |
6. Pokój | 13,21 (16,97) m² |
7. Pokój | 16,01 (18,19) m² |
8. Pokój | 10,61 (13,62) m² |
Wypełnij formularz i otrzymaj rysunki w pdf z dokładnymi wymiarami budynku i pomieszczeń (długość, szerokość, wysokość) dla projektu Dom przy Cyprysowej 15 P
Ilość pokoi 6 |
Pow. użytkowa 150.3 m² |
Powierzchnia zabudowy 135.8 m² |
Kondygnacje parterowy+poddasze |
Garaż 2 stanowiska |
Technologia murowany |
Szerokość działki 24.31 m |
Obiekt dom |
Typ domu jednorodzinny całoroczny |
Szerokość budynku 16.31 m |
Taras z tarasem |
Kalenica prostopadła do drogi |
Długość budynku 9.6 m |
Rodzaj garażu przyklejony |
Piwnica z podpiwniczeniem |
Funkcje dodatkowe z pralnią |
Kubatura 969.97 m³ |
Rodzaj dachu dwuspadowy |
Powierzchnia dachu 239.54 m² |
Przechowywanie w kuchni spiżarnia |
Długość działki 17.6 m |
Bryła budynku prosta bryła |
Liczba łazieniek 3 |
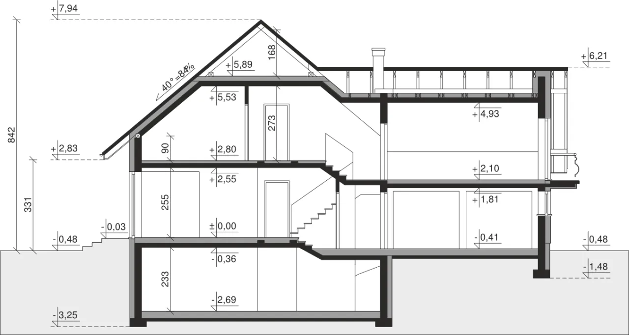
Wysokość budynku 8.42 m |
Styl budynku tradycyjny |
Kominek kominek w projekcie |
Kotłownia duża kotłownia |
Kąt nachylenia dachu 40 ° |
Strop żelbetowy |
Koszty budowy 500-550 tys., tylko z kosztorysem |
Ilość pokoi 6 |
Powierzchnia zabudowy 135.8 m² |
Garaż 2 stanowiska |
Szerokość działki 24.31 m |
Typ domu jednorodzinny całoroczny |
Taras z tarasem |
Długość budynku 9.6 m |
Piwnica z podpiwniczeniem |
Kubatura 969.97 m³ |
Powierzchnia dachu 239.54 m² |
Długość działki 17.6 m |
Liczba łazieniek 3 |
Styl budynku tradycyjny |
Kotłownia duża kotłownia |
Strop żelbetowy |
Pow. użytkowa 150.3 m² |
Kondygnacje parterowy+poddasze |
Technologia murowany |
Obiekt dom |
Szerokość budynku 16.31 m |
Kalenica prostopadła do drogi |
Rodzaj garażu przyklejony |
Funkcje dodatkowe z pralnią |
Rodzaj dachu dwuspadowy |
Przechowywanie w kuchni spiżarnia |
Bryła budynku prosta bryła |
Wysokość budynku 8.42 m |
Kominek kominek w projekcie |
Kąt nachylenia dachu 40 ° |
Koszty budowy 500-550 tys., tylko z kosztorysem |
Kupując projekt w technologii murowanej powinieneś budować dom murowany. Zupełna zmiana technologii na szkieletową wymaga przeprojektowania całego budynku ( zmieniają się obciążenia, fundamenty, konstrukcja dachu). Wydamy zgodę na takie przeprojektowanie jednak wiążę się to z dużymi kosztami. Istnieją firmy wykonawcze, które podejmują się zmiany technologii budowy bezpłatnie przy skorzystaniu z ich usług wykonawczych. Zdarza się, że pracownia architektoniczna przygotowuje warianty konkretnego projektu przewidując także inne technologie. Prosimy o sprawdzenie czy istnieje poszukiwana wersja projektu, w zakładce - warianty projektu.
Zwężenie/poszerzenie budynku* to nic innego jak zmiana w projekcie. Istnieje możliwość wprowadzenia takich zmian, we własnym zakresie (podczas adaptacji). *zwężenie/poszerzenie budynku nie powinno stanowić problemu w przypadku domów o dachu dwuspadowym jeśli wiąże się to z wydłużeniem/skróceniem kalenicy dachu.
Poznaj praktyczne porady ekspertów, które ułatwią Ci każdy etap budowy i od wyboru wymarzonego domu po jego wykończenie. Zyskaj pewność, że podejmujesz najlepsze decyzje dzięki sprawdzonym wskazówkom od specjalistów z planz.pl
Wycena szacunkowa, w kwotach netto, nie zawiera instalacji.
bezpłatnie (0zł)
przelew zwykły / PayNow
przy odbiorze
2-7 dni roboczych
Wybierz wygodny dla Ciebie czas kontaktu z naszym Doradcą Technicznym.