Dom Parterowy 21



Wypełnij formularz i otrzymaj rysunki w pdf z dokładnymi wymiarami budynku i pomieszczeń (długość, szerokość, wysokość) dla projektu Dom Parterowy 21S
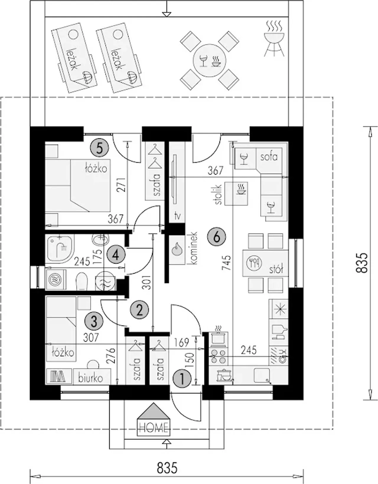
Pow. użytkowa 51.9 m² |
Ilość pokoi 3 |
Powierzchnia zabudowy 69.7 m² |
Kondygnacje parterowy |
Garaż bez garażu |
Technologia szkielet/drewniany |
Szerokość działki 16.35 m |
Obiekt dom |
Typ domu jednorodzinny całoroczny |
Wysokość budynku 6.11 m |
Kalenica bez znaczenia |
Styl budynku nowoczesny |
Liczba łazieniek 1 |
Szerokość budynku 8.35 m |
Kominek kominek w projekcie |
Kąt nachylenia dachu 30 ° |
Długość budynku 8.35 m |
Rodzaj dachu wielospadowy |
Piwnica bez podpiwniczenia |
Kubatura 307.1 m³ |
Powierzchnia dachu 119 m² |
Długość działki 16.35 m |
Koszty budowy tylko z kosztorysem, 100-150 tys. |
Pow. użytkowa 51.9 m² |
Powierzchnia zabudowy 69.7 m² |
Garaż bez garażu |
Szerokość działki 16.35 m |
Typ domu jednorodzinny całoroczny |
Kalenica bez znaczenia |
Liczba łazieniek 1 |
Kominek kominek w projekcie |
Długość budynku 8.35 m |
Piwnica bez podpiwniczenia |
Powierzchnia dachu 119 m² |
Koszty budowy tylko z kosztorysem, 100-150 tys. |
Ilość pokoi 3 |
Kondygnacje parterowy |
Technologia szkielet/drewniany |
Obiekt dom |
Wysokość budynku 6.11 m |
Styl budynku nowoczesny |
Szerokość budynku 8.35 m |
Kąt nachylenia dachu 30 ° |
Rodzaj dachu wielospadowy |
Kubatura 307.1 m³ |
Długość działki 16.35 m |
Kupując projekt w technologii murowanej powinieneś budować dom murowany. Zupełna zmiana technologii na szkieletową wymaga przeprojektowania całego budynku ( zmieniają się obciążenia, fundamenty, konstrukcja dachu). Wydamy zgodę na takie przeprojektowanie jednak wiążę się to z dużymi kosztami. Istnieją firmy wykonawcze, które podejmują się zmiany technologii budowy bezpłatnie przy skorzystaniu z ich usług wykonawczych. Zdarza się, że pracownia architektoniczna przygotowuje warianty konkretnego projektu przewidując także inne technologie. Prosimy o sprawdzenie czy istnieje poszukiwana wersja projektu, w zakładce - warianty projektu.
Zwężenie/poszerzenie budynku* to nic innego jak zmiana w projekcie. Istnieje możliwość wprowadzenia takich zmian, we własnym zakresie (podczas adaptacji). *zwężenie/poszerzenie budynku nie powinno stanowić problemu w przypadku domów o dachu dwuspadowym jeśli wiąże się to z wydłużeniem/skróceniem kalenicy dachu.
Poznaj praktyczne porady ekspertów, które ułatwią Ci każdy etap budowy i od wyboru wymarzonego domu po jego wykończenie. Zyskaj pewność, że podejmujesz najlepsze decyzje dzięki sprawdzonym wskazówkom od specjalistów z planz.pl
Wycena szacunkowa, w kwotach netto, nie zawiera instalacji.
bezpłatnie (0zł)
przelew zwykły / PayNow
przy odbiorze
3-5 dni roboczych (jeśli projekt nie jest koncepcją)
Projekt Dom Parterowy 21S to interesująca propozycja dla osób poszukujących przytulnego miejsca do życia z rodziną. Stylowe wykończenia oraz funkcjonalny układ pomieszczeń sprawiają, że każdy może poczuć się tam swobodnie. Duże przeszklenia wpuszczają do wnętrza dużo naturalnego światła, co podnosi jego atrakcyjność. Bryła domu jest nowoczesna, a jednocześnie zachowuje klasyczny urok, który wpasuje się w różnorodne otoczenia. Projekt ten może spełnić oczekiwania nawet najbardziej wymagających osób, ceniących sobie przemyślane rozwiązania architektoniczne.
Wybierz wygodny dla Ciebie czas kontaktu z naszym Doradcą Technicznym.