Dobra rada 1 G1 - A110G1+AR1



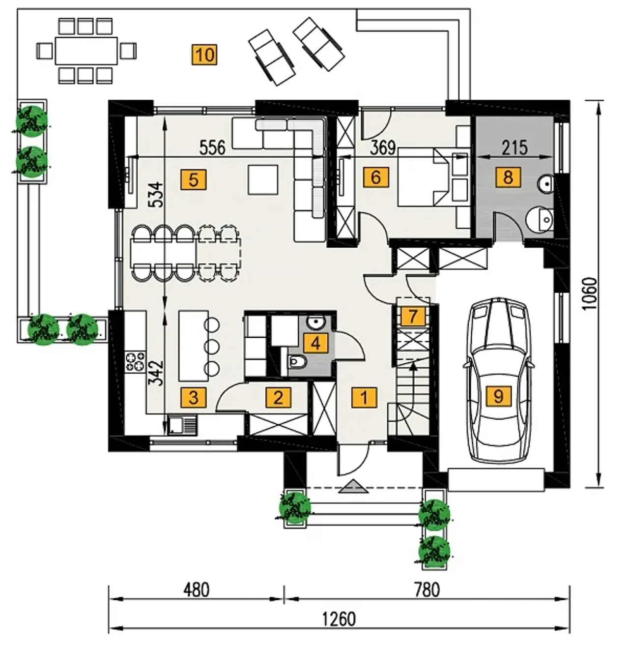
1. Hol | 8,60 (8,60) m² |
2. Spiżarnia | 2,30 (2,30) m² |
3. Kuchnia | 12,20 (12,20) m² |
4. łazienka | 2,50 (2,50) m² |
5. Pokój dzienny | 29,60 (29,60) m² |
6. Sypialnia | 12,20 (12,20) m² |
7. Schowek | 2,20 (3,70) m² |
8. Kotłownia | 7,10 (7,10) m² |
9. Garaż | 19,00 (19,00) m² |
10. Taras | 38,70 m² |
Wypełnij formularz i otrzymaj rysunki w pdf z dokładnymi wymiarami budynku i pomieszczeń (długość, szerokość, wysokość) dla projektu Dobra rada G1 - A110G1
Ilość pokoi 6 |
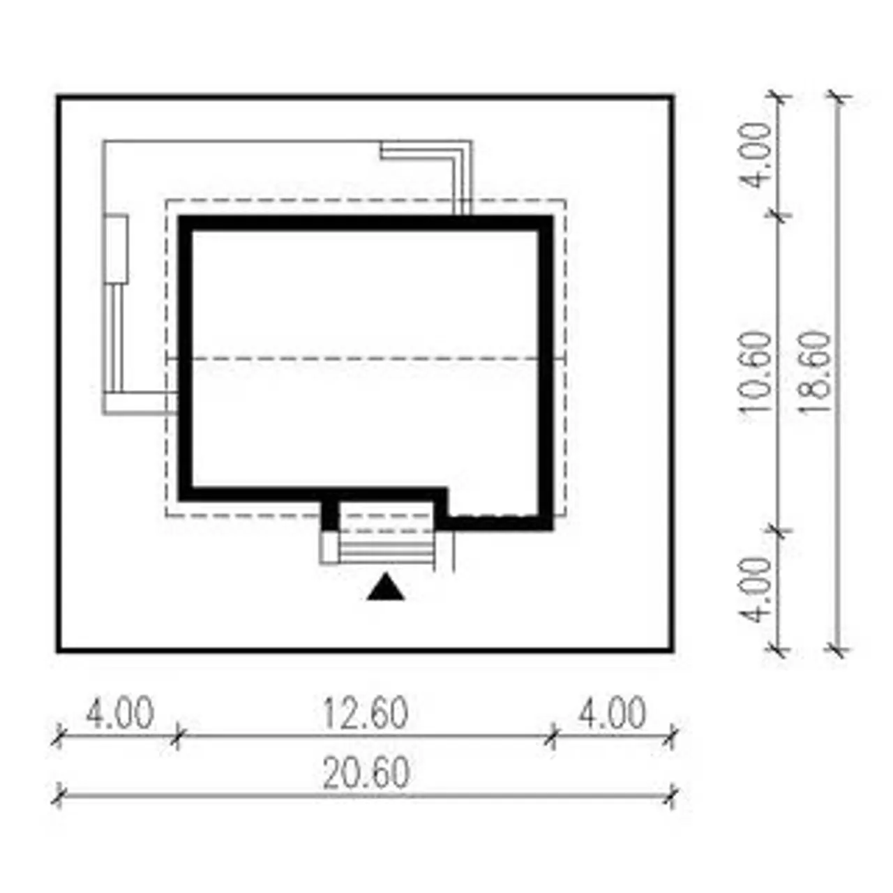
Pow. użytkowa 138.7 m² |
Powierzchnia zabudowy 128.8 m² |
Kondygnacje parterowy+poddasze |
Garaż 1 stanowisko |
Technologia murowany |
Szerokość działki 20.6 m |
Obiekt dom |
Typ domu jednorodzinny całoroczny |
Kalenica równoległa do drogi |
Liczba łazieniek 2 |
Styl budynku nowoczesny |
Kubatura 780.9 m³ |
Kominek kominek opcjonalnie |
Piwnica bez podpiwniczenia |
Kąt nachylenia dachu 40 ° |
Rodzaj dachu dwuspadowy |
Długość działki 18.6 m |
Koszty budowy 300-350 tys., tylko z kosztorysem |
Ilość pokoi 6 |
Powierzchnia zabudowy 128.8 m² |
Garaż 1 stanowisko |
Szerokość działki 20.6 m |
Typ domu jednorodzinny całoroczny |
Liczba łazieniek 2 |
Kubatura 780.9 m³ |
Piwnica bez podpiwniczenia |
Rodzaj dachu dwuspadowy |
Koszty budowy 300-350 tys., tylko z kosztorysem |
Pow. użytkowa 138.7 m² |
Kondygnacje parterowy+poddasze |
Technologia murowany |
Obiekt dom |
Kalenica równoległa do drogi |
Styl budynku nowoczesny |
Kominek kominek opcjonalnie |
Kąt nachylenia dachu 40 ° |
Długość działki 18.6 m |
Kupując projekt w technologii murowanej powinieneś budować dom murowany. Zupełna zmiana technologii na szkieletową wymaga przeprojektowania całego budynku ( zmieniają się obciążenia, fundamenty, konstrukcja dachu). Wydamy zgodę na takie przeprojektowanie jednak wiążę się to z dużymi kosztami. Istnieją firmy wykonawcze, które podejmują się zmiany technologii budowy bezpłatnie przy skorzystaniu z ich usług wykonawczych. Zdarza się, że pracownia architektoniczna przygotowuje warianty konkretnego projektu przewidując także inne technologie. Prosimy o sprawdzenie czy istnieje poszukiwana wersja projektu, w zakładce - warianty projektu.
Zwężenie/poszerzenie budynku* to nic innego jak zmiana w projekcie. Istnieje możliwość wprowadzenia takich zmian, we własnym zakresie (podczas adaptacji). *zwężenie/poszerzenie budynku nie powinno stanowić problemu w przypadku domów o dachu dwuspadowym jeśli wiąże się to z wydłużeniem/skróceniem kalenicy dachu.
Poznaj praktyczne porady ekspertów, które ułatwią Ci każdy etap budowy i od wyboru wymarzonego domu po jego wykończenie. Zyskaj pewność, że podejmujesz najlepsze decyzje dzięki sprawdzonym wskazówkom od specjalistów z planz.pl
Wycena szacunkowa, w kwotach netto, nie zawiera instalacji.
bezpłatnie (0zł)
przelew zwykły / PayNow
przy odbiorze
3-5 dni roboczych (jeśli projekt nie wymaga aktualizacji)
"Prosty, a jednocześnie stylowy design, idealnie wpisujący się w otoczenie. Solidna konstrukcja i funkcjonalny układ pomieszczeń. Projekt domu Dobra Rada G1 to bez wątpienia inspirujące rozwiązanie dla każdego, kto marzy o własnym, wyjątkowym miejscu."
Wybierz wygodny dla Ciebie czas kontaktu z naszym Doradcą Technicznym.