22 299 20 00 (pn-nd 9.30 do 19.30)

Gotowy projekt domu Dana (ID: 23810)

4705 2025-12-23
Dana - 138.14m²
Projekt dostępny od ręki
Gwarantujemy najniższą cenę
4705 zł
(5000 zł brutto)
TANIEJ 295 zł do 19.12.2025
Najniższa cena z 30 dni przed obniżką: 4705 zł
4705 2025-12-23
W cenie projektu:
📣 GRATIS: WIERTARKA UDAROWA
  • Tablica + dziennik budowy
  • 16 projektów ogrodowych
  • Darmowa wysyłka (kurier, paczkomat, pobranie)
  • 30 dni na zwrot
  • Pozwolenie na zmiany z podpisem i pieczęcią autora
  • GRATIS: Wiertarka Udarowa
22 299 20 00 (pn-nd 9.30 do 19.30)

Rzuty gotowego projektu domu Dana

1. Wiatrołap 4,04 m²
2. Hol 7,43 m²
3. Salon + jadalnia 30,11 m²
4. Pokój 10,57 m²
5. Kuchnia 9,71 m²
6. łazienka 3,35 m²
7. Schody 1,76 m²
8. Kotłownia 5,45 m²
9. Garaż 17,89 m²
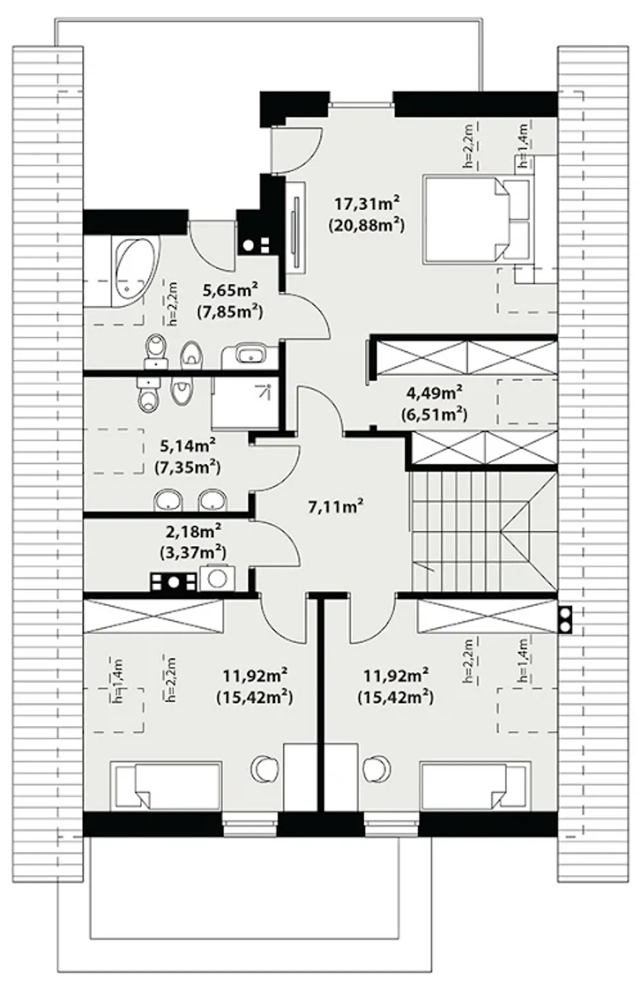
1. Przedpokój 7,11 m²
2. Sypialnia 17,31 (20,88) m²
3. łazienka 5,65 (7,85) m²
4. Garderoba 4,49 (6,51) m²
5. Pokój 11,92 (15,42) m²
6. Pokój 11,92 (15,42) m²
7. Pralnia 2,18 (3,37) m²
8. łazienka 5,14 (7,35) m²

Zapoznaj się ze szczegółami projektu - pobierz bezpłatne rysunki do: Dana

Wypełnij formularz i otrzymaj rysunki w pdf z dokładnymi wymiarami budynku i pomieszczeń (długość, szerokość, wysokość) dla projektu Dana

Parametry Techniczne gotowego projektu domu Dana

Ilość pokoi 5
Pow. użytkowa 138.14 m²
Powierzchnia zabudowy 125.25 m²
Kondygnacje parterowy+poddasze
Garaż 1 stanowisko
Technologia murowany
Szerokość działki 16.95 m
Obiekt dom
Typ domu jednorodzinny całoroczny
Długość działki 24.35 m
Ogrzewanie gaz, paliwo stałe
Wysokość budynku 8.67 m
Liczba łazieniek 3
Styl budynku nowoczesny
Kominek kominek w projekcie
Szerokość budynku 9.35 m
Taras z tarasem
Kąt nachylenia dachu 40 °
Strop żelbetowy
Długość budynku 15.35 m
Piwnica bez podpiwniczenia
Kalenica prostopadła do drogi
Kubatura 828 m³
Rodzaj garażu w bryle
Funkcje dodatkowe z pralnią
Powierzchnia dachu 213 m²
Rodzaj dachu dwuspadowy
Koszty budowy 300-350 tys., tylko z kosztorysem

Energia i ogrzewanie gotowego projektu domu Dana

Źródło ogrzewania:
gaz
paliwo stałe
wybierasz przy zakupie, wpisz swój wybór w komentarzu do zamówienia

Wnętrza domu Dana

Nasze prawdziwe opinie z Google

Opis projektu domu Dana

Przedstawiony gotowy projekt domu całorocznego Dana będzie domem parterowym z poddaszem użytkowym, z garażem jednostanowiskowym. W dokumentacji projektu przewidziano kominek. Dom Dana będzie mógł zostać wykonany w technologii tradycyjnej - murowanej. Autor proponuje jako podstawowe źródło ogrzewania gaz, z opcjonalną, alternatywną możliwością zastosowania pieca na paliwo stałe. Dana będzie domem niepodpiwniczonym, jeśli inwestor we własnym zakresie nie zleci doprojektowania piwnicy. Przewidziano tu dach dwuspadowy o kącie nachylenia 40 stopni. Na rzutach zaplanowano trzy łazienki. Projekt domu Dana prezentuje się bardzo ciekawie, jego nowoczesna elewacja i styl wykończenia, przykłują uwagę również bardzo wymagających inwestorów.

Technologia wykonania:

  • Dach: dachówka lub blachodachówka.
  • Elewacje: tynk, płytki elewacyjne, szalówka.
  • Strop: żelbetowy.
  • Ściany wewnętrzne: murowane.
  • Ściany zewnętrzne: dwuwarstwowe, pustak ceramiczny, docieplony styropianem.
  • Ogrzewanie: kocioł gazowy lub kocioł na paliwo stałe.

Częste pytania

Czy projekty z Planz.pl są kompletne?

Tak. Projekty dostępne na Planz.pl zawierają pełną dokumentację potrzebną do uzyskania pozwolenia na budowę i stanowią gwarancję sprawnej realizacji budowy.

Jesteśmy oficjalnym partnerem ponad 50 pracowni architektonicznych z całej Polski - dlatego każdy projekt pochodzi wyłącznie od autorów zrzeszonych w Izbie Architektów RP. 

Planz.pl to polska firma działającą na rynku od 15 lat. Mamy tysiące zadowolonych klientów, doskonałe opinie i oferujemy wsparcie również po zakupie, doradzamy, pomagamy w adaptacji i pozostajemy w kontakcie na każdym etapie inwestycji.

Dodatkowo do każdego projektu dodajemy tablicę informacyjną, dziennik budowy oraz 16 projektów elektronicznych drewnianej architektury ogrodowej. A dzięki naszej współpracy z producentami sprzętu elektrycznego, oferujemy możliwość otrzymania np. Wiertarki udarowej w formie atrakcyjnego gratisu.

Wybierając Planz.pl, otrzymujesz ten sam oryginalny projekt od autora, wzbogacony o realne dodatki, które ułatwiają rozpoczęcie budowy.

Czy mogę wprowadzić zmiany w projekcie?

Co zrobić gdy wybrany dom nie mieści się na działce?

Jakie zmiany można wprowadzić w projekcie?

Porady ekspertów

Poznaj praktyczne porady ekspertów, które ułatwią Ci każdy etap budowy i od wyboru wymarzonego domu po jego wykończenie. Zyskaj pewność, że podejmujesz najlepsze decyzje dzięki sprawdzonym wskazówkom od specjalistów z planz.pl

Co zawiera projekt

  • ✓ 3 x projekt architektoniczno-budowlany ➞ szczegóły
  • ✓ Projekty techniczne ➞ szczegóły
  • ✓ charakterystyka energetyczna (do projektów domów)
  • ✓ zgoda na zmiany w projekcie ➞ szczegóły
  • ✓ GRATIS: Wiertarka (do projektów w cenie od 3000 zł)
  • ✓ GRATIS: 16 projektów (drewutni, altany i wiaty)
  • ✓ GRATIS: tablica i dziennik budowy
  • ✓ GRATIS: przesyłka kurierska

Dodatki do projektu Dana

Dodatki możesz kupić razem z projektem lub dokupić po czasie

[Archetyp] Kosztorys (500 zł)

[Archetyp] Dodatkowy egzemplarz projektu (460 zł)

[Archetyp] Wentylacja mechaniczna z rekuperatorem (400 zł)

[Archetyp] Pompa ciepła + ogrzewanie podłogowe (400 zł)

[Archetyp] Ogrzewanie podłogowe (300 zł)

[Archetyp] Kominek z płaszczem wodnym (400 zł)

[Planz] Tablica budowlana (0 zł)

[Planz] Dziennik budowy (0 zł)

[Planz] Wiertarka udarowa (0 zł)

[Planz] Zgoda na zmiany w projekcie (0 zł)

[Planz] Projekty architektury ogrodowej (0 zł)

[Planz] Charakterystyka energetyczna, tylko dla domów całorocznych (0 zł)

Wysyłka i płatność za projekt Dana

Koszty wysyłki

bezpłatnie (0zł)

Formy płatności

przelew zwykły / PayNow
przy odbiorze

Czas oczekiwania

2-5 dni roboczych (jeśli projekt nie jest koncepcją)

Wersje gotowego projektu domu Dana

Podobne projekty do domu Dana

TANIEJ O 500 zł
3080 zł 2580 zł

Tymek AP garaż

powierzchnia 131.3 m²
technologia murowany
stanowisk w garażu 1 stanowisko
kondygnacja parterowy+poddasze
Zobacz projekt

Komentarze / pytania do projektu domu Dana

Maja

Projekt domu Dana Archetyp to połączenie nowoczesności z funkcjonalnością, idealny dla rodziny. Przemyślane rozmieszczenie pomieszczeń umożliwi komfortowe użytkowanie, a prosta bryła budynku nadaje mu elegancki wygląd. Osobisty podziw budzi przestronne wnętrze oraz niewątpliwy atut w postaci dodatkowego pomieszczenia gospodarczego, które zwiększa praktyczność tego rozwiązania.

Szacunkowy kosztorys dla projektu Dana

Stan surowy zamknięty 201500 zł
Stan surowy zamknięty
Stan deweloperski 320000 zł
Stan deweloperski

Wycena szacunkowa, w kwotach netto, nie zawiera instalacji.

PRACOWNIA: Archetyp