Bono 2



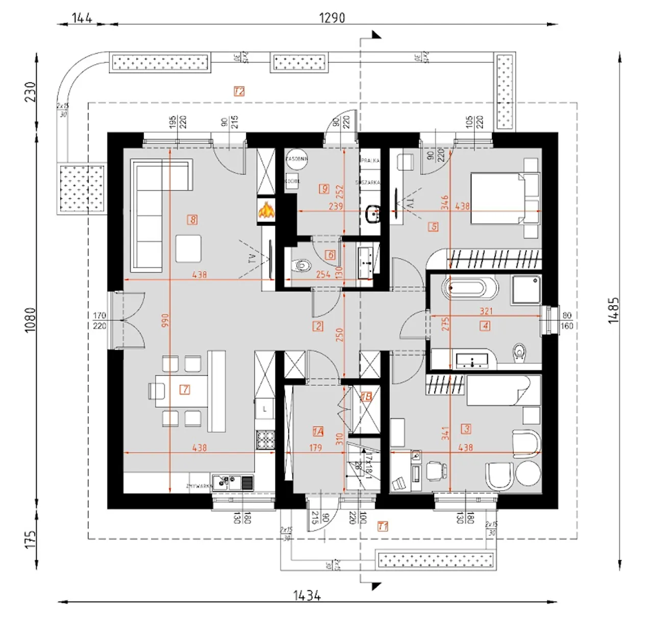
1. Przedsionek | 5,37 m² |
2. Schowek | 0,50 m² |
3. Hall | 9,38 m² |
4. Pokój | 15,29 m² |
5. łazienka | 8,67 m² |
6. Pokój | 15,63 m² |
7. Wc | 3,13 m² |
8. Kuchnia | 11,85 m² |
9. Salon/jadalnia | 30,37 m² |
10. Pom.techniczne | 6,36 m² |
11. Taras 1 | 8,71 m² |
12. Taras 2 | 25,53 m² |
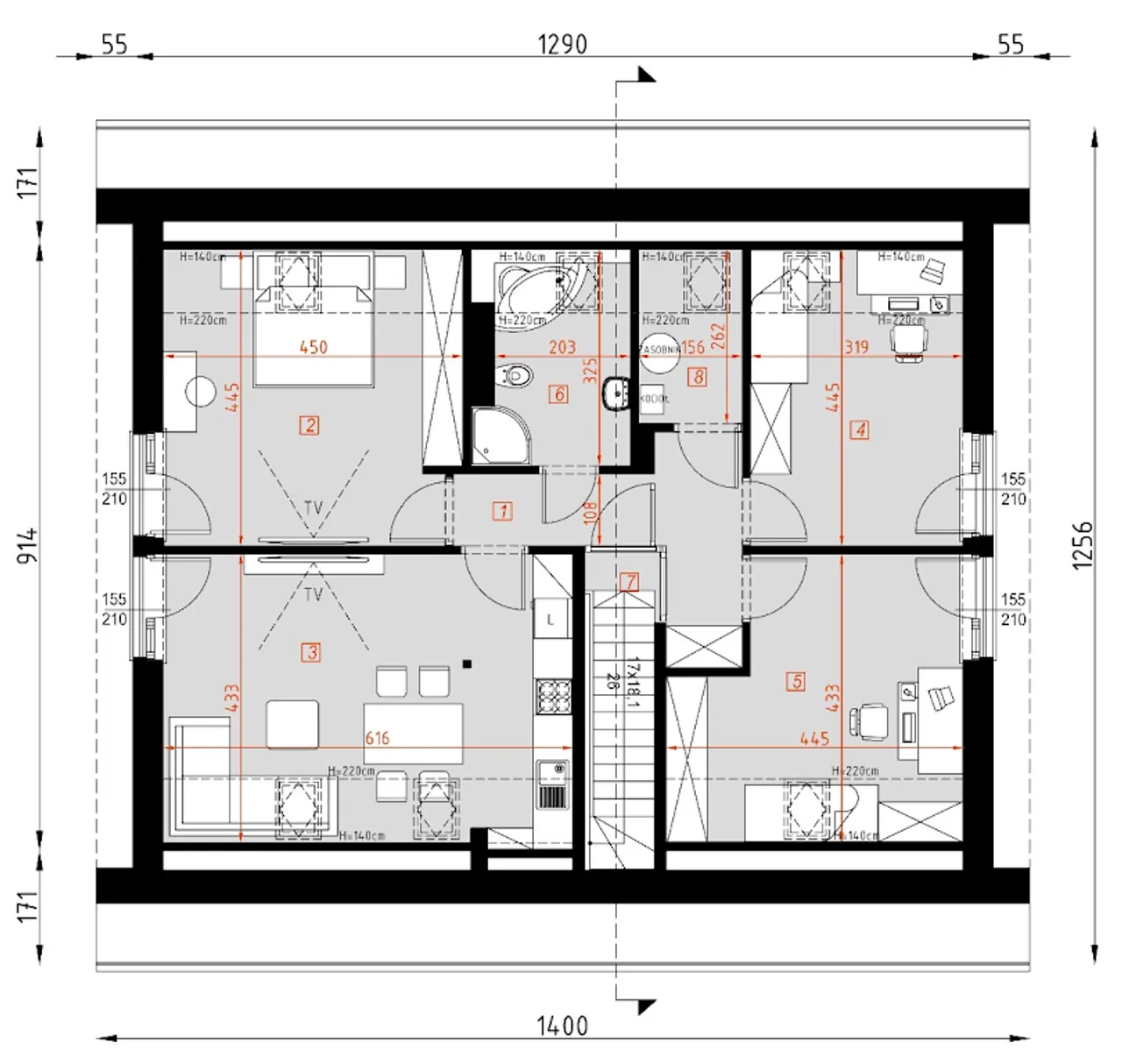
1. Korytarz | 7,40 m² |
2. Pokój 1 | 17,34 m² |
3. Salon + aneks kuchni | 23,46 m² |
4. Pokój 2 | 12,49 m² |
5. Pokój 3 | 14,63 m² |
6. łazienka | 5,98 m² |
7. Schody | 4,45 m² |
8. Pom.techniczne | 3,25 m² |
Wypełnij formularz i otrzymaj rysunki w pdf z dokładnymi wymiarami budynku i pomieszczeń (długość, szerokość, wysokość) dla projektu D369 - WT2021
Pow. użytkowa 185.94 m² |
Powierzchnia zabudowy 137.25 m² |
Kondygnacje parterowy+poddasze |
Garaż bez garażu |
Technologia murowany |
Szerokość działki 18.8 m |
Obiekt dom |
Typ domu jednorodzinny całoroczny |
Kominek kominek w projekcie |
Kubatura 784 m³ |
Taras z tarasem |
Wysokość budynku 9.07 m |
Kalenica równoległa do drogi |
Piwnica bez podpiwniczenia |
Styl budynku nowoczesny |
Długość działki 20.9 m |
Kąt nachylenia dachu 40 ° |
Rodzaj dachu dwuspadowy |
Koszty budowy 400-450 tys., tylko z kosztorysem |
Pow. użytkowa 185.94 m² |
Kondygnacje parterowy+poddasze |
Technologia murowany |
Obiekt dom |
Kominek kominek w projekcie |
Taras z tarasem |
Kalenica równoległa do drogi |
Styl budynku nowoczesny |
Kąt nachylenia dachu 40 ° |
Koszty budowy 400-450 tys., tylko z kosztorysem |
Powierzchnia zabudowy 137.25 m² |
Garaż bez garażu |
Szerokość działki 18.8 m |
Typ domu jednorodzinny całoroczny |
Kubatura 784 m³ |
Wysokość budynku 9.07 m |
Piwnica bez podpiwniczenia |
Długość działki 20.9 m |
Rodzaj dachu dwuspadowy |
Kupując projekt w technologii murowanej powinieneś budować dom murowany. Zupełna zmiana technologii na szkieletową wymaga przeprojektowania całego budynku ( zmieniają się obciążenia, fundamenty, konstrukcja dachu). Wydamy zgodę na takie przeprojektowanie jednak wiążę się to z dużymi kosztami. Istnieją firmy wykonawcze, które podejmują się zmiany technologii budowy bezpłatnie przy skorzystaniu z ich usług wykonawczych. Zdarza się, że pracownia architektoniczna przygotowuje warianty konkretnego projektu przewidując także inne technologie. Prosimy o sprawdzenie czy istnieje poszukiwana wersja projektu, w zakładce - warianty projektu.
Zwężenie/poszerzenie budynku* to nic innego jak zmiana w projekcie. Istnieje możliwość wprowadzenia takich zmian, we własnym zakresie (podczas adaptacji). *zwężenie/poszerzenie budynku nie powinno stanowić problemu w przypadku domów o dachu dwuspadowym jeśli wiąże się to z wydłużeniem/skróceniem kalenicy dachu.
Poznaj praktyczne porady ekspertów, które ułatwią Ci każdy etap budowy i od wyboru wymarzonego domu po jego wykończenie. Zyskaj pewność, że podejmujesz najlepsze decyzje dzięki sprawdzonym wskazówkom od specjalistów z planz.pl
Wycena szacunkowa, w kwotach netto, nie zawiera instalacji.
bezpłatnie (0zł)
przelew zwykły / PayNow
przy odbiorze
3-5 dni roboczych (jeśli projekt nie wymaga aktualizacji)
Wybierz wygodny dla Ciebie czas kontaktu z naszym Doradcą Technicznym.