Andrzej segment lewy



1. Hol | 3,28 m² |
2. Korytarz | 5,57 m² |
3. Salon z aneksem kuchennym | 20,64 m² |
4. Wc | 2,55 m² |
5. Schody | 3,86 m² |
6. Pom. techniczne | 1,49 m² |
7. Garaż | 16,50 m² |
8. Taras 1 | 3,50 m² |
9. Taras 2 | 13,03 m² |
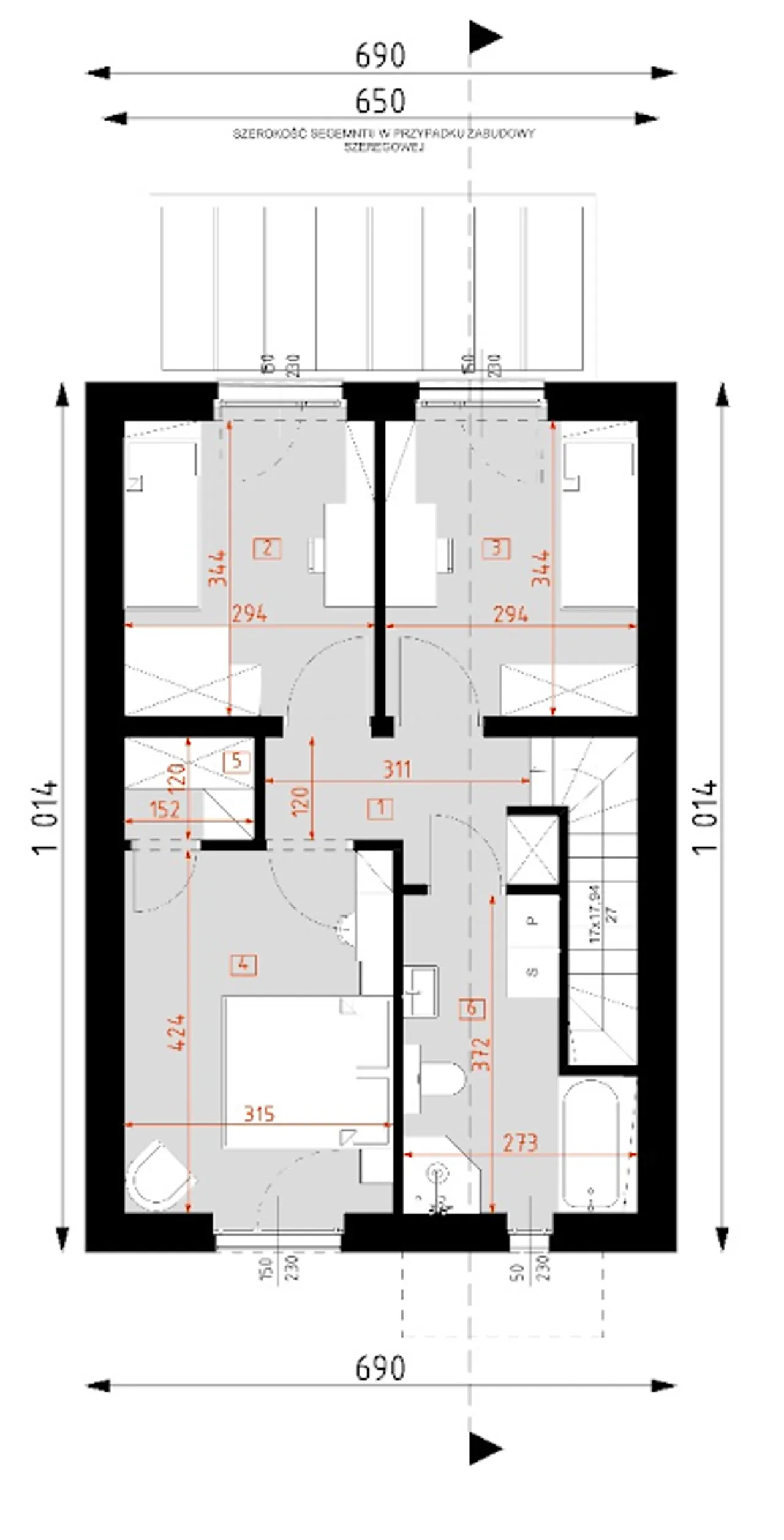
1. Korytarz | 4,73 m² |
2. Pokój | 10,11 m² |
3. Pokój | 10,11 m² |
4. Pokój | 13,36 m² |
5. Garderoba | 1,82 m² |
6. łazienka | 8,22 m² |
Wypełnij formularz i otrzymaj rysunki w pdf z dokładnymi wymiarami budynku i pomieszczeń (długość, szerokość, wysokość) dla projektu D348 - WT2021
Pow. użytkowa 84.25 m² |
Powierzchnia zabudowy 69.97 m² |
Kondygnacje piętrowy |
Garaż 1 stanowisko |
Technologia murowany |
Szerokość działki 12.9 m |
Obiekt dom |
Typ domu szeregowy |
Rodzaj dachu dwuspadowy |
Kominek kominek opcjonalnie |
Kubatura 524.4 m³ |
Taras z tarasem |
Ogrzewanie pompa ciepła |
Wysokość budynku 8.51 m |
Piwnica bez podpiwniczenia |
Kalenica równoległa do drogi |
Styl budynku nowoczesny |
Długość działki 18.14 m |
Kąt nachylenia dachu 20 ° |
Koszty budowy tylko z kosztorysem, 200-250 tys. |
Pow. użytkowa 84.25 m² |
Kondygnacje piętrowy |
Technologia murowany |
Obiekt dom |
Rodzaj dachu dwuspadowy |
Kubatura 524.4 m³ |
Ogrzewanie pompa ciepła |
Piwnica bez podpiwniczenia |
Styl budynku nowoczesny |
Kąt nachylenia dachu 20 ° |
Powierzchnia zabudowy 69.97 m² |
Garaż 1 stanowisko |
Szerokość działki 12.9 m |
Typ domu szeregowy |
Kominek kominek opcjonalnie |
Taras z tarasem |
Wysokość budynku 8.51 m |
Kalenica równoległa do drogi |
Długość działki 18.14 m |
Koszty budowy tylko z kosztorysem, 200-250 tys. |
Kupując projekt w technologii murowanej powinieneś budować dom murowany. Zupełna zmiana technologii na szkieletową wymaga przeprojektowania całego budynku ( zmieniają się obciążenia, fundamenty, konstrukcja dachu). Wydamy zgodę na takie przeprojektowanie jednak wiążę się to z dużymi kosztami. Istnieją firmy wykonawcze, które podejmują się zmiany technologii budowy bezpłatnie przy skorzystaniu z ich usług wykonawczych. Zdarza się, że pracownia architektoniczna przygotowuje warianty konkretnego projektu przewidując także inne technologie. Prosimy o sprawdzenie czy istnieje poszukiwana wersja projektu, w zakładce - warianty projektu.
Zwężenie/poszerzenie budynku* to nic innego jak zmiana w projekcie. Istnieje możliwość wprowadzenia takich zmian, we własnym zakresie (podczas adaptacji). *zwężenie/poszerzenie budynku nie powinno stanowić problemu w przypadku domów o dachu dwuspadowym jeśli wiąże się to z wydłużeniem/skróceniem kalenicy dachu.
Poznaj praktyczne porady ekspertów, które ułatwią Ci każdy etap budowy i od wyboru wymarzonego domu po jego wykończenie. Zyskaj pewność, że podejmujesz najlepsze decyzje dzięki sprawdzonym wskazówkom od specjalistów z planz.pl
Wycena szacunkowa, w kwotach netto, nie zawiera instalacji.
bezpłatnie (0zł)
przelew zwykły / PayNow
przy odbiorze
3-5 dni roboczych (jeśli projekt nie wymaga aktualizacji)
Wybierz wygodny dla Ciebie czas kontaktu z naszym Doradcą Technicznym.