- Promocja GRATISOWA do 03.10.2025 ➞ sprawdź zasady
- ✓ GRATIS: Wiertarka
- ✓ GRATIS: 16 projektów (drewutni, altany i wiaty)
- ✓ GRATIS: tablica i dziennik budowy
- ✓ GRATIS: przesyłka kurierska
- Potrzebujesz ADAPTACJI lub architekta do ZMIAN w projekcie? ➞ sprawdź jak pomożemy bez dodatkowej opłaty
Rzuty gotowego projektu domu D338 - WT2021
1. Hol | 6,21 m² |
2. Salon | 22,45 m² |
3. Kuchnia | 7,52 m² |
4. łazienka | 4,51 m² |
5. Pokój 1 | 10,52 m² |
6. Schody | 2,22 m² |
7. Pom. techniczne | 1,21 m² |
8. Taras 1 | 3,76 m² |
9. Taras 2 | 17,96 m² |
10. Taras 3 | 5,32 m² |
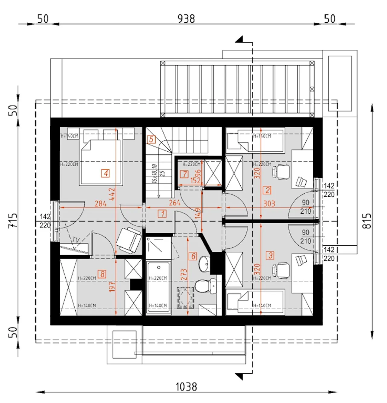
1. Korytarz | 3,98 m² |
2. Pokój 2 | 7,52 m² |
3. Pokój 3 | 7,52 m² |
4. Pokój 4 | 10,53 m² |
5. Schody | 1,12 m² |
6. łazienka | 4,54 m² |
7. Pom. gospodarcze | 1,40 m² |
8. Garderoba | 3,48 m² |
Zapoznaj się ze szczegółami projektu - pobierz bezpłatne rysunki do: D338 - WT2021
Wypełnij formularz i otrzymaj rysunki w pdf z dokładnymi wymiarami budynku i pomieszczeń (długość, szerokość, wysokość) dla projektu D338 - WT2021

Parametry Techniczne gotowego projektu domu D338 - WT2021
Pow. użytkowa 93.52 m² |
Powierzchnia zabudowy 67.09 m² |
Kondygnacje parterowy+poddasze |
Garaż bez garażu |
Technologia szkielet/drewniany |
Szerokość działki 17.38 m |
Obiekt dom |
Typ domu jednorodzinny całoroczny |
Kąt nachylenia dachu 40 ° |
Rodzaj dachu dwuspadowy |
Kubatura 420 m³ |
Kominek kominek w projekcie |
Powierzchnia dachu 111.7 m² |
Piwnica bez podpiwniczenia |
Wysokość budynku 7.71 m |
Kalenica równoległa do drogi |
Styl budynku nowoczesny |
Długość działki 15.16 m |
Koszty budowy tylko z kosztorysem, 200-250 tys. |
Pow. użytkowa 93.52 m² |
Kondygnacje parterowy+poddasze |
Technologia szkielet/drewniany |
Obiekt dom |
Kąt nachylenia dachu 40 ° |
Kubatura 420 m³ |
Powierzchnia dachu 111.7 m² |
Wysokość budynku 7.71 m |
Styl budynku nowoczesny |
Koszty budowy tylko z kosztorysem, 200-250 tys. |
Powierzchnia zabudowy 67.09 m² |
Garaż bez garażu |
Szerokość działki 17.38 m |
Typ domu jednorodzinny całoroczny |
Rodzaj dachu dwuspadowy |
Kominek kominek w projekcie |
Piwnica bez podpiwniczenia |
Kalenica równoległa do drogi |
Długość działki 15.16 m |
Nasze prawdziwe opinie z Google
Opis projektu domu D338 - WT2021
Technologia wykonania:
- Ściany zewnętrzne: drewniane z ociepleniem.
- Strop: drewniany – belki.
- Konstrukcja dachu: krokwiowo-jętkowy.
- Pokrycie dachu: blacha ocynkowana na rąbek.
- Elewacja: tynk cienkowarstwowy, drewno.
- Ogrzewanie: gazowe.
- EP70 kWh/m2.rok.
- Projekt zgodny z WT2021.
Częste pytania
Czy mogę wprowadzić zmiany w projekcie?
Projekt jest murowany, a ja chcę budować drewniany
Kupując projekt w technologii murowanej powinieneś budować dom murowany. Zupełna zmiana technologii na szkieletową wymaga przeprojektowania całego budynku ( zmieniają się obciążenia, fundamenty, konstrukcja dachu). Wydamy zgodę na takie przeprojektowanie jednak wiążę się to z dużymi kosztami. Istnieją firmy wykonawcze, które podejmują się zmiany technologii budowy bezpłatnie przy skorzystaniu z ich usług wykonawczych. Zdarza się, że pracownia architektoniczna przygotowuje warianty konkretnego projektu przewidując także inne technologie. Prosimy o sprawdzenie czy istnieje poszukiwana wersja projektu, w zakładce - warianty projektu.
Co zrobić gdy wybrany dom nie mieści się na działce?
Zwężenie/poszerzenie budynku* to nic innego jak zmiana w projekcie. Istnieje możliwość wprowadzenia takich zmian, we własnym zakresie (podczas adaptacji). *zwężenie/poszerzenie budynku nie powinno stanowić problemu w przypadku domów o dachu dwuspadowym jeśli wiąże się to z wydłużeniem/skróceniem kalenicy dachu.
Jakie zmiany można wprowadzić w projekcie?
- Rozmieszczenie ścian działowych.
- Zmiany funkcji pomieszczeń.
- Modyfikacje wielkości, ilości i kształtu otworów okiennych i drzwiowych.
- Użycie innych materiałów na elementy konstrukcyjne budynku (ściany, stropy) przy zachowaniu wymagań konstrukcji, parametrów cieplnych budynku i elewacji.
- Wprowadzenie częściowego lub całkowitego podpiwniczenia budynku.
- Zmiana kąta nachylenia, kształtu i konstrukcji dachu.
- Zmiana sposobu ogrzewania i prowadzenia instalacji CO, zmiany instalacji wodno-kanalizacyjnej, gazowej, oraz elektrycznej (zachowując obowiązujące normy, zgodnie z prawem budowlanym).
- Zmiana materiałów wykończeniowych: posadzek, tynków, dachówki, izolacji cieplnej i przeciwwilgociowej (przy zachowaniu niezbędnych parametrów wytrzymałości oraz parametrów przenikania ciepła).
- Zmiany wynikające z dostosowania budynku do warunków gruntowych.
- Zmiany wymiarów fundamentów.
- Zmiany wymiarów przekrojów lub rozstawu elementów więźby dachowej wynikające z dostosowania budynku do strefy śniegowej lub wiatrowej.
- Zmiany szerokości schodów, liczby stopni i wymiarów schodów wewnętrznych oraz zewnętrznych.
- Zmiany pokrycia dachowego (uwzględniając istniejące spadki i ciężar).
- Zmiany kształtu, wielkości, usytuowania elementów takich jak tarasy, wiaty, murki.
- Zmiany wysokości ścianki kolankowej.
- Zmiany usytuowania i ilości kominów.
- Dobudowanie lub usunięcie garażu lub wiaty garażowej.
- Dobudowanie lub usunięcie lukarn.
- Dobudowanie lub usunięcie balkonów.
- Dobudowanie lub usunięcie wykuszy.
- Zabudowanie podcienia.
Poznaj praktyczne porady ekspertów, które ułatwią Ci każdy etap budowy i od wyboru wymarzonego domu po jego wykończenie. Zyskaj pewność, że podejmujesz najlepsze decyzje dzięki sprawdzonym wskazówkom od specjalistów z planz.pl
Co zawiera projekt
- ✓ 3 x projekt architektoniczno-budowlany ➞ szczegóły
- ✓ Projekty techniczne ➞ szczegóły
- ✓ charakterystyka energetyczna (do projektów domów)
- ✓ zgoda na zmiany w projekcie ➞ szczegóły
- ✓ GRATIS: Wiertarka (do projektów w cenie od 3000 zł)
- ✓ GRATIS: 16 projektów (drewutni, altany i wiaty)
- ✓ GRATIS: tablica i dziennik budowy
- ✓ GRATIS: przesyłka kurierska
Dodatki do projektu D338 - WT2021
[Artinex] Dodatkowy egzemplarz projektu domu (490 zł)
[Artinex]Projekt wentylacji mechanicznej z rekuperacją (890 zł)
[Artinex] Szczegółowy kosztorys Inwestorski dom (990 zł)
[Artinex] Projekt ogrzewania powietrzną pompą ciepła + ogrzewanie podłogowe (1890 zł)
[Artinex] Projekt ogrzewania podłogowego (790 zł)
[Artinex] Projekt instalacji solarnej (990 zł)
[Artinex] Zamienna charakterystyka energetyczna (880 zł)
[Artinex] Projekt instalacji fotowoltaicznej (1590 zł)
[Artinex] Projekt ogrzewanie kominkiem z komorą powietrzną (2490 zł)
[Artinex] Szczegółowy Kosztorys Inwestorski garaż (690 zł)
[Artinex] Dodatkowy egzemplarz projektu garażu (390 zł)
[Artinex] Projekt płyty fundamentowej (1180 zł)
[Artinex] Projekt instalacji inteligentnych (2290 zł)
[Planz] Tablica budowlana (0 zł)
[Planz] Dziennik budowy (0 zł)
[Planz] Wiertarka udarowa (0 zł)
[Planz] Zgoda na zmiany w projekcie (0 zł)
[Planz] Projekty architektury ogrodowej (0 zł)
[Planz] Charakterystyka energetyczna, tylko dla domów całorocznych (0 zł)
Wysyłka i płatność za projekt D338 - WT2021

Koszty wysyłki
bezpłatnie (0zł)

Formy płatności
przelew zwykły / PayNow
przy odbiorze

Czas oczekiwania
3-5 dni roboczych (jeśli projekt nie wymaga aktualizacji)
Komentarze / pytania do projektu domu D338 - WT2021
Projekt w kategoriach
Zamów rozmowę
Wybierz wygodny dla Ciebie czas kontaktu z naszym Doradcą Technicznym.