Jaworki 9



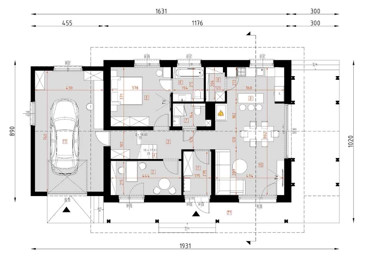
1. Wiatrołap | 4,80 m² |
2. Gabinet | 9,53 m² |
3. Holl | 7,90 m² |
4. Schody | 1,01 m² |
5. Sypialnia | 14,03 m² |
6. łazienka | 4,03 m² |
7. łazienka | 3,22 m² |
8. Spiżarnia | 2,54 m² |
9. Kuchnia | 8,09 m² |
10. Salon z jadalnią | 24,96 m² |
11. Garaż | 32,66 m² |
12. Taras | 47,83 m² |
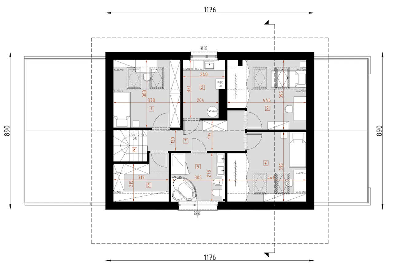
1. Pokój | 10,04 (14,47) m² |
2. Pow. techniczne | 7,34 m² |
3. Pokój | 11,44 (16,17) m² |
4. Pokój | 11,47 (16,27) m² |
5. łazienka | 8,38 m² |
6. Schowek | 4,02 (7,40) m² |
7. Holl | 9,00 m² |
8. Schody | 3,42 m² |
Wypełnij formularz i otrzymaj rysunki w pdf z dokładnymi wymiarami budynku i pomieszczeń (długość, szerokość, wysokość) dla projektu D333A - WT2021
Pow. użytkowa 137.88 m² |
Ilość pokoi 6 |
Powierzchnia zabudowy 141.54 m² |
Kondygnacje parterowy+poddasze |
Garaż 1 stanowisko |
Technologia murowany |
Szerokość działki 26.31 m |
Obiekt dom |
Typ domu jednorodzinny całoroczny |
Strop żelbetowy |
Kubatura 836.6 m³ |
Rodzaj dachu dwuspadowy |
Kalenica równoległa do drogi |
Wysokość budynku 7.83 m |
Przechowywanie w kuchni spiżarnia |
Długość działki 17.2 m |
Bryła budynku prosta bryła |
Styl budynku nowoczesny |
Funkcje dodatkowe z lukarnami |
Liczba łazieniek 3 |
Kominek kominek w projekcie |
Kąt nachylenia dachu 33 ° |
Szerokość budynku 23.31 m |
Taras z tarasem |
Długość budynku 10.2 m |
Rodzaj garażu przyklejony |
Piwnica bez podpiwniczenia |
Koszty budowy 300-350 tys., tylko z kosztorysem |
Pow. użytkowa 137.88 m² |
Powierzchnia zabudowy 141.54 m² |
Garaż 1 stanowisko |
Szerokość działki 26.31 m |
Typ domu jednorodzinny całoroczny |
Kubatura 836.6 m³ |
Kalenica równoległa do drogi |
Przechowywanie w kuchni spiżarnia |
Bryła budynku prosta bryła |
Funkcje dodatkowe z lukarnami |
Kominek kominek w projekcie |
Szerokość budynku 23.31 m |
Długość budynku 10.2 m |
Piwnica bez podpiwniczenia |
Ilość pokoi 6 |
Kondygnacje parterowy+poddasze |
Technologia murowany |
Obiekt dom |
Strop żelbetowy |
Rodzaj dachu dwuspadowy |
Wysokość budynku 7.83 m |
Długość działki 17.2 m |
Styl budynku nowoczesny |
Liczba łazieniek 3 |
Kąt nachylenia dachu 33 ° |
Taras z tarasem |
Rodzaj garażu przyklejony |
Koszty budowy 300-350 tys., tylko z kosztorysem |
Kupując projekt w technologii murowanej powinieneś budować dom murowany. Zupełna zmiana technologii na szkieletową wymaga przeprojektowania całego budynku ( zmieniają się obciążenia, fundamenty, konstrukcja dachu). Wydamy zgodę na takie przeprojektowanie jednak wiążę się to z dużymi kosztami. Istnieją firmy wykonawcze, które podejmują się zmiany technologii budowy bezpłatnie przy skorzystaniu z ich usług wykonawczych. Zdarza się, że pracownia architektoniczna przygotowuje warianty konkretnego projektu przewidując także inne technologie. Prosimy o sprawdzenie czy istnieje poszukiwana wersja projektu, w zakładce - warianty projektu.
Zwężenie/poszerzenie budynku* to nic innego jak zmiana w projekcie. Istnieje możliwość wprowadzenia takich zmian, we własnym zakresie (podczas adaptacji). *zwężenie/poszerzenie budynku nie powinno stanowić problemu w przypadku domów o dachu dwuspadowym jeśli wiąże się to z wydłużeniem/skróceniem kalenicy dachu.
Poznaj praktyczne porady ekspertów, które ułatwią Ci każdy etap budowy i od wyboru wymarzonego domu po jego wykończenie. Zyskaj pewność, że podejmujesz najlepsze decyzje dzięki sprawdzonym wskazówkom od specjalistów z planz.pl
Wycena szacunkowa, w kwotach netto, nie zawiera instalacji.
bezpłatnie (0zł)
przelew zwykły / PayNow
przy odbiorze
3-5 dni roboczych (jeśli projekt nie wymaga aktualizacji)
Wybierz wygodny dla Ciebie czas kontaktu z naszym Doradcą Technicznym.