D332 - WT2021



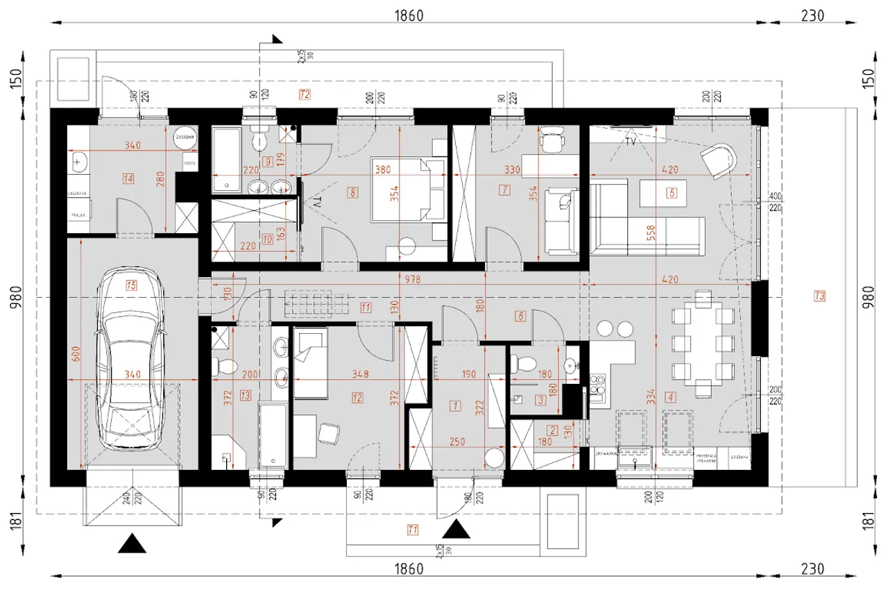
1. Wiatrołap | 7,27 m² |
2. Spiżarnia | 2,52 m² |
3. Toaleta | 2,90 m² |
4. Kuchnia | 15,03 m² |
5. Salon | 24,84 m² |
6. Hall | 7,18 m² |
7. Gabinet / pokój | 12,24 m² |
8. Sypialnia | 14,05 m² |
9. łazienka | 4,05 m² |
10. Garderoba | 4,08 m² |
11. Korytarz | 7,54 m² |
12. Pokój | 12,18 m² |
13. łazienka | 7,87 m² |
14. Pom. techniczne | 9,79 m² |
15. Garaż | 21,22 m² |
16. Taras | 9,00 m² |
17. Taras | 18,15 m² |
18. Taras | 22,53 m² |
Wypełnij formularz i otrzymaj rysunki w pdf z dokładnymi wymiarami budynku i pomieszczeń (długość, szerokość, wysokość) dla projektu D332 - WT2021 wersja drewniana
Pow. użytkowa 121.75 m² |
Ilość pokoi 4 |
Powierzchnia zabudowy 182.19 m² |
Kondygnacje parterowy |
Garaż 1 stanowisko |
Technologia szkielet/drewniany |
Szerokość działki 25.6 m |
Obiekt dom |
Typ domu jednorodzinny całoroczny |
Styl budynku nowoczesny |
Kominek kominek opcjonalnie |
Szerokość budynku 18.6 m |
Taras z tarasem |
Kąt nachylenia dachu 35 ° |
Długość budynku 9.8 m |
Piwnica bez podpiwniczenia |
Strop drewniany |
Kubatura 983.94 m³ |
Rodzaj garażu w bryle |
Kalenica równoległa do drogi |
Powierzchnia dachu 270 m² |
Rodzaj dachu dwuspadowy |
Długość działki 17.8 m |
Funkcje dodatkowe z dwoma wejściami |
Wysokość budynku 7.01 m |
Przechowywanie w kuchni spiżarnia |
Bryła budynku prosta bryła |
Liczba łazieniek 2 |
Koszty budowy 300-350 tys., tylko z kosztorysem |
Pow. użytkowa 121.75 m² |
Powierzchnia zabudowy 182.19 m² |
Garaż 1 stanowisko |
Szerokość działki 25.6 m |
Typ domu jednorodzinny całoroczny |
Kominek kominek opcjonalnie |
Taras z tarasem |
Długość budynku 9.8 m |
Strop drewniany |
Rodzaj garażu w bryle |
Powierzchnia dachu 270 m² |
Długość działki 17.8 m |
Wysokość budynku 7.01 m |
Bryła budynku prosta bryła |
Koszty budowy 300-350 tys., tylko z kosztorysem |
Ilość pokoi 4 |
Kondygnacje parterowy |
Technologia szkielet/drewniany |
Obiekt dom |
Styl budynku nowoczesny |
Szerokość budynku 18.6 m |
Kąt nachylenia dachu 35 ° |
Piwnica bez podpiwniczenia |
Kubatura 983.94 m³ |
Kalenica równoległa do drogi |
Rodzaj dachu dwuspadowy |
Funkcje dodatkowe z dwoma wejściami |
Przechowywanie w kuchni spiżarnia |
Liczba łazieniek 2 |
Kupując projekt w technologii murowanej powinieneś budować dom murowany. Zupełna zmiana technologii na szkieletową wymaga przeprojektowania całego budynku ( zmieniają się obciążenia, fundamenty, konstrukcja dachu). Wydamy zgodę na takie przeprojektowanie jednak wiążę się to z dużymi kosztami. Istnieją firmy wykonawcze, które podejmują się zmiany technologii budowy bezpłatnie przy skorzystaniu z ich usług wykonawczych. Zdarza się, że pracownia architektoniczna przygotowuje warianty konkretnego projektu przewidując także inne technologie. Prosimy o sprawdzenie czy istnieje poszukiwana wersja projektu, w zakładce - warianty projektu.
Zwężenie/poszerzenie budynku* to nic innego jak zmiana w projekcie. Istnieje możliwość wprowadzenia takich zmian, we własnym zakresie (podczas adaptacji). *zwężenie/poszerzenie budynku nie powinno stanowić problemu w przypadku domów o dachu dwuspadowym jeśli wiąże się to z wydłużeniem/skróceniem kalenicy dachu.
Poznaj praktyczne porady ekspertów, które ułatwią Ci każdy etap budowy i od wyboru wymarzonego domu po jego wykończenie. Zyskaj pewność, że podejmujesz najlepsze decyzje dzięki sprawdzonym wskazówkom od specjalistów z planz.pl
Wycena szacunkowa, w kwotach netto, nie zawiera instalacji.
bezpłatnie (0zł)
przelew zwykły / PayNow
przy odbiorze
3-5 dni roboczych (jeśli projekt nie wymaga aktualizacji)
Wybierz wygodny dla Ciebie czas kontaktu z naszym Doradcą Technicznym.