TK12



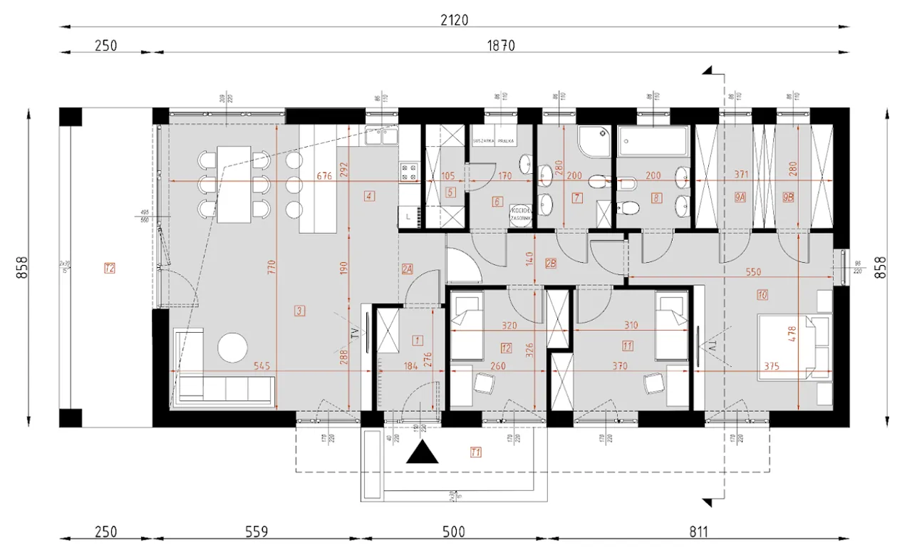
1. Przedsionek | 5,07 m² |
2. Hol | 3,71 m² |
3. Komunikacja | 6,64 m² |
4. Pokój dzienny + jadalnia | 37,41 m² |
5. Kuchnia | 8,29 m² |
6. Spiżarnia | 2,95 m² |
7. Pom. techniczne | 4,75 m² |
8. łazienka | 5,59 m² |
9. łazienka | 5,59 m² |
10. Garderoba | 5,18 m² |
11. Garderoba | 5,18 m² |
12. Sypialnia | 20,35 m² |
13. Sypialnia | 11,02 m² |
14. Sypialnia | 9,39 m² |
15. Taras | 8,77 m² |
16. Taras | 20,84 m² |
Wypełnij formularz i otrzymaj rysunki w pdf z dokładnymi wymiarami budynku i pomieszczeń (długość, szerokość, wysokość) dla projektu D322 - WT2021
Ilość pokoi 4 |
Pow. użytkowa 126.37 m² |
Powierzchnia zabudowy 160.35 m² |
Kondygnacje parterowy |
Garaż bez garażu |
Technologia murowany |
Szerokość działki 28.2 m |
Obiekt dom |
Typ domu jednorodzinny całoroczny |
Kominek kominek w projekcie |
Kąt nachylenia dachu 35 ° |
Strop drewniany |
Szerokość budynku 21.2 m |
Taras z tarasem |
Kalenica równoległa do drogi |
Długość budynku 8.58 m |
Rodzaj dachu dwuspadowy |
Piwnica bez podpiwniczenia |
Kubatura 842.5 m³ |
Przechowywanie w kuchni spiżarnia |
Wysokość budynku 6.72 m |
Długość działki 16.58 m |
Bryła budynku prosta bryła |
Styl budynku nowoczesny |
Liczba łazieniek 2 |
Koszty budowy 300-350 tys., tylko z kosztorysem |
Ilość pokoi 4 |
Powierzchnia zabudowy 160.35 m² |
Garaż bez garażu |
Szerokość działki 28.2 m |
Typ domu jednorodzinny całoroczny |
Kąt nachylenia dachu 35 ° |
Szerokość budynku 21.2 m |
Kalenica równoległa do drogi |
Rodzaj dachu dwuspadowy |
Kubatura 842.5 m³ |
Wysokość budynku 6.72 m |
Bryła budynku prosta bryła |
Liczba łazieniek 2 |
Pow. użytkowa 126.37 m² |
Kondygnacje parterowy |
Technologia murowany |
Obiekt dom |
Kominek kominek w projekcie |
Strop drewniany |
Taras z tarasem |
Długość budynku 8.58 m |
Piwnica bez podpiwniczenia |
Przechowywanie w kuchni spiżarnia |
Długość działki 16.58 m |
Styl budynku nowoczesny |
Koszty budowy 300-350 tys., tylko z kosztorysem |
Kupując projekt w technologii murowanej powinieneś budować dom murowany. Zupełna zmiana technologii na szkieletową wymaga przeprojektowania całego budynku ( zmieniają się obciążenia, fundamenty, konstrukcja dachu). Wydamy zgodę na takie przeprojektowanie jednak wiążę się to z dużymi kosztami. Istnieją firmy wykonawcze, które podejmują się zmiany technologii budowy bezpłatnie przy skorzystaniu z ich usług wykonawczych. Zdarza się, że pracownia architektoniczna przygotowuje warianty konkretnego projektu przewidując także inne technologie. Prosimy o sprawdzenie czy istnieje poszukiwana wersja projektu, w zakładce - warianty projektu.
Zwężenie/poszerzenie budynku* to nic innego jak zmiana w projekcie. Istnieje możliwość wprowadzenia takich zmian, we własnym zakresie (podczas adaptacji). *zwężenie/poszerzenie budynku nie powinno stanowić problemu w przypadku domów o dachu dwuspadowym jeśli wiąże się to z wydłużeniem/skróceniem kalenicy dachu.
Poznaj praktyczne porady ekspertów, które ułatwią Ci każdy etap budowy i od wyboru wymarzonego domu po jego wykończenie. Zyskaj pewność, że podejmujesz najlepsze decyzje dzięki sprawdzonym wskazówkom od specjalistów z planz.pl
Wycena szacunkowa, w kwotach netto, nie zawiera instalacji.
bezpłatnie (0zł)
przelew zwykły / PayNow
przy odbiorze
3-5 dni roboczych (jeśli projekt nie wymaga aktualizacji)
Wybierz wygodny dla Ciebie czas kontaktu z naszym Doradcą Technicznym.